#1208 610 KING ST, Spruce Grove

2026-04-14
 

Quick Summary

Location
#1208 610 KING ST, Spruce Grove, Alberta T7X4J9
Price
$169,000 CAD
Status:
For Sale
Property Type:
Single Family
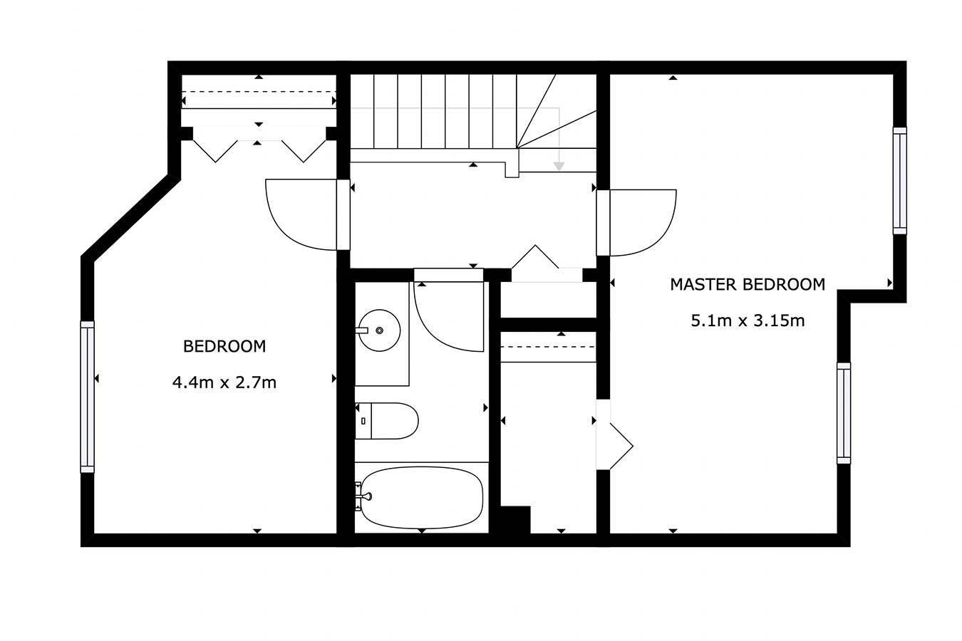
Area:
893 sqft
Bedrooms:
2
Bathrooms:
2
Year of Construction:
2002
Brochure Link:

MLS®#E4482176

Property Description

Affordable Living in the Heart of Spruce Grove. Perfect for first time home buyers or investors, this 2 bedroom townhouse offers incredible value, often cheaper than renting. Inside, you’ll find a functional and well designed layout with a spacious living room, generous dining area, and a practical kitchen with plenty of cupboard and counter space. A convenient half bathroom, in-suite laundry, furnace, and brand new hot water tank are all located on the main floor giving you full control over your utilities. Upstairs features two large bedrooms and a full bathroom providing comfortable living space. Low condo fees include water which help keep monthly costs down. The unit comes with an assigned parking stall for added convenience. The complex is well managed with recently updated shingles and the central location means you’re just minutes to schools, parks, shopping, and easy commuting routes. A great opportunity to get into the market. (id:32467)

Property Features

Ammenities Near By

  • Ammenities Near By: Public Transit, Schools, Shopping

Building

  • Amenities: Vinyl Windows
  • Appliances: Dishwasher, Dryer, Hood Fan, Refrigerator, Stove, Washer
  • Basement Type: None
  • Construction Style: Attached
  • Fireplace: No
  • Interior Size: 893 sqft
  • Building Type: Row / Townhouse
  • Stories: 2

Land

  • Land Size: 204.39 m2

Maintenance Fee

  • Maintenance Fee: 326.00

Ownership

  • Type: Condominium/Strata

Information entered by RE/MAX Excellence
Listing information last updated on: 2026-05-09 06:31:15


Book your free home evaluation with a 1% REALTOR® now!


How much could you save in commission selling with One Percent Realty?

Slide to select your home's price:

$500,000

Your One Percent Realty Commission savings

$500,000

Savings calculated using One Percent Realty's posted commission rates compared to another agent charging 7% on the first 100k & 3% on the balance + GST. Not all agents charge the same.

Send a Message


One Percent Realty's top FAQs

Q
What is the deal exactly, with One Percent Realty?

We are a fully licensed real estate company that offers full service but at a discount commission. In terms of services and exposure, we are identical to whoever you would like to compare us with. We are on MLS®, all the top internet real estates sites, we place a sign on your property ( if it's allowed ), we show the property, hold open houses, advertise it, handle all the negotiations, plus the conveyancing. There is nothing that you are not getting, except for a high commission!

Q
What do you charge?

We charge a total of $7,950 for residential properties under $400,000. For residential properties $400,000-$900,000 we charge $9,950. For residential properties over $900,000 we charge 1% of the sale price plus $950. Plus Applicable taxes, of course. We also offer the flexibility to offer more commission to the buyer's agent, if you want to. It is as simple as that! For commercial properties, farms, or development properties please contact a One Percent agent directly or fill out the market evaluation form on the bottom right of our website pages and a One Percent agent will get back to you to discuss the particulars.

Q
Are your listings on MLS® and realtor.ca?

Yes, and yes.


Learn more about the One Percent Realty Deal

 

Christine Tetreault Broker / Owner / REALTOR®

Phone:
(780) 268-4888
Email:
christine.onepercent@gmail.com
Support Area:
Windermere, Glenora, Belgravia, Griesbach, Bonnie Doon, Strathcona, Westmount, Summerside, Crestwood, Laurier Heights, Parkview, Magrath Heights, Highlands, Terwillegar Towne, Sherwood Park, West Edmonton, Spruce Grove, St. Albert, Jasper Place, Balwin, Stony Plain, Edmonton

REAL ESTATE NEGOTIATION EXPERT (RENE) SENIORS REAL ESTATE SPECIALIST (SRES) CERTIFIED REAL ESTATE ...

Full Profile

 

Bhavya Soni Associate

Phone:
7807070479
Email:
Opendreamdoorswithbhavya@gmail.com
Support Area:
Edmonton, Beaumont, Fort Saskatchewan, Spruce Grove, Stony Plain, Sherwood Park, St Albert, Millet, Wetaskiwin, Calmar, Devon, Morinville, Westlock County, Red Deer, Rimbey, Athabasca, Leduc, Falun, Ponoka, Lacombe, Camrose, Thorby, Drayton Valley

Bhavya Soni is one of the top performing full-time agents of One Percent Realty. Her name has been p ...

Full Profile

 

Jill Turgeon Associate

Phone:
780-218-7444
Email:
admin@stageandsell.ca
Support Area:
Edmonton, St.Albert, Stony Plain, Spruce Grove, Sherwood Park, Devon, Parkland County, Lac St. Anne County, Sturgeon County, Windermere, Magrath, Secord, Edgemont, Glenora, Riverbend, Terwilligar, Terwiligar Towne, North Glenora, Forest Heights, Gold Bar, Keswick, Chappelle

So far, my clients have saved over $571,000 in Commission Fees.*Do Your Online Photos Matter?Times h ...

Full Profile