3, 2701 28 Avenue SW, CALGARY

2026-04-02
 

Quick Summary

Location
3, 2701 28 Avenue SW, CALGARY, Alberta T2T1J7
Price
$799,900 CAD
Status:
For Sale
Property Type:
Single Family
Area:
1454 sqft
Bedrooms:
3 bed +1
Bathrooms:
4
Garages:
1
Year of Construction:
2026

MLS®#A2278298

Property Description

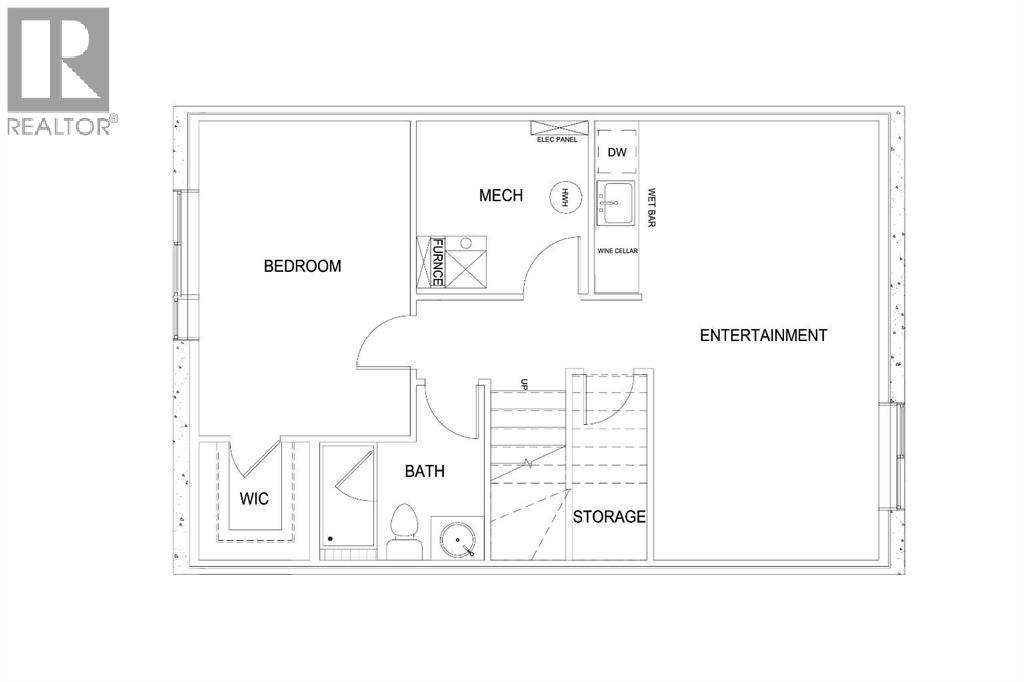
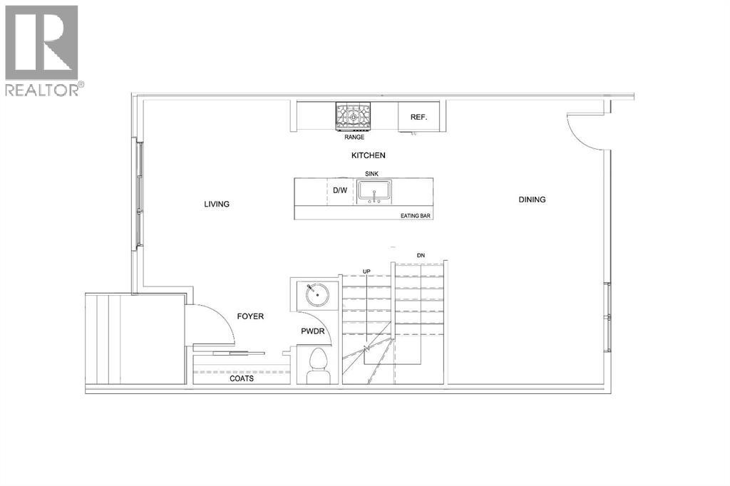
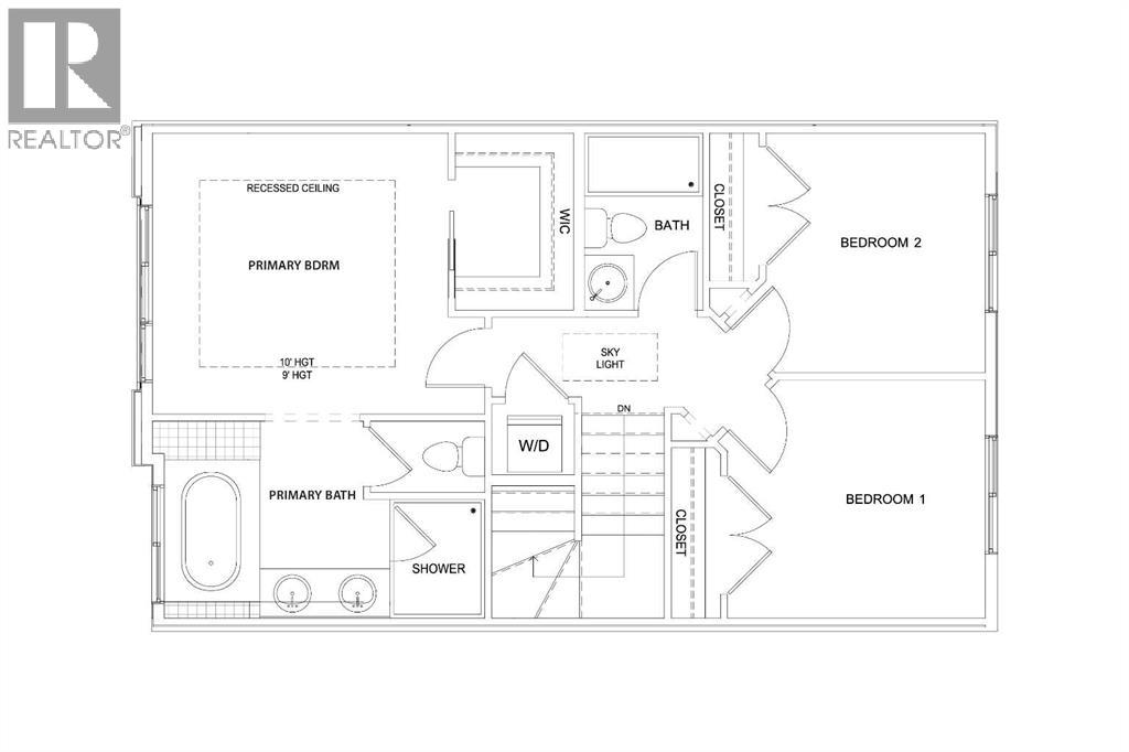
Thoughtful design meets everyday comfort in this beautifully finished 4-BED, 3.5-BATH Killarney townhome with a FULLY FINISHED BASEMENT with a large Rec Room, bedroom, bathroom & wet bar, located in one of Calgary’s most desirable inner-city communities. Known for its walkability, mature tree-lined streets, and strong community feel, Killarney offers a connected lifestyle with timeless neighbourhood charm.Enjoy walking to Monogram Coffee, biking to brunch at Brekkie Café, or heading minutes to Marda Loop, one of Calgary’s most vibrant inner-city hubs offering boutique shopping, fitness studios, restaurants, and everyday amenities. Commuting is effortless with quick access to Bow Trail, Crowchild Trail, and nearby LRT stations, providing easy access to downtown and west Calgary. Families will appreciate proximity to Killarney School, Ernest Manning High School, parks, playgrounds, and the Killarney Aquatic & Recreation Centre, while outdoor enthusiasts are close to Shaganappi Golf Course and pathway networks.Inside, the front foyer creates a functional entry before opening into a bright open-concept main floor. The living, dining, and kitchen areas connect seamlessly, with a designated dining space ideal for entertaining or large family meals. The kitchen is anchored by a large island with seating, perfect for meal prep, casual dining, and hosting, complemented by ample cabinetry and modern finishes. The living room features a built-in electric fireplace with decorative shelving on either side, adding warmth and a stylish focal point. A spacious front closet on the main floor provides excellent storage to tuck everything away and keep daily life organized.Upstairs, the home feels bright and airy with a skylight bringing in natural light. The primary suite offers a true retreat with a recessed ceiling, walk-in closet and a spa-inspired ensuite featuring a double vanity, freestanding tub, and glass walk-in shower. Two additional bedrooms, a full bathroom, and upp er-level laundry complete this functional layout.The fully finished basement is designed for entertaining and flexibility, featuring a spacious rec room, wet bar with built-in cabinetry, along with a fourth bedroom and full bathroom—perfect for guests, a home office, or extended family.Step outside to a backyard ideal for kids, pets, and summer BBQs, offering additional space to relax and entertain. Situated on a quiet residential street just minutes to Marda Loop, 17th Avenue, parks, and schools, this Killarney townhome offers the ideal balance of inner-city convenience and comfortable neighbourhood living. ** MOVE IN READY IN MAY ** (id:32467)

Property Features

Ammenities Near By

  • Ammenities Near By: Park, Playground, Schools, Shopping

Building

  • Appliances: Refrigerator, Range - Gas, Dishwasher, Washer & Dryer
  • Basement Development: Finished
  • Basement Type: Full (Finished)
  • Construction Style: Attached
  • Cooling Type: None
  • Fireplace: Yes
  • Flooring Type: Carpeted, Hardwood, Tile
  • Interior Size: 1454 sqft
  • Building Type: Row / Townhouse
  • Stories: 2

Features

  • Feature: Wet bar, Closet Organizers, Level

Land

  • Land Size: 145.5 m2|0-4,050 sqft

Maintenance Fee

  • Maintenance Fee: 200.00

Ownership

  • Type: Condominium/Strata

Structure

  • Structure: See Remarks

Zoning

  • Description: R-CG

Information entered by RE/MAX House of Real Estate
Listing information last updated on: 2026-05-13 00:30:35


Book your free home evaluation with a 1% REALTOR® now!


How much could you save in commission selling with One Percent Realty?

Slide to select your home's price:

$500,000

Your One Percent Realty Commission savings

$500,000

Savings calculated using One Percent Realty's posted commission rates compared to another agent charging 7% on the first 100k & 3% on the balance + GST. Not all agents charge the same.

Send a Message


One Percent Realty's top FAQs

Q
What is the deal exactly, with One Percent Realty?

We are a fully licensed real estate company that offers full service but at a discount commission. In terms of services and exposure, we are identical to whoever you would like to compare us with. We are on MLS®, all the top internet real estates sites, we place a sign on your property ( if it's allowed ), we show the property, hold open houses, advertise it, handle all the negotiations, plus the conveyancing. There is nothing that you are not getting, except for a high commission!

Q
What do you charge?

We charge a total of $7,950 for residential properties under $400,000. For residential properties $400,000-$900,000 we charge $9,950. For residential properties over $900,000 we charge 1% of the sale price plus $950. Plus Applicable taxes, of course. We also offer the flexibility to offer more commission to the buyer's agent, if you want to. It is as simple as that! For commercial properties, farms, or development properties please contact a One Percent agent directly or fill out the market evaluation form on the bottom right of our website pages and a One Percent agent will get back to you to discuss the particulars.

Q
Are your listings on MLS® and realtor.ca?

Yes, and yes.


Learn more about the One Percent Realty Deal

 

April Isaac Associate

Phone:
403-888-4003
Email:
aprilonepercent@gmail.com
Support Area:
CALGARY, SOUTH EAST CALGARY, SOUTH WEST CALGARY, NORTH CALGARY, NORTH EAST CALGARY, NORTH WEST CALGARY, EAST CALGARY, WEST CALGARY, AIRDRIE, COCHRANE, OKOTOKS, CHESTERMERE, STRATHMORE, GREATER CALGARY AREA, ROCKYVIEW, DIDSBURY, LANGDON

23 YRS EXPER, 1300+ SALES, NEGOTIATION EXPERT AND  BUYERS REPRESENTATIVE EXPERT, marketing savv ...

Full Profile

 

Anna Madden Associate

Phone:
587-830-2405
Email:
anna.madden05@gmail.com
Support Area:
Calgary, Airdrie, Cochrane, chestermere, Langdon, Okotoks, High river, Olds, Rocky View, Foothills

Experienced Residential Realtor serving Calgary and surrounding communities. I have knowledge in buy ...

Full Profile

 

Dabs Fashola Associate

Phone:
403-619-0621
Email:
homesbydabs@gmail.com
Support Area:
Calgary Southwest, Calgary Southeast, Calgary Northwest, Calgary Northeast, Okotoks, Chestermere:, Airdrie, Olds, Cochrane

REAL ESTATE NEGOTIATION EXPERT (RENE)Your Trusted and Experienced Realtor | Turning Real E ...

Full Profile