2, 1930 36 Street SW, CALGARY

2026-01-04
 

Quick Summary

Location
2, 1930 36 Street SW, CALGARY, Alberta T3E2Y9
Price
$629,900 CAD
Status:
For Sale
Property Type:
Single Family
Area:
1301 sqft
Bedrooms:
2 bed +1
Bathrooms:
4
Year of Construction:
2012
Video Link:

MLS®#A2276885

Property Description

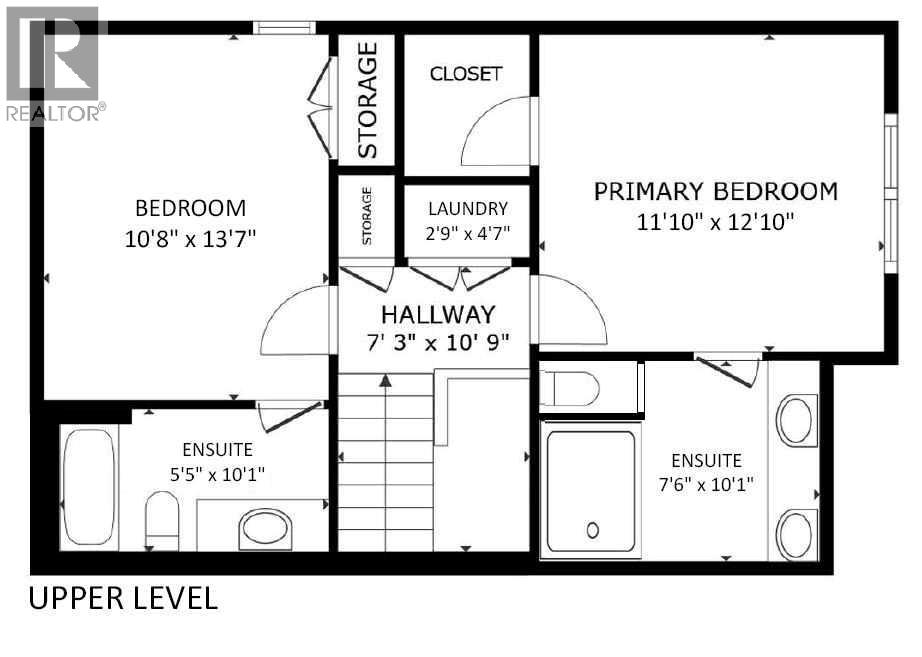
Well maintained, modern, and quiet 2-storey townhome offering nearly 2,000 sq ft of developed living space in the heart of Killarney. This 3-bedroom, 3.5-bath home features 2 bedrooms up and 1 down. The primary bedroom offers high ceilings, double sinks, a spacious shower, and walk-in closet. The second upstairs bedroom includes its own ensuite, plus convenient second-floor laundry.Fully developed basement with a large third bedroom, 4-piece bathroom, and second living room—ideal for guests or a home office. Recent updates include new flooring, fresh paint, and updated light fixtures. Features include a double-sided fireplace between the living and dining rooms, quartz countertops, gas range, stainless steel appliances, and ample storage.Low condo fees, single detached garage, and an excellent inner-city location—just a 3-minute walk to the LRT for an easy commute downtown, with quick access to 17 Ave, Crowchild Trail, transit, and local amenities. (id:32467)

Property Features

Ammenities Near By

  • Ammenities Near By: Park, Recreation Nearby, Schools, Shopping

Building

  • Appliances: Washer, Refrigerator, Window/Sleeve Air Conditioner, Range - Gas, Dishwasher, Dryer, Microwave, Garage door opener
  • Basement Development: Finished
  • Basement Type: Full (Finished)
  • Construction Style: Attached
  • Cooling Type: Window air conditioner
  • Exterior Finish: Stucco
  • Fireplace: Yes
  • Flooring Type: Ceramic Tile, Hardwood, Vinyl Plank
  • Interior Size: 1301 sqft
  • Building Type: Row / Townhouse
  • Stories: 2

Features

  • Feature: Back lane, No Smoking Home, Parking

Land

  • Land Size: Unknown

Maintenance Fee

  • Maintenance Fee: 250.00

Ownership

  • Type: Condominium/Strata

Structure

  • Structure: None

Zoning

  • Description: M-C1

Information entered by Century 21 Bamber Realty LTD.
Listing information last updated on: 2026-01-12 13:16:21


Book your free home evaluation with a 1% REALTOR® now!


How much could you save in commission selling with One Percent Realty?

Slide to select your home's price:

$500,000

Your One Percent Realty Commission savings

$500,000

Savings calculated using One Percent Realty's posted commission rates compared to another agent charging 7% on the first 100k & 3% on the balance + GST. Not all agents charge the same.

Send a Message


One Percent Realty's top FAQs

Q
What is the deal exactly, with One Percent Realty?

We are a fully licensed real estate company that offers full service but at a discount commission. In terms of services and exposure, we are identical to whoever you would like to compare us with. We are on MLS®, all the top internet real estates sites, we place a sign on your property ( if it's allowed ), we show the property, hold open houses, advertise it, handle all the negotiations, plus the conveyancing. There is nothing that you are not getting, except for a high commission!

Q
What do you charge?

We charge a total of $7,950 for residential properties under $400,000. For residential properties $400,000-$900,000 we charge $9,950. For residential properties over $900,000 we charge 1% of the sale price plus $950. Plus Applicable taxes, of course. We also offer the flexibility to offer more commission to the buyer's agent, if you want to. It is as simple as that! For commercial properties, farms, or development properties please contact a One Percent agent directly or fill out the market evaluation form on the bottom right of our website pages and a One Percent agent will get back to you to discuss the particulars.

Q
Are your listings on MLS® and realtor.ca?

Yes, and yes.


Learn more about the One Percent Realty Deal

 

April Isaac Associate

Phone:
403-888-4003
Email:
aprilonepercent@gmail.com
Support Area:
CALGARY, SOUTH EAST CALGARY, SOUTH WEST CALGARY, NORTH CALGARY, NORTH EAST CALGARY, NORTH WEST CALGARY, EAST CALGARY, WEST CALGARY, AIRDRIE, COCHRANE, OKOTOKS, CHESTERMERE, STRATHMORE, GREATER CALGARY AREA, ROCKYVIEW, DIDSBURY, LANGDON

22 YRS EXPER, 1300+ SALES, marketing savvy, people savvy. 100'S OF HAPPY CUSTOMERS, DOZENS UPON DOZ ...

Full Profile

 

Anna Madden Associate

Phone:
587-830-2405
Email:
anna.madden05@gmail.com
Support Area:
Calgary, Airdrie, Cochrane, chestermere, Langdon, Okotoks, High river, Olds, Rocky View, Foothills

Experienced Residential Realtor serving Calgary and surrounding communities. I have knowledge in buy ...

Full Profile

 

Dabs Fashola Associate

Phone:
403-619-0621
Email:
homesbydabs@gmail.com
Support Area:
Calgary Southwest, Calgary Southeast, Calgary Northwest, Calgary Northeast, Okotoks, Chestermere:, Airdrie, Olds, Cochrane

REAL ESTATE NEGOTIATION EXPERT (RENE)Your Trusted and Experienced Realtor | Turning Real E ...

Full Profile