5016 50 Street, Eckville

2025-12-31
 

Quick Summary

Location
5016 50 Street, Eckville, Alberta T0M0X0
Price
$425,000 CAD
Status:
For Sale
Property Type:
Other
Area:
9682 sqft
Year of Construction:
1977

MLS®#A2276336

Property Description

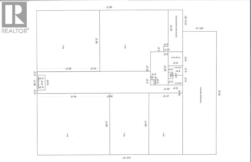
Well-located strip mall in the community of Eckville offering 9,682 sq. ft. divided into five individual bays. Situated on a 90 ft x 130 ft lot, this property benefits from strong exposure and convenient access within town. The building has been recently renovated, providing updated finishes and systems that appeal to both tenants and owner-occupiers.Eckville is located approximately 24 km west of Sylvan Lake, making it a convenient service and retail hub for surrounding communities. The multi-bay layout allows for diversified tenancy and flexible use, making this an attractive option for investors or business owners seeking a well-maintained commercial property in a growing regional market. (id:32467)

Property Features

Building

  • Fireplace: No
  • Interior Size: 9682 sqft
  • Building Type: Commercial Mix

Land

  • Land Size: 90x130|Unknown

Ownership

  • Type: Freehold

Zoning

  • Description: C!

Information entered by REMAX ACA Realty
Listing information last updated on: 2026-04-13 20:58:39


Book your free home evaluation with a 1% REALTOR® now!


How much could you save in commission selling with One Percent Realty?

Slide to select your home's price:

$500,000

Your One Percent Realty Commission savings

$500,000

Savings calculated using One Percent Realty's posted commission rates compared to another agent charging 7% on the first 100k & 3% on the balance + GST. Not all agents charge the same.

One Percent Realty's top FAQs

Q
What is the deal exactly, with One Percent Realty?

We are a fully licensed real estate company that offers full service but at a discount commission. In terms of services and exposure, we are identical to whoever you would like to compare us with. We are on MLS®, all the top internet real estates sites, we place a sign on your property ( if it's allowed ), we show the property, hold open houses, advertise it, handle all the negotiations, plus the conveyancing. There is nothing that you are not getting, except for a high commission!

Q
What do you charge?

We charge a total of $7,950 for residential properties under $400,000. For residential properties $400,000-$900,000 we charge $9,950. For residential properties over $900,000 we charge 1% of the sale price plus $950. Plus Applicable taxes, of course. We also offer the flexibility to offer more commission to the buyer's agent, if you want to. It is as simple as that! For commercial properties, farms, or development properties please contact a One Percent agent directly or fill out the market evaluation form on the bottom right of our website pages and a One Percent agent will get back to you to discuss the particulars.

Q
Are your listings on MLS® and realtor.ca?

Yes, and yes.


Learn more about the One Percent Realty Deal