5701 46 Avenue, Stettler

2026-04-09
 

Quick Summary

Location
5701 46 Avenue, Stettler, Alberta T0C2L1
Price
$140,000 CAD
Status:
For Sale
Property Type:
Single Family
Area:
948 sqft
Bedrooms:
1
Bathrooms:
2
Year of Construction:
1960

MLS®#A2300055

Property Description

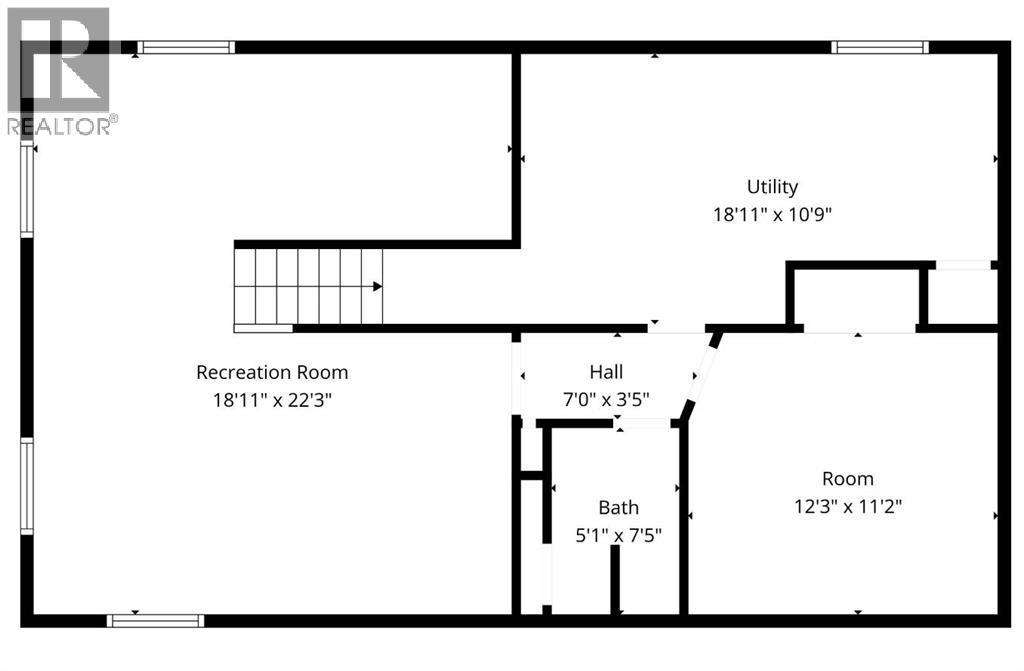
Located in a desirable Stettler neighborhood very close to schools, this corner-lot property offers an opportunity for buyers seeking a project or investment with future potential.The home features one bedroom on the main floor along with main-floor laundry. The lower level includes a living area, den and a half bath, providing additional space for storage, workspace, or flexible use.Outdoor features include a front deck and a covered back deck. A single attached garage and two sheds offer added storage and utility. (id:32467)

Property Features

Ammenities Near By

  • Ammenities Near By: Park, Playground, Schools

Building

  • Appliances: None
  • Architectural Style: Bungalow
  • Basement Development: Finished
  • Basement Type: Full (Finished)
  • Construction Style: Detached
  • Cooling Type: None
  • Exterior Finish: Vinyl siding
  • Fireplace: No
  • Flooring Type: Carpeted, Laminate, Vinyl
  • Interior Size: 948 sqft
  • Building Type: House
  • Stories: 1

Features

  • Feature: See remarks

Land

  • Land Size: 7042.06 sqft|4,051 - 7,250 sqft

Ownership

  • Type: Freehold

Structure

  • Structure: Shed, Deck

Zoning

  • Description: R1

Information entered by Real Broker
Listing information last updated on: 2026-04-09 22:09:59


Book your free home evaluation with a 1% REALTOR® now!


How much could you save in commission selling with One Percent Realty?

Slide to select your home's price:

$500,000

Your One Percent Realty Commission savings

$500,000

Savings calculated using One Percent Realty's posted commission rates compared to another agent charging 7% on the first 100k & 3% on the balance + GST. Not all agents charge the same.

One Percent Realty's top FAQs

Q
What is the deal exactly, with One Percent Realty?

We are a fully licensed real estate company that offers full service but at a discount commission. In terms of services and exposure, we are identical to whoever you would like to compare us with. We are on MLS®, all the top internet real estates sites, we place a sign on your property ( if it's allowed ), we show the property, hold open houses, advertise it, handle all the negotiations, plus the conveyancing. There is nothing that you are not getting, except for a high commission!

Q
What do you charge?

We charge a total of $7,950 for residential properties under $400,000. For residential properties $400,000-$900,000 we charge $9,950. For residential properties over $900,000 we charge 1% of the sale price plus $950. Plus Applicable taxes, of course. We also offer the flexibility to offer more commission to the buyer's agent, if you want to. It is as simple as that! For commercial properties, farms, or development properties please contact a One Percent agent directly or fill out the market evaluation form on the bottom right of our website pages and a One Percent agent will get back to you to discuss the particulars.

Q
Are your listings on MLS® and realtor.ca?

Yes, and yes.


Learn more about the One Percent Realty Deal