21 Midridge Green SE, CALGARY

2025-12-03
 

Quick Summary

Location
21 Midridge Green SE, CALGARY, Alberta T2X1C9
Price
$624,900 CAD
Status:
For Sale
Property Type:
Single Family
Area:
1040 sqft
Bedrooms:
2 bed +1
Bathrooms:
2
Year of Construction:
1978

MLS®#A2273365

Property Description

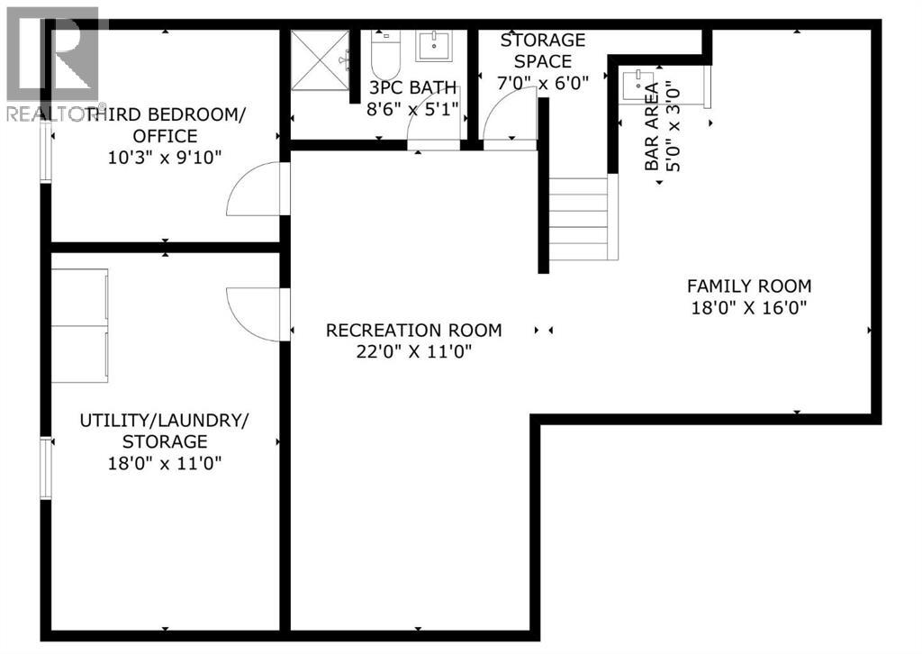
Tucked away on one of the quietest cul-de-sacs in the neighbourhood, this beautiful Keith built bungalow will check all the boxes in your search. With 3 bedrooms, 2 bathrooms, a fully finished basement, and a detached double garage, you'll have space to grow store all your belongings that you just can't part with. The main floor living room was a bedroom at one time and could easily be converted back to a bedroom or office. The kitchen has seen updates over the years with refinished oak cabinets, quartz counters and stainless-steel appliances. The hardwood floors are a bonus and will stand the test of time. With other recent updates like new windows on the main floor (2020), updated vinyl siding on the house and garage, two renovated bathrooms (2023) and a 2-year-old hot water tank, the list of jobs to complete will be minimal. The yard is amazing, and you can tell how much time and love has been poured into it. The perennials, arch ways, vines, huge deck, and privacy screen will make this space easy to maintain, and even better to enjoy your time in soaking in the west sun and watching the sun set. We really couldn’t be more excited about this gorgeous house on this perfect cul-de-sac. Only steps to Fish Creek Park, Midnapore Lake, and the neighbourhood schools. We’d love to accommodate your showing needs and invite you to come check out this amazing bungalow in Midnapore! (id:32467)

Property Features

Ammenities Near By

  • Ammenities Near By: Park, Playground, Schools, Shopping, Water Nearby

Building

  • Appliances: Washer, Refrigerator, Range - Electric, Dishwasher, Dryer, Microwave
  • Architectural Style: Bungalow
  • Basement Development: Finished
  • Basement Type: Full (Finished)
  • Construction Style: Detached
  • Cooling Type: None
  • Exterior Finish: Brick
  • Fireplace: Yes
  • Flooring Type: Carpeted, Hardwood, Tile
  • Interior Size: 1040 sqft
  • Building Type: House
  • Stories: 1

Features

  • Feature: Cul-de-sac, Back lane, Wet bar

Land

  • Land Size: 381 m2|4,051 - 7,250 sqft

Ownership

  • Type: Freehold

Zoning

  • Description: R-CG

Information entered by RE/MAX Landan Real Estate
Listing information last updated on: 2025-12-24 01:18:21


Book your free home evaluation with a 1% REALTOR® now!


How much could you save in commission selling with One Percent Realty?

Slide to select your home's price:

$500,000

Your One Percent Realty Commission savings

$500,000

Savings calculated using One Percent Realty's posted commission rates compared to another agent charging 7% on the first 100k & 3% on the balance + GST. Not all agents charge the same.

Send a Message


One Percent Realty's top FAQs

Q
What is the deal exactly, with One Percent Realty?

We are a fully licensed real estate company that offers full service but at a discount commission. In terms of services and exposure, we are identical to whoever you would like to compare us with. We are on MLS®, all the top internet real estates sites, we place a sign on your property ( if it's allowed ), we show the property, hold open houses, advertise it, handle all the negotiations, plus the conveyancing. There is nothing that you are not getting, except for a high commission!

Q
What do you charge?

We charge a total of $7,950 for residential properties under $400,000. For residential properties $400,000-$900,000 we charge $9,950. For residential properties over $900,000 we charge 1% of the sale price plus $950. Plus Applicable taxes, of course. We also offer the flexibility to offer more commission to the buyer's agent, if you want to. It is as simple as that! For commercial properties, farms, or development properties please contact a One Percent agent directly or fill out the market evaluation form on the bottom right of our website pages and a One Percent agent will get back to you to discuss the particulars.

Q
Are your listings on MLS® and realtor.ca?

Yes, and yes.


Learn more about the One Percent Realty Deal

 

April Isaac Associate

Phone:
403-888-4003
Email:
aprilonepercent@gmail.com
Support Area:
CALGARY, SOUTH EAST CALGARY, SOUTH WEST CALGARY, NORTH CALGARY, NORTH EAST CALGARY, NORTH WEST CALGARY, EAST CALGARY, WEST CALGARY, AIRDRIE, COCHRANE, OKOTOKS, CHESTERMERE, STRATHMORE, GREATER CALGARY AREA, ROCKYVIEW, DIDSBURY, LANGDON

22 YRS EXPER, 1300+ SALES, marketing savvy, people savvy. 100'S OF HAPPY CUSTOMERS, DOZENS UPON DOZ ...

Full Profile

 

Anna Madden Associate

Phone:
587-830-2405
Email:
anna.madden05@gmail.com
Support Area:
Calgary, Airdrie, Cochrane, chestermere, Langdon, Okotoks, High river, Olds, Rocky View, Foothills

Experienced Residential Realtor serving Calgary and surrounding communities. I have knowledge in buy ...

Full Profile

 

Dabs Fashola Associate

Phone:
403-619-0621
Email:
homesbydabs@gmail.com
Support Area:
Calgary Southwest, Calgary Southeast, Calgary Northwest, Calgary Northeast, Okotoks, Chestermere:, Airdrie, Olds

REAL ESTATE NEGOTIATION EXPERT (RENE)Your Trusted and Experienced Realtor | Turning Real E ...

Full Profile