3804 Centre A Street NE, CALGARY

2025-11-16
 

Quick Summary

Location
3804 Centre A Street NE, CALGARY, Alberta T3E3A6
Price
$419,000 CAD
Status:
For Sale
Property Type:
Single Family
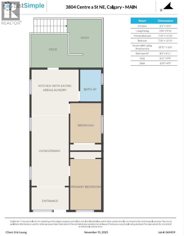
Area:
741 sqft
Bedrooms:
2 bed +1
Bathrooms:
2
Year of Construction:
1910

MLS®#A2270804

Property Description

Exceptional Inner-City Opportunity – Legal Suited Bungalow on Quiet Cul-de-Sac!Discover incredible value in this fully updated legal-suited bungalow tucked away on a quiet cul-de-sac in the heart of the city. Perfect for investors, families, or redevelopment, this property offers flexibility, privacy, and strong long-term potential.Highlights:•LEGAL basement suite with separate entrance – ideal mortgage helper or rental income•Separate laundry and full kitchens on both levels•2 bedrooms up + 1 down, 2 full bathrooms, 2 living & dining areas•Expansive two-tier walk-out deck rebuilt in 2016 – great for entertaining•Newer furnace & hot water tank (2017)•Ample parking & private yard in a quiet locationUnbeatable Location:•Minutes to Deerfoot Trail and Downtown•Steps to Centre Street, schools, shops, and transit•Close to major bus routes: #3, #301 (Downtown) and #300 (Airport)Investment & Redevelopment Potential:Located in a high-demand inner-city area with active infill developments nearby, this home offers excellent appreciation potential. Recent upgrades include new basement tiles and bathtub, making it ready to rent, live in, or hold for future redevelopment.Don’t miss this rare inner-city opportunity – book your private showing today! (id:32467)

Property Features

Building

  • Appliances: Washer, Refrigerator, Range - Electric, Dishwasher, Stove, Dryer, Washer & Dryer
  • Architectural Style: Bungalow
  • Basement Development: Finished
  • Basement Features: Walk out
  • Basement Type: Full (Finished)
  • Construction Style: Detached
  • Cooling Type: None
  • Exterior Finish: Stucco
  • Fireplace: No
  • Flooring Type: Carpeted, Laminate, Tile
  • Interior Size: 741 sqft
  • Building Type: House
  • Stories: 1

Features

  • Feature: Cul-de-sac, No Animal Home, No Smoking Home, Environmental reserve

Land

  • Land Size: 272.95 m2|0-4,050 sqft

Ownership

  • Type: Freehold

Structure

  • Structure: Deck

Zoning

  • Description: R-CG

Information entered by First Place Realty
Listing information last updated on: 2025-12-19 03:01:29


Book your free home evaluation with a 1% REALTOR® now!


How much could you save in commission selling with One Percent Realty?

Slide to select your home's price:

$500,000

Your One Percent Realty Commission savings

$500,000

Savings calculated using One Percent Realty's posted commission rates compared to another agent charging 7% on the first 100k & 3% on the balance + GST. Not all agents charge the same.

Send a Message


One Percent Realty's top FAQs

Q
What is the deal exactly, with One Percent Realty?

We are a fully licensed real estate company that offers full service but at a discount commission. In terms of services and exposure, we are identical to whoever you would like to compare us with. We are on MLS®, all the top internet real estates sites, we place a sign on your property ( if it's allowed ), we show the property, hold open houses, advertise it, handle all the negotiations, plus the conveyancing. There is nothing that you are not getting, except for a high commission!

Q
What do you charge?

We charge a total of $7,950 for residential properties under $400,000. For residential properties $400,000-$900,000 we charge $9,950. For residential properties over $900,000 we charge 1% of the sale price plus $950. Plus Applicable taxes, of course. We also offer the flexibility to offer more commission to the buyer's agent, if you want to. It is as simple as that! For commercial properties, farms, or development properties please contact a One Percent agent directly or fill out the market evaluation form on the bottom right of our website pages and a One Percent agent will get back to you to discuss the particulars.

Q
Are your listings on MLS® and realtor.ca?

Yes, and yes.


Learn more about the One Percent Realty Deal

 

April Isaac Associate

Phone:
403-888-4003
Email:
aprilonepercent@gmail.com
Support Area:
CALGARY, SOUTH EAST CALGARY, SOUTH WEST CALGARY, NORTH CALGARY, NORTH EAST CALGARY, NORTH WEST CALGARY, EAST CALGARY, WEST CALGARY, AIRDRIE, COCHRANE, OKOTOKS, CHESTERMERE, STRATHMORE, GREATER CALGARY AREA, ROCKYVIEW, DIDSBURY, LANGDON

22 YRS EXPER, 1300+ SALES, marketing savvy, people savvy. 100'S OF HAPPY CUSTOMERS, DOZENS UPON DOZ ...

Full Profile

 

Anna Madden Associate

Phone:
587-830-2405
Email:
anna.madden05@gmail.com
Support Area:
Calgary, Airdrie, Cochrane, chestermere, Langdon, Okotoks, High river, Olds, Rocky View, Foothills

Experienced Residential Realtor serving Calgary and surrounding communities. I have knowledge in buy ...

Full Profile

 

Dabs Fashola Associate

Phone:
403-619-0621
Email:
homesbydabs@gmail.com
Support Area:
Calgary Southwest, Calgary Southeast, Calgary Northwest, Calgary Northeast, Okotoks, Chestermere:, Airdrie, Olds

REAL ESTATE NEGOTIATION EXPERT (RENE)Your Trusted and Experienced Realtor | Turning Real E ...

Full Profile