46 Heritage Heath, Cochrane

2025-11-12
 

Quick Summary

Location
46 Heritage Heath, Cochrane, Alberta T0T0T0
Price
$661,900 CAD
Status:
For Sale
Property Type:
Single Family
Area:
2222 sqft
Bedrooms:
3
Bathrooms:
3
Year of Construction:
2025

MLS®#A2262940

Property Description

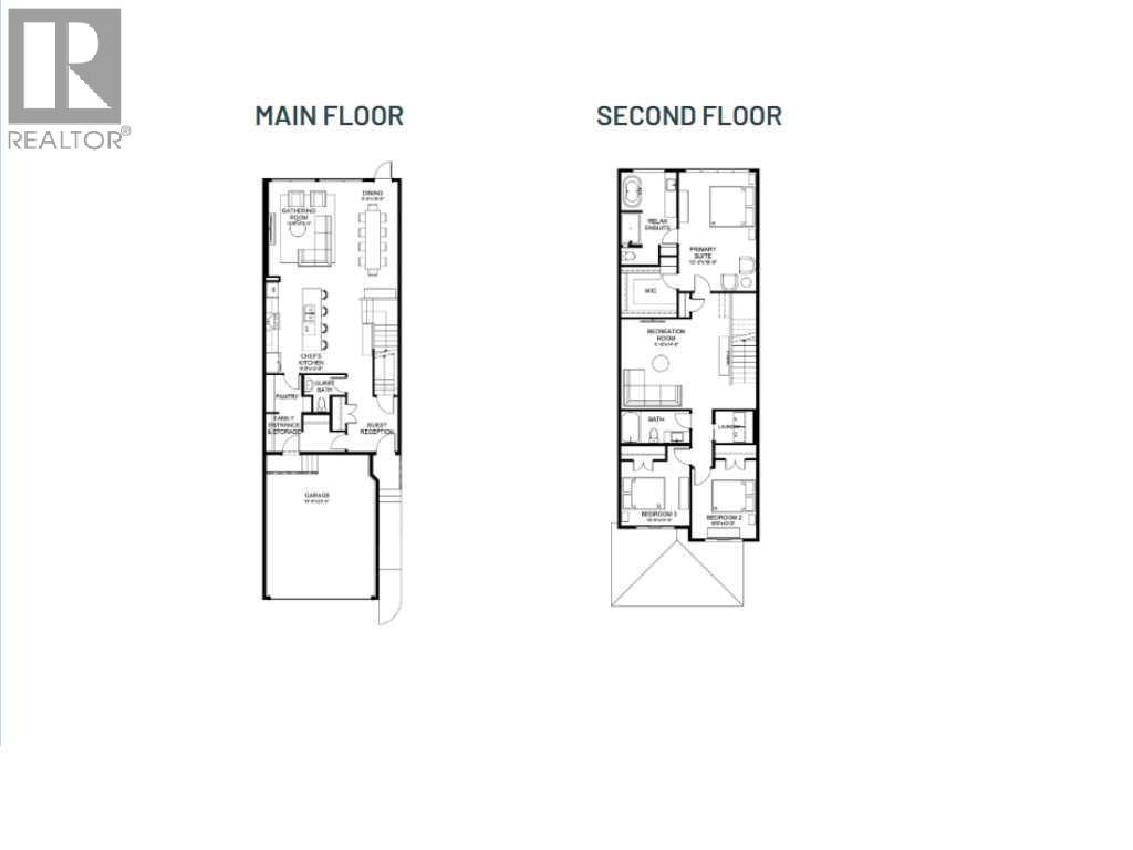
Cantiro Showhomes open Saturday & Sunday, noon to 5 PM.Welcome to the Entertain Gather, a stunning home built by Cantiro Homes. Located in the beautiful and highly sought-after community of West Hawk, this home offers 2,169 SQUARE FEET of thoughtfully designed living space. The open-concept floor plan is filled with natural light from OVERSIZED WINDOWS, creating a bright and inviting atmosphere perfect for hosting and everyday living.The main level is designed for effortless entertaining, featuring a DINING AREA THAT SEATS 12, allowing for gatherings both large and small. The seamless flow of this home transitions easily from cocktail hour to dinner time, and finally to relaxing in the great room for after-dinner conversations. A convenient SIDE DOOR PROVIDES AN ADDITIONAL ENTRANCE, adding flexibility and functionality.Upstairs, the layout includes a spacious CENTRAL BONUS ROOM with IRON SPINDLE RAILINGS, offering the perfect place for family movie nights or relaxation. The PRIMARY SUITE provides a luxurious retreat with a large WALK-IN CLOSET and a 5-PIECE ENSUITE featuring a FREE-STANDING SOAKER TUB and a FULLY TILED SHOWER. Two generous secondary bedrooms, a LAUNDRY ROOM, a RECREATION ROOM, and a 4-PIECE BATHROOM complete the upper level.Every Cantiro Home includes a suite of SMART HOME FEATURES, such as a SMART THERMOSTAT, DOORBELL CAMERA, KEYLESS DOOR LOCK, and WIFI-CONNECTED GARAGE DOOR OPENER. Efficiency and comfort are enhanced with TRIPLE PANE WINDOWS and a TANKLESS WATER HEATER.There is still time to make this home uniquely yours. CHOOSE FROM A SELECTION of designer-curated interior color collections to match your personal style and vision.The West Hawk community is carefully designed around 27 ACRES OF SLOPING ENVIRONMENTAL RESERVE, preserving native wildlife habitats while offering scenic viewpoints, rest areas, and a series of WALKING TRAILS AND RAVINE CROSSINGS. These natural features are seamlessly integrated into Bike Cochrane’s exclusive bike network, giving residents easy access to the outdoors.Future community enhancements in Phases 2 and 3 include an OFF-LEASH DOG PARK and a PLAYGROUND, both expected to be completed by early fall 2025. Over half of the homes in West Hawk are strategically positioned to back onto key amenities such as the ENVIRONMENTAL RESERVE RIDGE, the future DOG PARK in the northeastern corner, and the planned TOT LOT along Heritage Boulevard. A FUTURE K–9 SCHOOL SITE will further enhance the family-friendly atmosphere and elevate the community’s overall quality of life.Located ONLY 16 MINUTES FROM GHOST LAKE, this home perfectly combines modern design, everyday comfort, and proximity to nature. Don't miss your chance to view this home today! (id:32467)

Property Features

Ammenities Near By

  • Ammenities Near By: Park, Playground, Schools, Shopping

Building

  • Appliances: Refrigerator, Dishwasher, Stove, Microwave, Hood Fan
  • Basement Development: Unfinished
  • Basement Type: Full (Unfinished)
  • Construction Style: Detached
  • Cooling Type: None
  • Exterior Finish: Vinyl siding
  • Fireplace: Yes
  • Flooring Type: Carpeted, Vinyl Plank
  • Interior Size: 2222 sqft
  • Building Type: House
  • Stories: 2

Features

  • Feature: Closet Organizers

Land

  • Land Size: 327.57 m2|0-4,050 sqft

Ownership

  • Type: Freehold

Structure

  • Structure: None

Zoning

  • Description: TBD

Information entered by eXp Realty
Listing information last updated on: 2025-11-13 00:02:01


Book your free home evaluation with a 1% REALTOR® now!


How much could you save in commission selling with One Percent Realty?

Slide to select your home's price:

$500,000

Your One Percent Realty Commission savings

$500,000

Savings calculated using One Percent Realty's posted commission rates compared to another agent charging 7% on the first 100k & 3% on the balance + GST. Not all agents charge the same.

Send a Message


One Percent Realty's top FAQs

Q
What is the deal exactly, with One Percent Realty?

We are a fully licensed real estate company that offers full service but at a discount commission. In terms of services and exposure, we are identical to whoever you would like to compare us with. We are on MLS®, all the top internet real estates sites, we place a sign on your property ( if it's allowed ), we show the property, hold open houses, advertise it, handle all the negotiations, plus the conveyancing. There is nothing that you are not getting, except for a high commission!

Q
What do you charge?

We charge a total of $7,950 for residential properties under $400,000. For residential properties $400,000-$900,000 we charge $9,950. For residential properties over $900,000 we charge 1% of the sale price plus $950. Plus Applicable taxes, of course. We also offer the flexibility to offer more commission to the buyer's agent, if you want to. It is as simple as that! For commercial properties, farms, or development properties please contact a One Percent agent directly or fill out the market evaluation form on the bottom right of our website pages and a One Percent agent will get back to you to discuss the particulars.

Q
Are your listings on MLS® and realtor.ca?

Yes, and yes.


Learn more about the One Percent Realty Deal

 

April Isaac Associate

Phone:
403-888-4003
Email:
aprilonepercent@gmail.com
Support Area:
CALGARY, SOUTH EAST CALGARY, SOUTH WEST CALGARY, NORTH CALGARY, NORTH EAST CALGARY, NORTH WEST CALGARY, EAST CALGARY, WEST CALGARY, AIRDRIE, COCHRANE, OKOTOKS, CHESTERMERE, STRATHMORE, GREATER CALGARY AREA, ROCKYVIEW, DIDSBURY, LANGDON

22 YRS EXPER, 1300+ SALES, marketing savvy, people savvy. 100'S OF HAPPY CUSTOMERS, DOZENS UPON DOZ ...

Full Profile

 

Anna Madden Associate

Phone:
587-830-2405
Email:
anna.madden05@gmail.com
Support Area:
Calgary, Airdrie, Cochrane, chestermere, Langdon, Okotoks, High river, Olds, Rocky View, Foothills

Experienced Residential Realtor serving Calgary and surrounding communities. I have knowledge in buy ...

Full Profile

 

Ram Mallampati Associate

Phone:
403-803-6511
Email:
ramonepercent@gmail.com
Support Area:
Calgary, Airdrie, Cochrane, Reddeer

...

Full Profile