47 Heritage Heath, Cochrane

2025-11-12
 

Quick Summary

Location
47 Heritage Heath, Cochrane, Alberta T0T0T0
Price
$749,900 CAD
Status:
For Sale
Property Type:
Single Family
Area:
2505 sqft
Bedrooms:
3
Bathrooms:
3
Year of Construction:
2025

MLS®#A2262943

Property Description

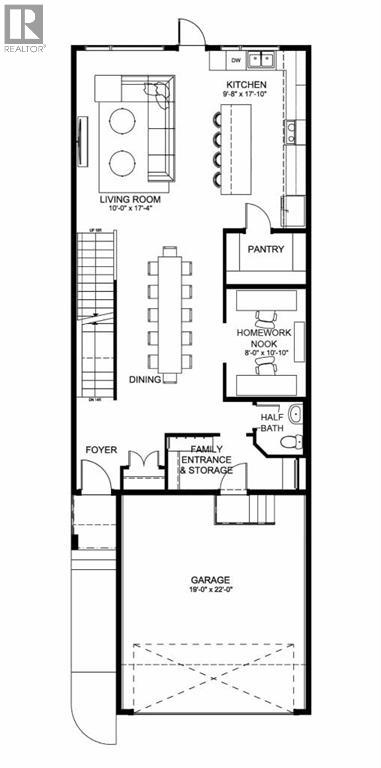
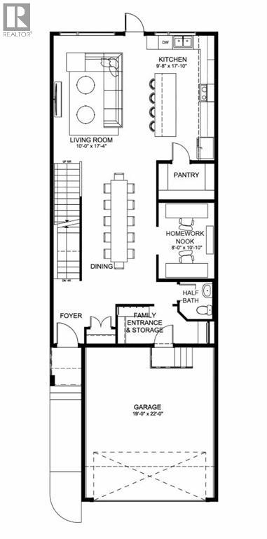
Cantiro Showhomes open Saturday & Sunday, noon to 5 PM.Welcome to this Beautifully Designed Home created for modern family living. The spacious dining area comfortably seats 12 OR MORE PEOPLE, providing the perfect setting for both intimate dinners and large family gatherings. The thoughtfully designed kitchen invites shared meal preparation, turning everyday cooking into an enjoyable experience at the heart of the home.A versatile MAIN-FLOOR DEN offers flexibility and can be easily transformed into a dedicated homework area or a welcoming guest room. Upstairs, two generously sized bedrooms provide quiet retreats ideal for study or relaxation. The expansive PRIMARY SUITE serves as a private sanctuary, offering a peaceful escape where self-care takes center stage.This home is filled with impressive details, including sleek HORIZONTAL ALUMINUM RAILINGS WITH CLEAR GLASS, an elegant ELECTRIC FIREPLACE that anchors the living space, SOARING 9FT FOUNDATIONS, and a desirable location BACKING ONTO THE ENVIRONMENTAL RESERVE.Every Cantiro Home is equipped with modern comfort and efficiency in mind, featuring a TANKLESS WATER HEATER, TRIPLE PANE WINDOWS, and SMART HOME FEATURES such as a SMART THERMOSTAT, DOORBELL CAMERA, KEYLESS DOOR LOCK, and WIFI-CONNECTED GARAGE DOOR OPENER.There is still time to make this home uniquely your own. CHOOSE FROM A SELECTION of designer-curated interior color collections to perfectly match your personal style and vision.The West Hawk community is thoughtfully designed around 27 ACRES OF SLOPING ENVIRONMENTAL RESERVE, preserving native wildlife habitats while offering residents scenic viewpoints, rest areas, and a network of WALKING TRAILS AND RAVINE CROSSINGS. These natural features are integrated into Bike Cochrane’s exclusive bike network, providing residents with seamless access to the outdoors.Future community enhancements in Phases 2 and 3 include an OFF-LEASH DOG PARK and a PLAYGROUND, both expected to be completed by early fall 2025. Over 50% of the homes in West Hawk are strategically positioned to back onto key amenities such as the Environmental Reserve Ridge, the future dog park in the northeastern corner, and the planned Tot Lot along Heritage Boulevard. A FUTURE K–9 SCHOOL SITE will further enhance the family-friendly atmosphere and contribute to the exceptional quality of life for residents. Don't miss your chance to view this beauty today! (id:32467)

Property Features

Ammenities Near By

  • Ammenities Near By: Park, Playground, Schools, Shopping

Building

  • Appliances: Refrigerator, Dishwasher, Stove, Microwave, Hood Fan
  • Basement Development: Unfinished
  • Basement Type: Full (Unfinished)
  • Construction Style: Detached
  • Cooling Type: None
  • Exterior Finish: Vinyl siding
  • Fireplace: Yes
  • Flooring Type: Carpeted, Tile, Vinyl Plank
  • Interior Size: 2505 sqft
  • Building Type: House
  • Stories: 2

Features

  • Feature: Closet Organizers, No Animal Home, No Smoking Home

Land

  • Land Size: 343.65 m2|0-4,050 sqft

Ownership

  • Type: Freehold

Structure

  • Structure: Deck

Zoning

  • Description: TBD

Information entered by eXp Realty
Listing information last updated on: 2025-11-12 23:51:20


Book your free home evaluation with a 1% REALTOR® now!


How much could you save in commission selling with One Percent Realty?

Slide to select your home's price:

$500,000

Your One Percent Realty Commission savings

$500,000

Savings calculated using One Percent Realty's posted commission rates compared to another agent charging 7% on the first 100k & 3% on the balance + GST. Not all agents charge the same.

Send a Message


One Percent Realty's top FAQs

Q
What is the deal exactly, with One Percent Realty?

We are a fully licensed real estate company that offers full service but at a discount commission. In terms of services and exposure, we are identical to whoever you would like to compare us with. We are on MLS®, all the top internet real estates sites, we place a sign on your property ( if it's allowed ), we show the property, hold open houses, advertise it, handle all the negotiations, plus the conveyancing. There is nothing that you are not getting, except for a high commission!

Q
What do you charge?

We charge a total of $7,950 for residential properties under $400,000. For residential properties $400,000-$900,000 we charge $9,950. For residential properties over $900,000 we charge 1% of the sale price plus $950. Plus Applicable taxes, of course. We also offer the flexibility to offer more commission to the buyer's agent, if you want to. It is as simple as that! For commercial properties, farms, or development properties please contact a One Percent agent directly or fill out the market evaluation form on the bottom right of our website pages and a One Percent agent will get back to you to discuss the particulars.

Q
Are your listings on MLS® and realtor.ca?

Yes, and yes.


Learn more about the One Percent Realty Deal

 

April Isaac Associate

Phone:
403-888-4003
Email:
aprilonepercent@gmail.com
Support Area:
CALGARY, SOUTH EAST CALGARY, SOUTH WEST CALGARY, NORTH CALGARY, NORTH EAST CALGARY, NORTH WEST CALGARY, EAST CALGARY, WEST CALGARY, AIRDRIE, COCHRANE, OKOTOKS, CHESTERMERE, STRATHMORE, GREATER CALGARY AREA, ROCKYVIEW, DIDSBURY, LANGDON

22 YRS EXPER, 1300+ SALES, marketing savvy, people savvy. 100'S OF HAPPY CUSTOMERS, DOZENS UPON DOZ ...

Full Profile

 

Anna Madden Associate

Phone:
587-830-2405
Email:
anna.madden05@gmail.com
Support Area:
Calgary, Airdrie, Cochrane, chestermere, Langdon, Okotoks, High river, Olds, Rocky View, Foothills

Experienced Residential Realtor serving Calgary and surrounding communities. I have knowledge in buy ...

Full Profile

 

Ram Mallampati Associate

Phone:
403-803-6511
Email:
ramonepercent@gmail.com
Support Area:
Calgary, Airdrie, Cochrane, Reddeer

...

Full Profile