3, 2804 17 Avenue SW, CALGARY

2025-11-11
 

Quick Summary

Location
3, 2804 17 Avenue SW, CALGARY, Alberta T3E6K8
Price
$278,000 CAD
Status:
For Sale
Property Type:
Single Family
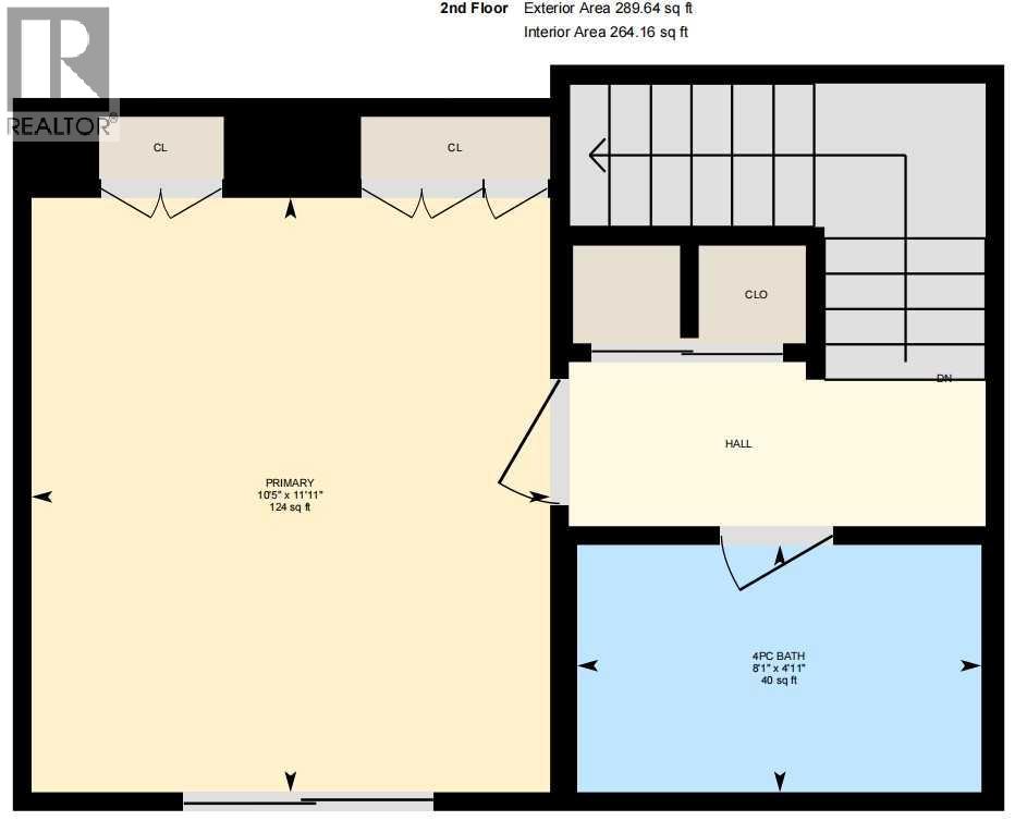
Area:
580 sqft
Bedrooms:
1
Bathrooms:
2
Year of Construction:
1978
Brochure Link:
Video Link:

MLS®#A2266952

Property Description

Back on the market! Modern Minimalist Corner Townhouse – Stylish, Simple, and Sustainable Living!Located in a peaceful, well-connected inner city neighborhood, this home offers the perfect balance of urban convenience and tranquil living.Experience the beauty of simplicity in this thoughtfully designed minimalist townhouse, where clean lines and open spaces create a calm, clutter-free atmosphere. This home features an open-concept layout that seamlessly connects the living, dining, and kitchen areas— perfect for those who appreciate functional design and modern aesthetics.The kitchen comes equipped with brand-new stainless steel appliances, sleek cabinetry, and energy-efficient LED fixtures that blend form and function. Upstairs, the spacious master bedroom with double closets, providing ample storage while maintaining the minimalist aesthetic. A private balcony, ideal for morning coffee or evening relaxation. Enjoy the abundant sunlight and a serene retreat from the city’s bustle! A convenient 4 piece bathroom with tasteful designer wall completes this level,Downstairs, a spacious basement living room offers a cozy retreat for relaxing or working— ideal for movie nights or a quiet office or 2nd bedroom. The home includes a newly renovated bathroom with modern fixtures, plus a laundry room with built-in shelving for organized convenience.Throughout the home, high-end luxury vinyl plank flooring adds warmth, durability, and a refined modern touch.Outside, you’ll find a tidy yard and a welcoming front porch.With neutral color tones, high-quality finishes, and low-maintenance materials, this townhouse is ideal for anyone embracing a minimalist lifestyle — less stuff, more space, and a focus on what truly matters.Close to everything, best inner-city living with quick access to downtown, 17th Ave, and the CTrain station. Few minutes away to Shaganappi Point Golf Course, Edworthy Park, schools, playgrounds, shops, restaurants and cafés. (id:32467)

Property Features

Ammenities Near By

  • Ammenities Near By: Schools, Shopping

Building

  • Appliances: Washer, Refrigerator, Dishwasher, Stove, Dryer, Microwave Range Hood Combo
  • Basement Development: Finished
  • Basement Type: Full (Finished)
  • Construction Style: Attached
  • Cooling Type: None
  • Exterior Finish: Composite Siding, Concrete, Stucco
  • Fireplace: No
  • Flooring Type: Vinyl
  • Interior Size: 580 sqft
  • Building Type: Row / Townhouse
  • Stories: 2

Features

  • Feature: No Animal Home, No Smoking Home, Parking

Land

  • Land Size: Unknown

Maintenance Fee

  • Maintenance Fee: 300.00

Ownership

  • Type: Condominium/Strata

Zoning

  • Description: MU-1 f4.5h22

Information entered by Century 21 Bravo Realty
Listing information last updated on: 2025-12-08 19:00:07


Book your free home evaluation with a 1% REALTOR® now!


How much could you save in commission selling with One Percent Realty?

Slide to select your home's price:

$500,000

Your One Percent Realty Commission savings

$500,000

Savings calculated using One Percent Realty's posted commission rates compared to another agent charging 7% on the first 100k & 3% on the balance + GST. Not all agents charge the same.

Send a Message


One Percent Realty's top FAQs

Q
What is the deal exactly, with One Percent Realty?

We are a fully licensed real estate company that offers full service but at a discount commission. In terms of services and exposure, we are identical to whoever you would like to compare us with. We are on MLS®, all the top internet real estates sites, we place a sign on your property ( if it's allowed ), we show the property, hold open houses, advertise it, handle all the negotiations, plus the conveyancing. There is nothing that you are not getting, except for a high commission!

Q
What do you charge?

We charge a total of $7,950 for residential properties under $400,000. For residential properties $400,000-$900,000 we charge $9,950. For residential properties over $900,000 we charge 1% of the sale price plus $950. Plus Applicable taxes, of course. We also offer the flexibility to offer more commission to the buyer's agent, if you want to. It is as simple as that! For commercial properties, farms, or development properties please contact a One Percent agent directly or fill out the market evaluation form on the bottom right of our website pages and a One Percent agent will get back to you to discuss the particulars.

Q
Are your listings on MLS® and realtor.ca?

Yes, and yes.


Learn more about the One Percent Realty Deal

 

April Isaac Associate

Phone:
403-888-4003
Email:
aprilonepercent@gmail.com
Support Area:
CALGARY, SOUTH EAST CALGARY, SOUTH WEST CALGARY, NORTH CALGARY, NORTH EAST CALGARY, NORTH WEST CALGARY, EAST CALGARY, WEST CALGARY, AIRDRIE, COCHRANE, OKOTOKS, CHESTERMERE, STRATHMORE, GREATER CALGARY AREA, ROCKYVIEW, DIDSBURY, LANGDON

22 YRS EXPER, 1300+ SALES, marketing savvy, people savvy. 100'S OF HAPPY CUSTOMERS, DOZENS UPON DOZ ...

Full Profile

 

Anna Madden Associate

Phone:
587-830-2405
Email:
anna.madden05@gmail.com
Support Area:
Calgary, Airdrie, Cochrane, chestermere, Langdon, Okotoks, High river, Olds, Rocky View, Foothills

Experienced Residential Realtor serving Calgary and surrounding communities. I have knowledge in buy ...

Full Profile

 

Dabs Fashola Associate

Phone:
403-619-0621
Email:
homesbydabs@gmail.com
Support Area:
Calgary Southwest, Calgary Southeast, Calgary Northwest, Calgary Northeast, Okotoks, Chestermere:, Airdrie, Olds

REAL ESTATE NEGOTIATION EXPERT (RENE)Your Trusted and Experienced Realtor | Turning Real E ...

Full Profile