602 11 Avenue NE, CALGARY

2025-11-05
 

Quick Summary

Location
602 11 Avenue NE, CALGARY, Alberta T2E0Z7
Price
$3,250,000 CAD
Status:
For Sale
Property Type:
Multi-family
Area:
5252 sqft
Year of Construction:
2026

MLS®#A2269012

Property Description

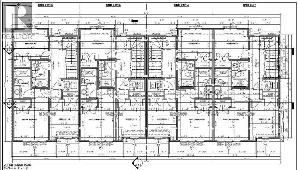
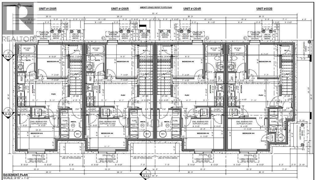
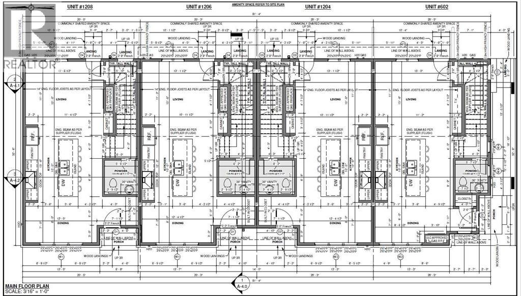
Exceptional Investment Opportunity – Brand-New 4-Plex in Renfrew!Elevate your portfolio with this architecturally striking, purpose-built 4-plex in desirable Renfrew—minutes from downtown Calgary. Each modern townhome features three bedrooms plus a fully legal one-bedroom basement suite, for a total of eight self-contained units, each with private entrances and separate mechanical systems.Built with premium, low-maintenance finishes—stucco, quartz countertops, stainless steel appliances, luxury vinyl plank flooring, and energy-efficient windows—this property offers strong rental appeal and reduced operating costs.Enjoy timeless curb appeal with a cohesive design, professional landscaping, and modern exterior lighting. Close to Deerfoot trail, 16th Ave, transit, parks, and schools, this location ensures consistent demand and excellent returns.Eligible for CMHC’s MLI Select program, offering enhanced financing options.Don’t miss this rare, high-yield multi-family investment—contact us today! Completion in March 2026. (id:32467)

Property Features

Ammenities Near By

  • Ammenities Near By: Park, Playground, Schools

Building

  • Basement Development: Finished
  • Basement Features: Separate entrance
  • Basement Type: Full (Finished)
  • Exterior Finish: Stucco
  • Fireplace: No
  • Interior Size: 5252 sqft
  • Building Type: Multi-Family

Land

  • Land Size: 6000 sqft|4,051 - 7,250 sqft

Ownership

  • Type: Freehold

Zoning

  • Description: R-CG

Information entered by eXp Realty
Listing information last updated on: 2025-11-19 13:19:41


Book your free home evaluation with a 1% REALTOR® now!


How much could you save in commission selling with One Percent Realty?

Slide to select your home's price:

$500,000

Your One Percent Realty Commission savings

$500,000

Savings calculated using One Percent Realty's posted commission rates compared to another agent charging 7% on the first 100k & 3% on the balance + GST. Not all agents charge the same.

Send a Message


One Percent Realty's top FAQs

Q
What is the deal exactly, with One Percent Realty?

We are a fully licensed real estate company that offers full service but at a discount commission. In terms of services and exposure, we are identical to whoever you would like to compare us with. We are on MLS®, all the top internet real estates sites, we place a sign on your property ( if it's allowed ), we show the property, hold open houses, advertise it, handle all the negotiations, plus the conveyancing. There is nothing that you are not getting, except for a high commission!

Q
What do you charge?

We charge a total of $7,950 for residential properties under $400,000. For residential properties $400,000-$900,000 we charge $9,950. For residential properties over $900,000 we charge 1% of the sale price plus $950. Plus Applicable taxes, of course. We also offer the flexibility to offer more commission to the buyer's agent, if you want to. It is as simple as that! For commercial properties, farms, or development properties please contact a One Percent agent directly or fill out the market evaluation form on the bottom right of our website pages and a One Percent agent will get back to you to discuss the particulars.

Q
Are your listings on MLS® and realtor.ca?

Yes, and yes.


Learn more about the One Percent Realty Deal

 

April Isaac Associate

Phone:
403-888-4003
Email:
aprilonepercent@gmail.com
Support Area:
CALGARY, SOUTH EAST CALGARY, SOUTH WEST CALGARY, NORTH CALGARY, NORTH EAST CALGARY, NORTH WEST CALGARY, EAST CALGARY, WEST CALGARY, AIRDRIE, COCHRANE, OKOTOKS, CHESTERMERE, STRATHMORE, GREATER CALGARY AREA, ROCKYVIEW, DIDSBURY, LANGDON

22 YRS EXPER, 1300+ SALES, marketing savvy, people savvy. 100'S OF HAPPY CUSTOMERS, DOZENS UPON DOZ ...

Full Profile

 

Anna Madden Associate

Phone:
587-830-2405
Email:
anna.madden05@gmail.com
Support Area:
Calgary, Airdrie, Cochrane, chestermere, Langdon, Okotoks, High river, Olds, Rocky View, Foothills

Experienced Residential Realtor serving Calgary and surrounding communities. I have knowledge in buy ...

Full Profile

 

Dabs Fashola Associate

Phone:
403-619-0621
Email:
homesbydabs@gmail.com
Support Area:
Calgary Southwest, Calgary Southeast, Calgary Northwest, Calgary Northeast, Okotoks, Chestermere:, Airdrie, Olds

Your Trusted and Experienced Realtor | Turning Real Estate Dreams Into Reality!Every real ...

Full Profile