707 Mandalay Avenue, Carstairs

2025-10-30
 

Quick Summary

Location
707 Mandalay Avenue, Carstairs, Alberta T0M0N0
Price
$690,000 CAD
Status:
For Sale
Property Type:
Single Family
Area:
2425 sqft
Bedrooms:
3
Bathrooms:
3
Year of Construction:
2026

MLS®#A2267812

Property Description

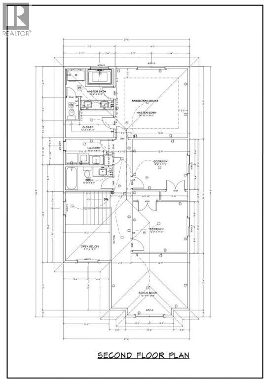
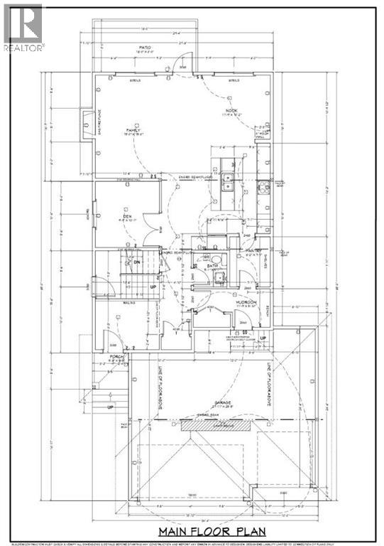
Discover this thoughtfully designed home, currently under construction and built to impress with quality craftsmanship and modern finishes. The main floor welcomes you with a bright open-concept layout featuring a spacious family room with a fireplace, a well-appointed kitchen with a large island and walk-in pantry, and a generous dining/nook area that leads out to your future patio. A dedicated main-floor den offers the perfect space for a home office or quiet study.Upstairs, you’ll find three spacious bedrooms including a stunning primary suite complete with a spa-inspired ensuite and a large walk-in closet. The upper level also features a sizeable bonus room, full bathroom, and a convenient laundry room designed for everyday ease.The basement remains undeveloped and backs onto a green space, giving you the opportunity to customize the space to suit your family’s future needs. A triple-car garage provides ample parking and storage. Exterior finishes include Hardie siding and elegant stone accents for timeless curb appeal.Located in a growing family-friendly community with access to parks, green spaces, and future amenities, this home blends modern comfort with everyday practicality. Secure your chance to own a brand-new home in an exciting new neighbourhood.Floor plan images are for this property. Photos of finished interiors/exteriors are from a similar home by the builder to showcase quality and style. These images are for reference only and final finishes, layout, and features may vary from the completed home. (id:32467)

Property Features

Ammenities Near By

  • Ammenities Near By: Park, Playground, Schools, Shopping

Building

  • Appliances: Refrigerator, Cooktop - Gas, Dishwasher, Microwave, Oven - Built-In, Hood Fan, Garage door opener
  • Basement Development: Unfinished
  • Basement Features: Walk out
  • Basement Type: Full (Unfinished)
  • Construction Style: Detached
  • Cooling Type: None
  • Exterior Finish: Concrete
  • Fireplace: Yes
  • Flooring Type: Carpeted, Tile, Vinyl
  • Interior Size: 2425 sqft
  • Building Type: House
  • Stories: 2

Land

  • Land Size: 5544.27 sqft|4,051 - 7,250 sqft

Ownership

  • Type: Freehold

Structure

  • Structure: Deck

Zoning

  • Description: R-1

Information entered by RE/MAX Complete Realty
Listing information last updated on: 2025-10-30 05:16:07


Book your free home evaluation with a 1% REALTOR® now!


How much could you save in commission selling with One Percent Realty?

Slide to select your home's price:

$500,000

Your One Percent Realty Commission savings

$500,000

Savings calculated using One Percent Realty's posted commission rates compared to another agent charging 7% on the first 100k & 3% on the balance + GST. Not all agents charge the same.

One Percent Realty's top FAQs

Q
What is the deal exactly, with One Percent Realty?

We are a fully licensed real estate company that offers full service but at a discount commission. In terms of services and exposure, we are identical to whoever you would like to compare us with. We are on MLS®, all the top internet real estates sites, we place a sign on your property ( if it's allowed ), we show the property, hold open houses, advertise it, handle all the negotiations, plus the conveyancing. There is nothing that you are not getting, except for a high commission!

Q
What do you charge?

We charge a total of $7,950 for residential properties under $400,000. For residential properties $400,000-$900,000 we charge $9,950. For residential properties over $900,000 we charge 1% of the sale price plus $950. Plus Applicable taxes, of course. We also offer the flexibility to offer more commission to the buyer's agent, if you want to. It is as simple as that! For commercial properties, farms, or development properties please contact a One Percent agent directly or fill out the market evaluation form on the bottom right of our website pages and a One Percent agent will get back to you to discuss the particulars.

Q
Are your listings on MLS® and realtor.ca?

Yes, and yes.


Learn more about the One Percent Realty Deal