630 Bayview Lane SW, Airdrie

2025-10-25
 

Quick Summary

Location
630 Bayview Lane SW, Airdrie, Alberta T4B5M4
Price
$719,900 CAD
Status:
For Sale
Property Type:
Single Family
Area:
2312 sqft
Bedrooms:
4
Bathrooms:
3
Year of Construction:
2025

MLS®#A2266612

Property Description

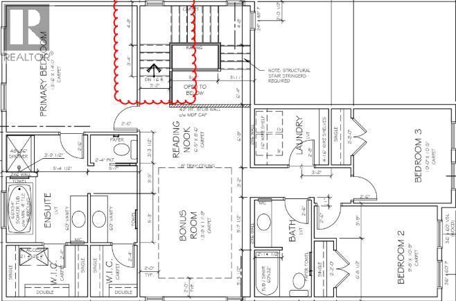
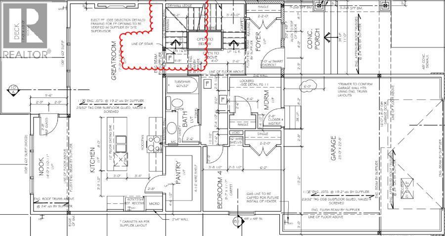
Welcome to the Marconi II by Genesis Builders, a brand new 4-bedroom, 3-bathroom home offering just over 2,300 square feet of well-designed living space in the sought-after community of Bayview.The main floor features an open-concept layout with 9-foot ceilings, a spacious kitchen with a walk-in pantry and a bright dining and living area centered around a cozy fireplace. A main floor bedroom or office and a full bathroom provides flexibility for guests or family members needing single-level living.Upstairs, the primary suite is a true retreat with double closets and a private ensuite featuring dual sinks, a soaker tub, and a separate shower. Two additional bedrooms, a bonus room, and a convenient upper-floor laundry complete the second floor.Additional highlights include a double attached garage, a rear deck for outdoor living, and a 9-foot basement, ideal for future development.Located in family-friendly Bayview, you are close to parks, pathways, canals, and schools. This new home combines style, functionality, and comfort for modern living. *Area size was calculated by applying the RMS to the blueprints provided by the builder. Photos are representative, colors and finishes may vary. Taxes to be assessed. (id:32467)

Property Features

Ammenities Near By

  • Ammenities Near By: Park, Playground, Recreation Nearby, Schools, Shopping

Building

  • Appliances: Refrigerator, Dishwasher, Stove, Microwave, Hood Fan
  • Basement Development: Unfinished
  • Basement Type: Full (Unfinished)
  • Construction Style: Detached
  • Cooling Type: None
  • Exterior Finish: Vinyl siding
  • Fireplace: Yes
  • Flooring Type: Carpeted, Vinyl, Vinyl Plank
  • Interior Size: 2312 sqft
  • Building Type: House
  • Stories: 2

Features

  • Feature: Cul-de-sac, Back lane, No Animal Home, No Smoking Home, Gas BBQ Hookup

Land

  • Land Size: 438 m2|4,051 - 7,250 sqft

Ownership

  • Type: Freehold

Structure

  • Structure: Deck

Zoning

  • Description: R1

Information entered by LPT Realty
Listing information last updated on: 2025-10-28 02:20:46


Book your free home evaluation with a 1% REALTOR® now!


How much could you save in commission selling with One Percent Realty?

Slide to select your home's price:

$500,000

Your One Percent Realty Commission savings

$500,000

Savings calculated using One Percent Realty's posted commission rates compared to another agent charging 7% on the first 100k & 3% on the balance + GST. Not all agents charge the same.

Send a Message


One Percent Realty's top FAQs

Q
What is the deal exactly, with One Percent Realty?

We are a fully licensed real estate company that offers full service but at a discount commission. In terms of services and exposure, we are identical to whoever you would like to compare us with. We are on MLS®, all the top internet real estates sites, we place a sign on your property ( if it's allowed ), we show the property, hold open houses, advertise it, handle all the negotiations, plus the conveyancing. There is nothing that you are not getting, except for a high commission!

Q
What do you charge?

We charge a total of $7,950 for residential properties under $400,000. For residential properties $400,000-$900,000 we charge $9,950. For residential properties over $900,000 we charge 1% of the sale price plus $950. Plus Applicable taxes, of course. We also offer the flexibility to offer more commission to the buyer's agent, if you want to. It is as simple as that! For commercial properties, farms, or development properties please contact a One Percent agent directly or fill out the market evaluation form on the bottom right of our website pages and a One Percent agent will get back to you to discuss the particulars.

Q
Are your listings on MLS® and realtor.ca?

Yes, and yes.


Learn more about the One Percent Realty Deal

 

April Isaac Associate

Phone:
403-888-4003
Email:
aprilonepercent@gmail.com
Support Area:
CALGARY, SOUTH EAST CALGARY, SOUTH WEST CALGARY, NORTH CALGARY, NORTH EAST CALGARY, NORTH WEST CALGARY, EAST CALGARY, WEST CALGARY, AIRDRIE, COCHRANE, OKOTOKS, CHESTERMERE, STRATHMORE, GREATER CALGARY AREA, ROCKYVIEW, DIDSBURY, LANGDON

22 YRS EXPER, 1300+ SALES, marketing savvy, people savvy. 100'S OF HAPPY CUSTOMERS, DOZENS UPON DOZ ...

Full Profile

 

Anna Madden Associate

Phone:
587-830-2405
Email:
anna.madden05@gmail.com
Support Area:
Calgary, Airdrie, Cochrane, chestermere, Langdon, Okotoks, High river, Olds, Rocky View, Foothills

Experienced Residential Realtor serving Calgary and surrounding communities. I have knowledge in buy ...

Full Profile

 

Dabs Fashola Associate

Phone:
403-619-0621
Email:
homesbydabs@gmail.com
Support Area:
Calgary Southwest, Calgary Southeast, Calgary Northwest, Calgary Northeast, Okotoks, Chestermere:, Airdrie, Olds

Turning Real Estate Dreams into Reality | Your Trusted RealtorEvery real estate journey is ...

Full Profile