137 Heritage Bay, Cochrane

2025-10-14
 

Quick Summary

Location
137 Heritage Bay, Cochrane, Alberta T4C0L5
Price
$614,900 CAD
Status:
For Sale
Property Type:
Single Family
Area:
1378 sqft
Bedrooms:
3
Bathrooms:
4
Year of Construction:
2013

MLS®#A2263291

Property Description

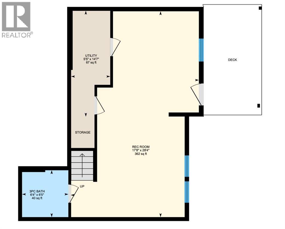
Outstanding home at an outstanding new price! Perched on a quiet cul-de-sac, this home offers sweeping west-facing views over rolling hills and the snow-capped Rocky Mountains. From the moment you arrive, there’s a sense of space, light, and comfort that makes this property stand out. Inside, the open-concept main floor is bright and welcoming. The living room features a striking floor-to-ceiling rock fireplace, creating a warm focal point for everyday living or entertaining. Large windows flood the space with natural light and frame stunning mountain and hill views. The dining area flows into a spacious kitchen with granite countertops, sleek stainless steel appliances, travertine tile, and plenty of cabinetry. A convenient powder room and access to the deck with glass railings allow you to take in the full, unobstructed view while enjoying privacy and outdoor living. Upstairs, the primary suite feels like a private retreat with vaulted ceilings, generous space for a king bed, and more west-facing views. A well-appointed ensuite and walk-in closet add comfort and convenience. Two great-sized additional bedrooms, a full bathroom, and a laundry room complete the upper level, making it an excellent layout for families or guests. The fully finished walk-out basement provides flexibility, featuring a large rec room, full bathroom, and potential for a separate living area with its own access and a parking area off the back lane. This space can be used for guests, hobbies, a home office, or additional living quarters. Throughout the home, thoughtful upgrades stand out, such as new vinyl flooring, fresh paint, tall baseboards, crown moulding around door frames, and abundant windows that keep every room light and bright. Outside, the walk-out level opens to a landscaped yard with extensive rockwork and level green space. A hot tub sits just steps away, and below is a lower garden area with mature shrubs where you can gaze up and admire your surroundings. Located in Heritage Hills, near a newly proposed grocery store and close to local schools, this property combines privacy and convenience with quick access to Highway 1A for easy mountain getaways. This is where comfort meets breathtaking views, creating the perfect place to call home. Experience the beauty and calm of Heritage Hills living. (id:32467)

Property Features

Ammenities Near By

  • Ammenities Near By: Park, Playground, Schools, Shopping

Building

  • Appliances: Refrigerator, Stove, Microwave Range Hood Combo, Washer & Dryer
  • Basement Development: Finished
  • Basement Features: Walk out
  • Basement Type: Full (Finished)
  • Construction Style: Detached
  • Cooling Type: None
  • Exterior Finish: Stone, Vinyl siding
  • Fireplace: Yes
  • Flooring Type: Tile, Vinyl
  • Interior Size: 1378 sqft
  • Building Type: House
  • Stories: 2

Features

  • Feature: Cul-de-sac, Back lane, Gas BBQ Hookup

Land

  • Land Size: 359 m2|0-4,050 sqft

Ownership

  • Type: Freehold

Structure

  • Structure: Deck

Zoning

  • Description: R-LD

Information entered by LPT Realty
Listing information last updated on: 2025-11-17 16:00:15


Book your free home evaluation with a 1% REALTOR® now!


How much could you save in commission selling with One Percent Realty?

Slide to select your home's price:

$500,000

Your One Percent Realty Commission savings

$500,000

Savings calculated using One Percent Realty's posted commission rates compared to another agent charging 7% on the first 100k & 3% on the balance + GST. Not all agents charge the same.

Send a Message


One Percent Realty's top FAQs

Q
What is the deal exactly, with One Percent Realty?

We are a fully licensed real estate company that offers full service but at a discount commission. In terms of services and exposure, we are identical to whoever you would like to compare us with. We are on MLS®, all the top internet real estates sites, we place a sign on your property ( if it's allowed ), we show the property, hold open houses, advertise it, handle all the negotiations, plus the conveyancing. There is nothing that you are not getting, except for a high commission!

Q
What do you charge?

We charge a total of $7,950 for residential properties under $400,000. For residential properties $400,000-$900,000 we charge $9,950. For residential properties over $900,000 we charge 1% of the sale price plus $950. Plus Applicable taxes, of course. We also offer the flexibility to offer more commission to the buyer's agent, if you want to. It is as simple as that! For commercial properties, farms, or development properties please contact a One Percent agent directly or fill out the market evaluation form on the bottom right of our website pages and a One Percent agent will get back to you to discuss the particulars.

Q
Are your listings on MLS® and realtor.ca?

Yes, and yes.


Learn more about the One Percent Realty Deal

 

April Isaac Associate

Phone:
403-888-4003
Email:
aprilonepercent@gmail.com
Support Area:
CALGARY, SOUTH EAST CALGARY, SOUTH WEST CALGARY, NORTH CALGARY, NORTH EAST CALGARY, NORTH WEST CALGARY, EAST CALGARY, WEST CALGARY, AIRDRIE, COCHRANE, OKOTOKS, CHESTERMERE, STRATHMORE, GREATER CALGARY AREA, ROCKYVIEW, DIDSBURY, LANGDON

22 YRS EXPER, 1300+ SALES, marketing savvy, people savvy. 100'S OF HAPPY CUSTOMERS, DOZENS UPON DOZ ...

Full Profile

 

Anna Madden Associate

Phone:
587-830-2405
Email:
anna.madden05@gmail.com
Support Area:
Calgary, Airdrie, Cochrane, chestermere, Langdon, Okotoks, High river, Olds, Rocky View, Foothills

Experienced Residential Realtor serving Calgary and surrounding communities. I have knowledge in buy ...

Full Profile

 

Ram Mallampati Associate

Phone:
403-803-6511
Email:
ramonepercent@gmail.com
Support Area:
Calgary, Airdrie, Cochrane, Reddeer

...

Full Profile