203, 6000 Somervale Court SW, CALGARY

2025-10-12
 

Quick Summary

Location
203, 6000 Somervale Court SW, CALGARY, Alberta T2Y4J4
Price
$269,000 CAD
Status:
For Sale
Property Type:
Single Family
Area:
817 sqft
Bedrooms:
2
Bathrooms:
2
Year of Construction:
2001

MLS®#A2263573

Property Description

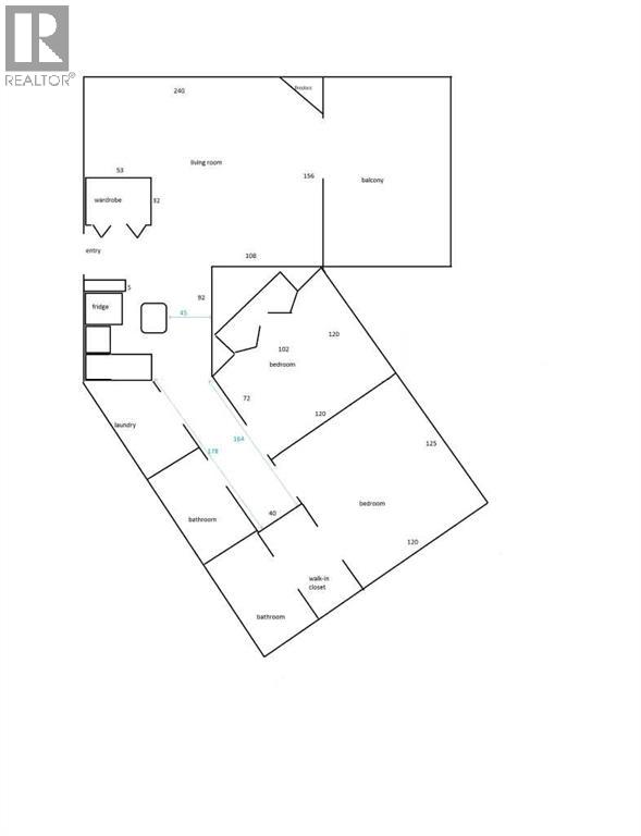
Welcome to Somerset Crossing! Situated on the second floor, this spacious condo has 2-bedroom, 2 full bathrooms, cozy gas fireplace, 1 heated underground parking, and private balcony with natural light. The primary bedroom is complemented by a four-piece bathroom, a second bedroom and full bathroom provide plenty of space for family, quests, or a home office, while in-suite laundry adds everyday convenience. All utilities are included in the condo fees, making this a truly hassle-free homeownership or investment opportunity. Amazing view from the windows as this apartment overlooks secure green space: great opportunities for visiting a show in the nearby Spruce Meadows, going for a walk in the Fish Creek Park. Perfectly located within walking distance to the Somerset LRT station, YMCA, Walmart and all the shops in Shawnessy. (id:32467)

Property Features

Ammenities Near By

  • Ammenities Near By: Park, Playground, Schools, Shopping

Building

  • Appliances: Washer, Refrigerator, Dishwasher, Stove, Dryer, Microwave Range Hood Combo, Window Coverings
  • Construction Style: Attached
  • Cooling Type: None
  • Exterior Finish: Vinyl siding
  • Fireplace: Yes
  • Flooring Type: Carpeted, Laminate, Linoleum
  • Interior Size: 817 sqft
  • Building Type: Apartment
  • Stories: 4

Features

  • Feature: Elevator, No Animal Home, No Smoking Home, Parking

Land

  • Land Size: Unknown

Maintenance Fee

  • Maintenance Fee: 660.00

Ownership

  • Type: Condominium/Strata

Zoning

  • Description: M-C2 d75

Information entered by Seller Direct Real Estate
Listing information last updated on: 2025-10-12 19:51:04


Book your free home evaluation with a 1% REALTOR® now!


How much could you save in commission selling with One Percent Realty?

Slide to select your home's price:

$500,000

Your One Percent Realty Commission savings

$500,000

Savings calculated using One Percent Realty's posted commission rates compared to another agent charging 7% on the first 100k & 3% on the balance + GST. Not all agents charge the same.

Send a Message


One Percent Realty's top FAQs

Q
What is the deal exactly, with One Percent Realty?

We are a fully licensed real estate company that offers full service but at a discount commission. In terms of services and exposure, we are identical to whoever you would like to compare us with. We are on MLS®, all the top internet real estates sites, we place a sign on your property ( if it's allowed ), we show the property, hold open houses, advertise it, handle all the negotiations, plus the conveyancing. There is nothing that you are not getting, except for a high commission!

Q
What do you charge?

We charge a total of $7,950 for residential properties under $400,000. For residential properties $400,000-$900,000 we charge $9,950. For residential properties over $900,000 we charge 1% of the sale price plus $950. Plus Applicable taxes, of course. We also offer the flexibility to offer more commission to the buyer's agent, if you want to. It is as simple as that! For commercial properties, farms, or development properties please contact a One Percent agent directly or fill out the market evaluation form on the bottom right of our website pages and a One Percent agent will get back to you to discuss the particulars.

Q
Are your listings on MLS® and realtor.ca?

Yes, and yes.


Learn more about the One Percent Realty Deal

 

April Isaac Associate

Phone:
403-888-4003
Email:
aprilonepercent@gmail.com
Support Area:
CALGARY, SOUTH EAST CALGARY, SOUTH WEST CALGARY, NORTH CALGARY, NORTH EAST CALGARY, NORTH WEST CALGARY, EAST CALGARY, WEST CALGARY, AIRDRIE, COCHRANE, OKOTOKS, CHESTERMERE, STRATHMORE, GREATER CALGARY AREA, ROCKYVIEW, DIDSBURY, LANGDON

22 YRS EXPER, 1300+ SALES, marketing savvy, people savvy. 100'S OF HAPPY CUSTOMERS, DOZENS UPON DOZ ...

Full Profile

 

Anna Madden Associate

Phone:
587-830-2405
Email:
anna.madden05@gmail.com
Support Area:
Calgary, Airdrie, Cochrane, chestermere, Langdon, Okotoks, High river, Olds, Rocky View, Foothills

Experienced Residential Realtor serving Calgary and surrounding communities. I have knowledge in buy ...

Full Profile

 

Dabs Fashola Associate

Phone:
403-619-0621
Email:
homesbydabs@gmail.com
Support Area:
Calgary Southwest, Calgary Southeast, Calgary Northwest, Calgary Northeast, Okotoks, Chestermere:, Airdrie, Olds

Turning Real Estate Dreams into Reality | Your Trusted RealtorEvery real estate journey is ...

Full Profile