80 Fireside Common, Cochrane

2025-09-23
 

Quick Summary

Location
80 Fireside Common, Cochrane, Alberta T4C3J1
Price
$679,900 CAD
Status:
For Sale
Property Type:
Single Family
Area:
2126 sqft
Bedrooms:
3
Bathrooms:
3
Year of Construction:
2025

MLS®#A2258837

Property Description

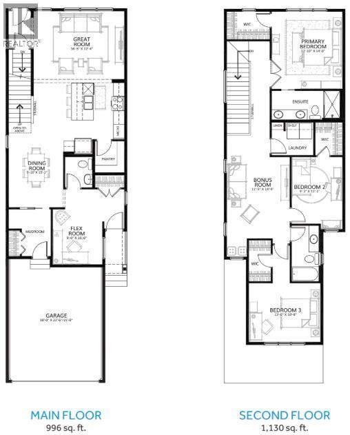
Welcome to 80 Fireside Common, a beautifully designed new build in the welcoming community of Fireside, Cochrane. Offering 2,126 sq. ft. of thoughtfully planned living space, this home combines modern comfort with small-town charm.The main floor features an open-concept design with 9’ ceilings, a spacious great room anchored by a modern fireplace, and a chef-inspired kitchen complete with quartz countertops, a Blanco Silgranit sink, a walk-in pantry, and gas rough-ins for both the range and BBQ. The dining area flows seamlessly into the living space, while a versatile flex room and a practical mudroom enhance everyday function.Upstairs, a bright bonus room provides a perfect gathering place. The primary suite is a private retreat with a large walk-in closet and an ensuite featuring dual sinks and a walk-in shower. Two additional bedrooms, each with their own walk-in closets, share a full bathroom, and the laundry room is conveniently located on this level.The lower level is built on a 9’ foundation and awaits your personal touch. Exterior details include a Craftsman-inspired elevation and a double attached garage offering plenty of parking and storage.Living in Fireside means enjoying tree-lined pathways, parks, playgrounds, and a true sense of community. Local schools, coffee shops, and everyday conveniences are just steps away, while downtown Cochrane is only minutes from your door. With the Rockies nearby and Calgary a short drive away, Fireside offers the best of both worlds: small-town connection with city access.This brand-new home in Fireside is the perfect choice for families and anyone looking to enjoy both comfort and community in a sought-after location. *Builder measurements and completion dates are approximate and subject to change. Area size was calculated by applying the RMS to the blueprints provided by the builder. (id:32467)

Property Features

Ammenities Near By

  • Ammenities Near By: Park, Playground, Schools, Shopping

Building

  • Appliances: Refrigerator, Dishwasher, Stove, Microwave, Hood Fan
  • Basement Development: Unfinished
  • Basement Type: Full (Unfinished)
  • Construction Style: Detached
  • Cooling Type: None
  • Exterior Finish: Vinyl siding
  • Fireplace: Yes
  • Flooring Type: Carpeted, Vinyl, Vinyl Plank
  • Interior Size: 2126 sqft
  • Building Type: House
  • Stories: 2

Features

  • Feature: Back lane, No Animal Home, No Smoking Home, Gas BBQ Hookup, Parking

Land

  • Land Size: 317.98 m2|0-4,050 sqft

Ownership

  • Type: Freehold

Structure

  • Structure: None

Zoning

  • Description: R-MX

Information entered by LPT Realty
Listing information last updated on: 2025-10-03 20:30:43


Book your free home evaluation with a 1% REALTOR® now!


How much could you save in commission selling with One Percent Realty?

Slide to select your home's price:

$500,000

Your One Percent Realty Commission savings

$500,000

Savings calculated using One Percent Realty's posted commission rates compared to another agent charging 7% on the first 100k & 3% on the balance + GST. Not all agents charge the same.

Send a Message


One Percent Realty's top FAQs

Q
What is the deal exactly, with One Percent Realty?

We are a fully licensed real estate company that offers full service but at a discount commission. In terms of services and exposure, we are identical to whoever you would like to compare us with. We are on MLS®, all the top internet real estates sites, we place a sign on your property ( if it's allowed ), we show the property, hold open houses, advertise it, handle all the negotiations, plus the conveyancing. There is nothing that you are not getting, except for a high commission!

Q
What do you charge?

We charge a total of $7,950 for residential properties under $400,000. For residential properties $400,000-$900,000 we charge $9,950. For residential properties over $900,000 we charge 1% of the sale price plus $950. Plus Applicable taxes, of course. We also offer the flexibility to offer more commission to the buyer's agent, if you want to. It is as simple as that! For commercial properties, farms, or development properties please contact a One Percent agent directly or fill out the market evaluation form on the bottom right of our website pages and a One Percent agent will get back to you to discuss the particulars.

Q
Are your listings on MLS® and realtor.ca?

Yes, and yes.


Learn more about the One Percent Realty Deal

 

April Isaac Associate

Phone:
403-888-4003
Email:
aprilonepercent@gmail.com
Support Area:
CALGARY, SOUTH EAST CALGARY, SOUTH WEST CALGARY, NORTH CALGARY, NORTH EAST CALGARY, NORTH WEST CALGARY, EAST CALGARY, WEST CALGARY, AIRDRIE, COCHRANE, OKOTOKS, CHESTERMERE, STRATHMORE, GREATER CALGARY AREA, ROCKYVIEW, DIDSBURY, LANGDON

22 YRS EXPER, 1300+ SALES, marketing savvy, people savvy. 100'S OF HAPPY CUSTOMERS, DOZENS UPON DOZ ...

Full Profile

 

Anna Madden Associate

Phone:
587-830-2405
Email:
anna.madden05@gmail.com
Support Area:
Calgary, Airdrie, Cochrane, chestermere, Langdon, Okotoks, High river, Olds, Rocky View, Foothills

Experienced Residential Realtor serving Calgary and surrounding communities. I have knowledge in buy ...

Full Profile

 

Ram Mallampati Associate

Phone:
403-803-6511
Email:
ramonepercent@gmail.com
Support Area:
Calgary, Airdrie, Cochrane, Reddeer

...

Full Profile