100 Lakeview Cove, Chestermere

2025-09-06
 

Quick Summary

Location
100 Lakeview Cove, Chestermere, Alberta T1X1E7
Price
$650,000 CAD
Status:
For Sale
Property Type:
Single Family
Area:
2085 sqft
Bedrooms:
3 bed +1
Bathrooms:
4
Year of Construction:
1998
Video Link:
Open House:
29/11/2025 12:00:00 PM to
29/11/2025 03:00:00 PM

MLS®#A2252642

Property Description

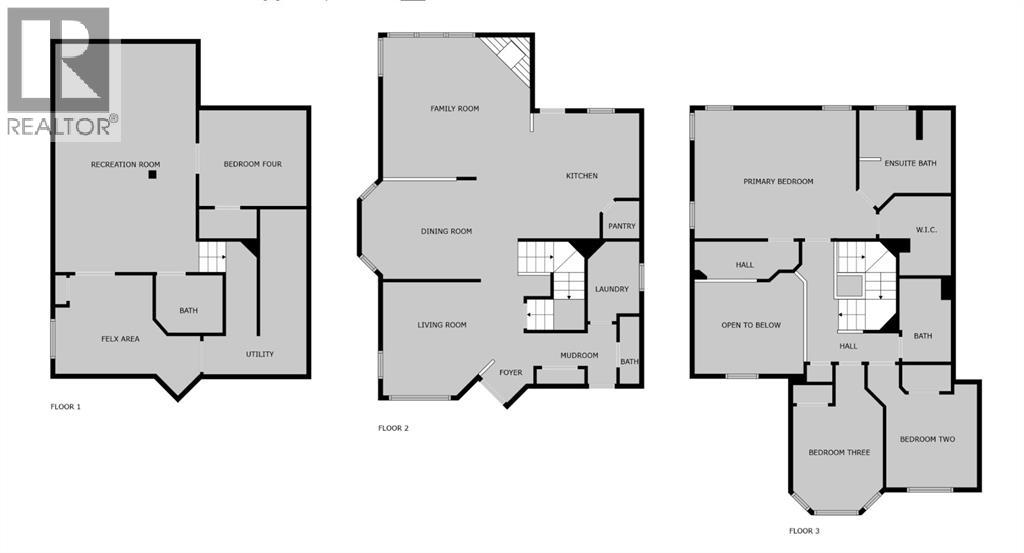
***OPEN HOUSE ON SATURDAY, NOVEMBER 29, 12:00-3:00 PM*** Welcome to this beautifully maintained and spacious family home located in one of Chestermere’s most sought-after, peaceful communities—just steps from the Chestermere Golf Club and a short 5-minute drive to the lake and beach. This 4-bedroom plus office, 3.5-bathroom home offers just under 3,000 square feet of finished living space, combining comfort, function, and tranquility. The open-concept main floor is perfect for entertaining, with a chef’s kitchen featuring stainless steel appliances, a gas stove, and a newer Bosch dishwasher. The inviting family room flows seamlessly into the dining area, while a formal front living room boasts soaring 17’ ceilings and expansive windows that flood the space with natural light. Upstairs, the massive primary suite is a true retreat, with room for a king-sized bed, a luxurious 5-piece ensuite complete with dual sinks, a jetted soaker tub, walk-in closet, and access to a private reading loft. Downstairs, the fully finished basement includes a humongous rec room—perfect for a home theatre, games room, or gym— an office, a fourth bedroom, and a 3 piece bath along with tons of storage. Outside, the backyard is a private paradise featuring a stone patio, gazebo-covered deck, lush perennial flower garden with trees for shade, and plenty of room for a firepit, pool, or hammocks. The covered front porch adds charm and curb appeal, while the heated and insulated double garage with a newer door adds convenience and functionality. Recent updates include a durable rubber roof with lifetime warranty, high-efficiency furnace, newer luxury vinyl plank flooring, and ceiling fans throughout. Hardwood and tile flooring add timeless elegance, and large windows provide beautiful natural light all day. Set on a quiet and peaceful street in a caring, established neighbourhood close to schools, shopping, parks, and outdoor recreation, this home truly offers the best of Chestermere living. Don ’t miss your opportunity to own this rare gem—book your private showing today! (id:32467)

Property Features

Ammenities Near By

  • Ammenities Near By: Golf Course, Park, Playground, Schools, Shopping, Water Nearby

Building

  • Appliances: Washer, Refrigerator, Gas stove(s), Dishwasher, Dryer, Microwave, Hood Fan, Window Coverings, Garage door opener
  • Basement Development: Finished
  • Basement Type: Full (Finished)
  • Construction Style: Detached
  • Cooling Type: None
  • Exterior Finish: Stone, Vinyl siding
  • Fireplace: Yes
  • Flooring Type: Carpeted, Hardwood, Tile, Vinyl Plank
  • Interior Size: 2085 sqft
  • Building Type: House
  • Stories: 2

Features

  • Feature: Level, Gazebo

Land

  • Land Size: 5293 sqft|4,051 - 7,250 sqft

Ownership

  • Type: Freehold

Structure

  • Structure: Shed, Deck

Zoning

  • Description: R-1

Information entered by eXp Realty
Listing information last updated on: 2025-11-25 02:31:41


Book your free home evaluation with a 1% REALTOR® now!


How much could you save in commission selling with One Percent Realty?

Slide to select your home's price:

$500,000

Your One Percent Realty Commission savings

$500,000

Savings calculated using One Percent Realty's posted commission rates compared to another agent charging 7% on the first 100k & 3% on the balance + GST. Not all agents charge the same.

Send a Message


One Percent Realty's top FAQs

Q
What is the deal exactly, with One Percent Realty?

We are a fully licensed real estate company that offers full service but at a discount commission. In terms of services and exposure, we are identical to whoever you would like to compare us with. We are on MLS®, all the top internet real estates sites, we place a sign on your property ( if it's allowed ), we show the property, hold open houses, advertise it, handle all the negotiations, plus the conveyancing. There is nothing that you are not getting, except for a high commission!

Q
What do you charge?

We charge a total of $7,950 for residential properties under $400,000. For residential properties $400,000-$900,000 we charge $9,950. For residential properties over $900,000 we charge 1% of the sale price plus $950. Plus Applicable taxes, of course. We also offer the flexibility to offer more commission to the buyer's agent, if you want to. It is as simple as that! For commercial properties, farms, or development properties please contact a One Percent agent directly or fill out the market evaluation form on the bottom right of our website pages and a One Percent agent will get back to you to discuss the particulars.

Q
Are your listings on MLS® and realtor.ca?

Yes, and yes.


Learn more about the One Percent Realty Deal

 

April Isaac Associate

Phone:
403-888-4003
Email:
aprilonepercent@gmail.com
Support Area:
CALGARY, SOUTH EAST CALGARY, SOUTH WEST CALGARY, NORTH CALGARY, NORTH EAST CALGARY, NORTH WEST CALGARY, EAST CALGARY, WEST CALGARY, AIRDRIE, COCHRANE, OKOTOKS, CHESTERMERE, STRATHMORE, GREATER CALGARY AREA, ROCKYVIEW, DIDSBURY, LANGDON

22 YRS EXPER, 1300+ SALES, marketing savvy, people savvy. 100'S OF HAPPY CUSTOMERS, DOZENS UPON DOZ ...

Full Profile

 

Anna Madden Associate

Phone:
587-830-2405
Email:
anna.madden05@gmail.com
Support Area:
Calgary, Airdrie, Cochrane, chestermere, Langdon, Okotoks, High river, Olds, Rocky View, Foothills

Experienced Residential Realtor serving Calgary and surrounding communities. I have knowledge in buy ...

Full Profile

 

Dabs Fashola Associate

Phone:
403-619-0621
Email:
homesbydabs@gmail.com
Support Area:
Calgary Southwest, Calgary Southeast, Calgary Northwest, Calgary Northeast, Okotoks, Chestermere:, Airdrie, Olds

Your Trusted and Experienced Realtor | Turning Real Estate Dreams Into Reality!Every real ...

Full Profile