108 Hidden Creek Rise NW, CALGARY

2025-09-05
 

Quick Summary

Location
108 Hidden Creek Rise NW, CALGARY, Alberta T3A6L5
Price
$439,900 CAD
Status:
For Sale
Property Type:
Single Family
Area:
1399 sqft
Bedrooms:
3
Bathrooms:
3
Year of Construction:
2002
Video Link:

MLS®#A2254321

Property Description

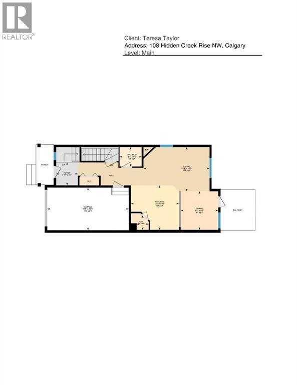
South-facing walkout with sweeping views and fresh updates!Welcome to 108 Hidden Creek Rise NW, a bright and inviting 3-bedroom semi-detached home in a quiet, professionally managed complex. Freshly painted and completely carpet-free, this home offers modern updates, low-maintenance living, and an attached garage for everyday convenience.The main floor features a stylish open layout with brand-new stainless steel appliances, granite counters, a new backsplash, and an electric fireplace to anchor the living space. Large south-facing windows flood the interior with natural light, while the balcony extends your living area with open views.Upstairs, the primary suite includes a walk-in closet and private ensuite. A generous flex space with built-in desk is ideal for working from home or managing your day-to-day, with two additional bedrooms and a full bath completing the level.The walkout basement is a rare find—bright, spacious, and ready to be finished into a home gym, rec room, or guest space, giving you the chance to add both space and value.Low condo fees cover lawn care and snow removal, so you can enjoy more free time. With quick access to schools, transit, shopping, parks, pathways, and Stoney Trail, this home delivers both convenience and connection to the outdoors.*Property has been virtually staged. (id:32467)

Property Features

Ammenities Near By

  • Ammenities Near By: Park, Schools, Shopping

Building

  • Appliances: Washer, Refrigerator, Range - Electric, Dishwasher, Dryer, Window Coverings, Garage door opener
  • Basement Development: Unfinished
  • Basement Features: Walk out
  • Basement Type: Full (Unfinished)
  • Construction Style: Semi-detached
  • Cooling Type: None
  • Exterior Finish: Stone, Vinyl siding
  • Fireplace: Yes
  • Flooring Type: Ceramic Tile, Laminate, Linoleum
  • Interior Size: 1399 sqft
  • Building Type: Duplex
  • Stories: 2

Features

  • Feature: No Smoking Home, Parking

Land

  • Land Size: 184.21 m2|0-4,050 sqft

Maintenance Fee

  • Maintenance Fee: 400.19

Ownership

  • Type: Bare Land Condo

Structure

  • Structure: Deck

Zoning

  • Description: M-C1 d75

Information entered by Royal LePage Benchmark
Listing information last updated on: 2025-10-05 04:35:54


Book your free home evaluation with a 1% REALTOR® now!


How much could you save in commission selling with One Percent Realty?

Slide to select your home's price:

$500,000

Your One Percent Realty Commission savings

$500,000

Savings calculated using One Percent Realty's posted commission rates compared to another agent charging 7% on the first 100k & 3% on the balance + GST. Not all agents charge the same.

Send a Message


One Percent Realty's top FAQs

Q
What is the deal exactly, with One Percent Realty?

We are a fully licensed real estate company that offers full service but at a discount commission. In terms of services and exposure, we are identical to whoever you would like to compare us with. We are on MLS®, all the top internet real estates sites, we place a sign on your property ( if it's allowed ), we show the property, hold open houses, advertise it, handle all the negotiations, plus the conveyancing. There is nothing that you are not getting, except for a high commission!

Q
What do you charge?

We charge a total of $7,950 for residential properties under $400,000. For residential properties $400,000-$900,000 we charge $9,950. For residential properties over $900,000 we charge 1% of the sale price plus $950. Plus Applicable taxes, of course. We also offer the flexibility to offer more commission to the buyer's agent, if you want to. It is as simple as that! For commercial properties, farms, or development properties please contact a One Percent agent directly or fill out the market evaluation form on the bottom right of our website pages and a One Percent agent will get back to you to discuss the particulars.

Q
Are your listings on MLS® and realtor.ca?

Yes, and yes.


Learn more about the One Percent Realty Deal

 

April Isaac Associate

Phone:
403-888-4003
Email:
aprilonepercent@gmail.com
Support Area:
CALGARY, SOUTH EAST CALGARY, SOUTH WEST CALGARY, NORTH CALGARY, NORTH EAST CALGARY, NORTH WEST CALGARY, EAST CALGARY, WEST CALGARY, AIRDRIE, COCHRANE, OKOTOKS, CHESTERMERE, STRATHMORE, GREATER CALGARY AREA, ROCKYVIEW, DIDSBURY, LANGDON

22 YRS EXPER, 1300+ SALES, marketing savvy, people savvy. 100'S OF HAPPY CUSTOMERS, DOZENS UPON DOZ ...

Full Profile

 

Anna Madden Associate

Phone:
587-830-2405
Email:
anna.madden05@gmail.com
Support Area:
Calgary, Airdrie, Cochrane, chestermere, Langdon, Okotoks, High river, Olds, Rocky View, Foothills

Experienced Residential Realtor serving Calgary and surrounding communities. I have knowledge in buy ...

Full Profile

 

Dabs Fashola Associate

Phone:
403-619-0621
Email:
homesbydabs@gmail.com
Support Area:
Calgary Southwest, Calgary Southeast, Calgary Northwest, Calgary Northeast, Okotoks, Chestermere:, Airdrie, Olds

Turning Real Estate Dreams into Reality | Your Trusted RealtorEvery real estate journey is ...

Full Profile