1187 Lanark Boulevard SE, Airdrie

2025-06-09
 

Quick Summary

Location
1187 Lanark Boulevard SE, Airdrie, Alberta T4A3P9
Price
$484,900 CAD
Status:
For Sale
Property Type:
Single Family
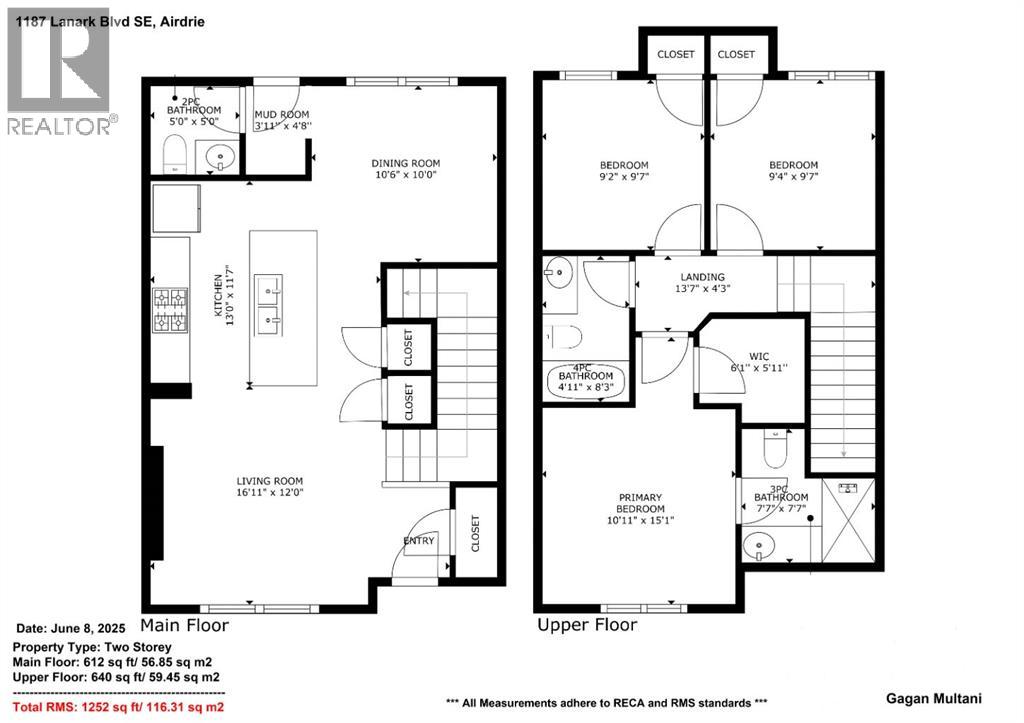
Area:
1252 sqft
Bedrooms:
3
Bathrooms:
3
Year of Construction:
2023

MLS®#A2229190

Property Description

BEAUTIFUL 3 BEDROOM TOWNHOME IN LANARK SE | NO CONDO FEES | DOUBLE CAR GARAGE | FRONTING COMMUNITY GARDENWelcome to this stunning and functional 3 bedroom, 2.5 bathroom townhome located in the community of Lanark SE, Airdrie. This home offers exceptional value with no condo fees and a Double Detached Garage, perfect for growing families or first-time buyers.The main floor features luxury vinyl plank flooring throughout and a spacious living room filled with natural light from the large front window. The modern kitchen is equipped with stylish dual-tone cabinetry, quartz countertops, a pantry, and ample prep space. The adjoining dining room is spacious, convenient powder room, and mudroom with access to the rear deck complete this level.Upstairs, you’ll find a well-laid-out upper level with a primary bedroom that includes a walk-in closet and a private 3-piece ensuite with standing shower. Two additional generously sized bedrooms share access to a full 4-piece bathroom, offering comfort and space for the whole family.The unfinished basement provides a laundry area and is ready for your personal touch. perfect for future development or extra storage. Outside, enjoy a low-maintenance backyard with a deck, chain-link fence, and the rare bonus of facing a beautiful community garden. (id:32467)

Property Features

Ammenities Near By

  • Ammenities Near By: Park, Playground, Schools, Shopping

Building

  • Amenities: Other
  • Appliances: Refrigerator, Range - Electric, Dishwasher, Microwave Range Hood Combo, Window Coverings, Washer & Dryer
  • Basement Development: Unfinished
  • Basement Type: Full (Unfinished)
  • Construction Style: Attached
  • Cooling Type: None
  • Exterior Finish: Vinyl siding
  • Fireplace: No
  • Flooring Type: Carpeted, Vinyl
  • Interior Size: 1252 sqft
  • Building Type: Row / Townhouse
  • Stories: 2

Features

  • Feature: Other, Back lane, No Animal Home, No Smoking Home

Land

  • Land Size: 2163.55 sqft|0-4,050 sqft

Ownership

  • Type: Freehold

Structure

  • Structure: Deck

Zoning

  • Description: R2-T

Information entered by RE/MAX Real Estate (Mountain View)
Listing information last updated on: 2025-10-19 19:19:23


Book your free home evaluation with a 1% REALTOR® now!


How much could you save in commission selling with One Percent Realty?

Slide to select your home's price:

$500,000

Your One Percent Realty Commission savings

$500,000

Savings calculated using One Percent Realty's posted commission rates compared to another agent charging 7% on the first 100k & 3% on the balance + GST. Not all agents charge the same.

Send a Message


One Percent Realty's top FAQs

Q
What is the deal exactly, with One Percent Realty?

We are a fully licensed real estate company that offers full service but at a discount commission. In terms of services and exposure, we are identical to whoever you would like to compare us with. We are on MLS®, all the top internet real estates sites, we place a sign on your property ( if it's allowed ), we show the property, hold open houses, advertise it, handle all the negotiations, plus the conveyancing. There is nothing that you are not getting, except for a high commission!

Q
What do you charge?

We charge a total of $7,950 for residential properties under $400,000. For residential properties $400,000-$900,000 we charge $9,950. For residential properties over $900,000 we charge 1% of the sale price plus $950. Plus Applicable taxes, of course. We also offer the flexibility to offer more commission to the buyer's agent, if you want to. It is as simple as that! For commercial properties, farms, or development properties please contact a One Percent agent directly or fill out the market evaluation form on the bottom right of our website pages and a One Percent agent will get back to you to discuss the particulars.

Q
Are your listings on MLS® and realtor.ca?

Yes, and yes.


Learn more about the One Percent Realty Deal

 

April Isaac Associate

Phone:
403-888-4003
Email:
aprilonepercent@gmail.com
Support Area:
CALGARY, SOUTH EAST CALGARY, SOUTH WEST CALGARY, NORTH CALGARY, NORTH EAST CALGARY, NORTH WEST CALGARY, EAST CALGARY, WEST CALGARY, AIRDRIE, COCHRANE, OKOTOKS, CHESTERMERE, STRATHMORE, GREATER CALGARY AREA, ROCKYVIEW, DIDSBURY, LANGDON

22 YRS EXPER, 1300+ SALES, marketing savvy, people savvy. 100'S OF HAPPY CUSTOMERS, DOZENS UPON DOZ ...

Full Profile

 

Anna Madden Associate

Phone:
587-830-2405
Email:
anna.madden05@gmail.com
Support Area:
Calgary, Airdrie, Cochrane, chestermere, Langdon, Okotoks, High river, Olds, Rocky View, Foothills

Experienced Residential Realtor serving Calgary and surrounding communities. I have knowledge in buy ...

Full Profile

 

Dabs Fashola Associate

Phone:
403-619-0621
Email:
homesbydabs@gmail.com
Support Area:
Calgary Southwest, Calgary Southeast, Calgary Northwest, Calgary Northeast, Okotoks, Chestermere:, Airdrie, Olds

Turning Real Estate Dreams into Reality | Your Trusted RealtorEvery real estate journey is ...

Full Profile