102, 151 4 Street NE, CALGARY

2024-12-19
 

Quick Summary

Location
102, 151 4 Street NE, CALGARY, Alberta T2E8K3
Price
$710,000 CAD
Status:
For Sale
Property Type:
Retail
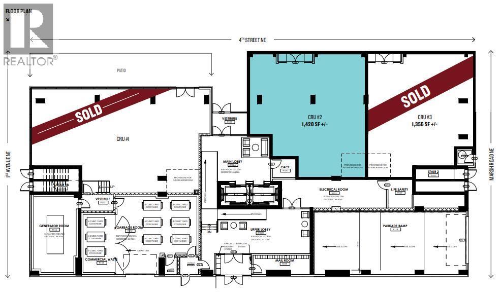
Area:
1420 sqft
Year of Construction:
2023
Brochure Link:
Video Link:

MLS®#A2184019

Property Description

Click brochure link for more information** Situated on the border of the highly desirable communities of Crescent Heights and Bridgeland, positioned at the base of a completely sold-out 220-unit residential condominium project. The opportunity presents phenomenal main floor presence to 4th Street NE with high-profile end caps maximizing light and exposure, fronting 1st Avenue NE and Marsh Road NE respectively. Immediately adjacent to a well-established commercial and residential node of medium to high-density residential, award-winning restaurants, and popular retail services. (id:32467)

Property Features

Building

  • Fireplace: No
  • Interior Size: 1420 sqft
  • Building Type: Retail

Land

  • Land Size: Unknown

Zoning

  • Description: DIRECT CONTROL 9D2015 FOLLOWING COMMERCIAL

Information entered by Honestdoor Inc.
Listing information last updated on: 2025-10-17 21:10:57


Book your free home evaluation with a 1% REALTOR® now!


How much could you save in commission selling with One Percent Realty?

Slide to select your home's price:

$500,000

Your One Percent Realty Commission savings

$500,000

Savings calculated using One Percent Realty's posted commission rates compared to another agent charging 7% on the first 100k & 3% on the balance + GST. Not all agents charge the same.

Send a Message


One Percent Realty's top FAQs

Q
What is the deal exactly, with One Percent Realty?

We are a fully licensed real estate company that offers full service but at a discount commission. In terms of services and exposure, we are identical to whoever you would like to compare us with. We are on MLS®, all the top internet real estates sites, we place a sign on your property ( if it's allowed ), we show the property, hold open houses, advertise it, handle all the negotiations, plus the conveyancing. There is nothing that you are not getting, except for a high commission!

Q
What do you charge?

We charge a total of $7,950 for residential properties under $400,000. For residential properties $400,000-$900,000 we charge $9,950. For residential properties over $900,000 we charge 1% of the sale price plus $950. Plus Applicable taxes, of course. We also offer the flexibility to offer more commission to the buyer's agent, if you want to. It is as simple as that! For commercial properties, farms, or development properties please contact a One Percent agent directly or fill out the market evaluation form on the bottom right of our website pages and a One Percent agent will get back to you to discuss the particulars.

Q
Are your listings on MLS® and realtor.ca?

Yes, and yes.


Learn more about the One Percent Realty Deal

 

April Isaac Associate

Phone:
403-888-4003
Email:
aprilonepercent@gmail.com
Support Area:
CALGARY, SOUTH EAST CALGARY, SOUTH WEST CALGARY, NORTH CALGARY, NORTH EAST CALGARY, NORTH WEST CALGARY, EAST CALGARY, WEST CALGARY, AIRDRIE, COCHRANE, OKOTOKS, CHESTERMERE, STRATHMORE, GREATER CALGARY AREA, ROCKYVIEW, DIDSBURY, LANGDON

22 YRS EXPER, 1300+ SALES, marketing savvy, people savvy. 100'S OF HAPPY CUSTOMERS, DOZENS UPON DOZ ...

Full Profile

 

Anna Madden Associate

Phone:
587-830-2405
Email:
anna.madden05@gmail.com
Support Area:
Calgary, Airdrie, Cochrane, chestermere, Langdon, Okotoks, High river, Olds, Rocky View, Foothills

Experienced Residential Realtor serving Calgary and surrounding communities. I have knowledge in buy ...

Full Profile

 

Dabs Fashola Associate

Phone:
403-619-0621
Email:
homesbydabs@gmail.com
Support Area:
Calgary Southwest, Calgary Southeast, Calgary Northwest, Calgary Northeast, Okotoks, Chestermere:, Airdrie, Olds

Turning Real Estate Dreams into Reality | Your Trusted RealtorEvery real estate journey is ...

Full Profile