6313 CARTMELL RD SW, Edmonton

2026-04-18
 

Quick Summary

Location
6313 CARTMELL RD SW, Edmonton, Alberta T6W3H3
Price
$494,900 CAD
Status:
For Sale
Property Type:
Single Family
Area:
1496 sqft
Bedrooms:
4
Bathrooms:
4
Garages:
3
Year of Construction:
2019
Video Link:

MLS®#E4482988

Property Description

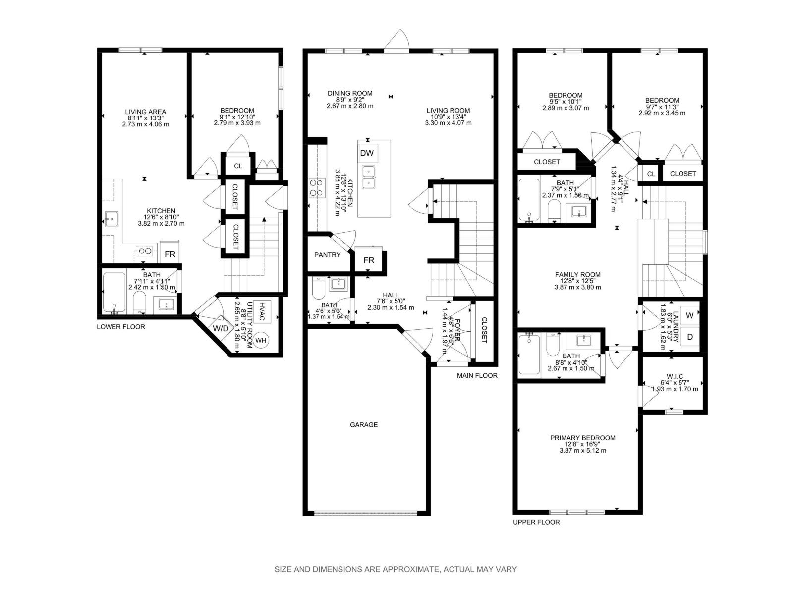
Awesome 4 bedroom 1507 sq ft half duplex in Chappelle! This amazing half duplex features a SEPARATE SIDE ENTRANCE leading to a fully developed basement with 1 bedroom, kitchen setup, and laundry. Excellent space for extended family or multi-generational living. Main floor has a spacious foyer that leads you into the open concept living room and kitchen with a good size pantry and dining area that opens to a private yard with deck. This home is perfect for entertaining! The modern kitchen features stainless steel appliances, quartz countertops, ample modern cabinets, and a well-appointed 2-piece bath completes this level. The upper level includes a nice bonus room and laundry room. The primary bedroom has a 4-piece ensuite and walk-in closet. Two additional bedrooms with large closets and a 4-piece bathroom complete this level. Located close to shopping, golf, walking trails, schools, and public transit. Chappelle is a well sought-after community only 15 minutes to Edmonton International Airport (id:32467)

Property Features

Ammenities Near By

  • Ammenities Near By: Airport, Golf Course, Playground, Public Transit, Schools, Shopping

Building

  • Appliances: Dishwasher, Garage door opener remote(s), Garage door opener, Microwave Range Hood Combo, Stove, Dryer, Two Refrigerators, Two Washers
  • Basement Development: Finished
  • Basement Type: Full (Finished)
  • Construction Style: Semi-detached
  • Fireplace: No
  • Interior Size: 1496 sqft
  • Building Type: Duplex
  • Stories: 2

Land

  • Land Size: 245.84 m2

Ownership

  • Type: Freehold

Structure

  • Structure: Deck

Information entered by Royal LePage Noralta Real Estate
Listing information last updated on: 2026-05-04 06:11:58


Book your free home evaluation with a 1% REALTOR® now!


How much could you save in commission selling with One Percent Realty?

Slide to select your home's price:

$500,000

Your One Percent Realty Commission savings

$500,000

Savings calculated using One Percent Realty's posted commission rates compared to another agent charging 7% on the first 100k & 3% on the balance + GST. Not all agents charge the same.

Send a Message


One Percent Realty's top FAQs

Q
What is the deal exactly, with One Percent Realty?

We are a fully licensed real estate company that offers full service but at a discount commission. In terms of services and exposure, we are identical to whoever you would like to compare us with. We are on MLS®, all the top internet real estates sites, we place a sign on your property ( if it's allowed ), we show the property, hold open houses, advertise it, handle all the negotiations, plus the conveyancing. There is nothing that you are not getting, except for a high commission!

Q
What do you charge?

We charge a total of $7,950 for residential properties under $400,000. For residential properties $400,000-$900,000 we charge $9,950. For residential properties over $900,000 we charge 1% of the sale price plus $950. Plus Applicable taxes, of course. We also offer the flexibility to offer more commission to the buyer's agent, if you want to. It is as simple as that! For commercial properties, farms, or development properties please contact a One Percent agent directly or fill out the market evaluation form on the bottom right of our website pages and a One Percent agent will get back to you to discuss the particulars.

Q
Are your listings on MLS® and realtor.ca?

Yes, and yes.


Learn more about the One Percent Realty Deal

 

Christine Tetreault Broker / Owner / REALTOR®

Phone:
(780) 268-4888
Email:
christine.onepercent@gmail.com
Support Area:
Windermere, Glenora, Belgravia, Griesbach, Bonnie Doon, Strathcona, Westmount, Summerside, Crestwood, Laurier Heights, Parkview, Magrath Heights, Highlands, Terwillegar Towne, Sherwood Park, West Edmonton, Spruce Grove, St. Albert, Jasper Place, Balwin, Stony Plain, Edmonton

REAL ESTATE NEGOTIATION EXPERT (RENE) SENIORS REAL ESTATE SPECIALIST (SRES) CERTIFIED REAL ESTATE ...

Full Profile

 

Bhavya Soni Associate

Phone:
7807070479
Email:
Opendreamdoorswithbhavya@gmail.com
Support Area:
Edmonton, Beaumont, Fort Saskatchewan, Spruce Grove, Stony Plain, Sherwood Park, St Albert, Millet, Wetaskiwin, Calmar, Devon, Morinville, Westlock County, Red Deer, Rimbey, Athabasca, Leduc, Falun, Ponoka, Lacombe, Camrose, Thorby, Drayton Valley

Bhavya Soni is one of the top performing full-time agents of One Percent Realty. Her name has been p ...

Full Profile

 

Monika Lukavicius Associate

Phone:
7808853882
Email:
monikalukavicius1percent@gmail.com
Support Area:
Edmonton, St. Albert, Morinville

Hi I'm Monika and truly believe in value that 1% has to offer. My background is in construction and ...

Full Profile