Status: Not an active listing on One Percent Realty

1018 Fieldstone VW

2026-04-09
Sherwood Park

MLS®#E4481401

Property Description

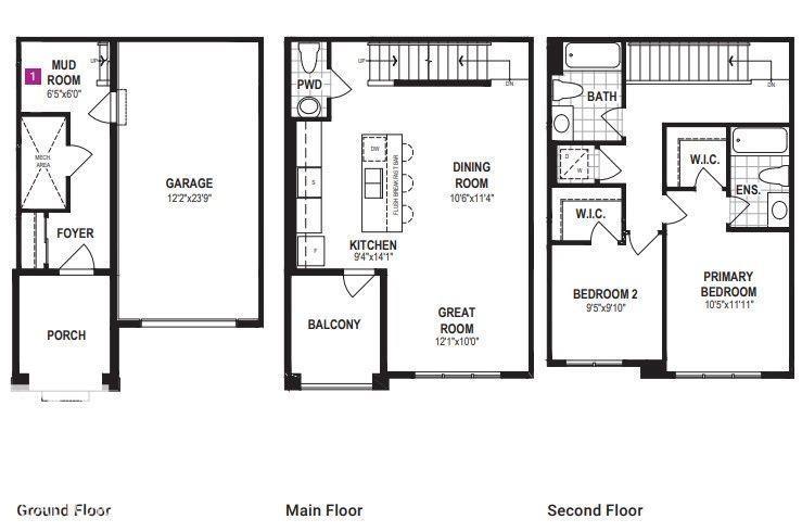
Visit the Listing Brokerage (and/or listing REALTOR®) website to obtain additional information. Welcome to this modern freehold townhome with NO condo fees, offering stylish low-maintenance living. Featuring a single attached garage, this home blends functionality with contemporary appeal. The open-concept main floor is ideal for everyday living and entertaining. The kitchen has ample cabinet space, quartz counters and a kitchen island. From the living room you can step outside to your own private balcony to unwind. Upstairs are two good-sized bedrooms, 2 washrooms and upper-level laundry. This is an excellent opportunity for first-time home buyers. This home is close to pathways around the pond and walking distance to Helen Lavender park and will be ready to move in, in May! *Renderings are representative - exterior colours may vary. (id:32467)

Information entered by HonestDoor Inc
Listing information last updated on: 2026-04-10 18:12:35

Send a Message