25 Westheights Drive, Didsbury

2026-04-07
 

Quick Summary

Location
25 Westheights Drive, Didsbury, Alberta T0M0W0
Price
$534,900 CAD
Status:
For Sale
Property Type:
Single Family
Area:
1661 sqft
Bedrooms:
3 bed +3
Bathrooms:
2
Garages:
8
Year of Construction:
1981

MLS®#A2297563

Property Description

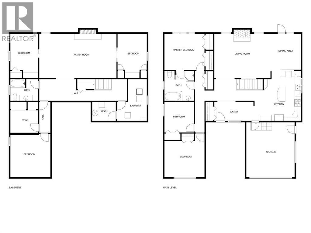
Welcome to your dream family home, perfectly situated on an oversized lot with abundant parking—including a large concrete RV pad. The private backyard is a true retreat, featuring a charming playhouse tucked into the corner and backing directly onto a spacious park with a playground—perfect for families. Offering over 3,200 sq. ft. of developed living space, this warm and inviting 6-bedroom home blends comfort, functionality, and timeless charm. Your experience begins in the beautiful front courtyard and continues into a spacious, welcoming entryway. The sunken living room is filled with character, showcasing a classic wood-burning fireplace with log lighter and a solar tube that fills the space with natural light. Hardwood and Artica tile flooring, along with plush carpeting (updated just three years ago), add both style and comfort throughout. The heart of the home is the well-appointed kitchen, complete with solid pine cabinetry, a large island, gas stove, and a second oven—ideal for cooking and entertaining. The main level also features three generously sized bedrooms and a full family bathroom with a jetted tub and separate shower. Downstairs, the expansive family room offers a cozy second fireplace (gas), creating the perfect gathering space. Two of the three lower-level bedrooms include double pocket doors and built-in desks—great for students or home offices. You’ll also appreciate the oversized laundry room with space for an additional fridge and freezer, along with a newer, high-efficiency boiler in the utility room. Step outside through the dining room garden doors to a large rear deck with pergola, overlooking the backyard and the park beyond—an ideal setting for relaxing or entertaining. Located in the welcoming community of Didsbury, this home offers small-town charm with easy access to schools, parks, and local amenities. Plus, the Didsbury Golf Club is just across the street, adding to the appeal of this fantastic location. Don’t miss your opportuni ty to call this exceptional property home—schedule your showing today and start imagining the lifestyle that awaits! (id:32467)

Property Features

Ammenities Near By

  • Ammenities Near By: Golf Course, Park, Playground, Recreation Nearby, Schools

Building

  • Appliances: See remarks
  • Architectural Style: Bungalow
  • Basement Development: Finished
  • Basement Type: Full (Finished)
  • Construction Style: Detached
  • Cooling Type: None
  • Exterior Finish: Brick
  • Fireplace: Yes
  • Flooring Type: Carpeted, Cork, Hardwood, Linoleum, Other, Tile
  • Interior Size: 1661 sqft
  • Building Type: House
  • Stories: 1

Features

  • Feature: Wood windows, No Animal Home, No Smoking Home, Level

Land

  • Land Size: 7150 sqft|4,051 - 7,250 sqft

Ownership

  • Type: Freehold

Structure

  • Structure: Shed, See Remarks, Deck

Zoning

  • Description: R-1

Information entered by RE/MAX Rocky View Real Estate
Listing information last updated on: 2026-04-18 04:18:09


Book your free home evaluation with a 1% REALTOR® now!


How much could you save in commission selling with One Percent Realty?

Slide to select your home's price:

$500,000

Your One Percent Realty Commission savings

$500,000

Savings calculated using One Percent Realty's posted commission rates compared to another agent charging 7% on the first 100k & 3% on the balance + GST. Not all agents charge the same.

Send a Message


One Percent Realty's top FAQs

Q
What is the deal exactly, with One Percent Realty?

We are a fully licensed real estate company that offers full service but at a discount commission. In terms of services and exposure, we are identical to whoever you would like to compare us with. We are on MLS®, all the top internet real estates sites, we place a sign on your property ( if it's allowed ), we show the property, hold open houses, advertise it, handle all the negotiations, plus the conveyancing. There is nothing that you are not getting, except for a high commission!

Q
What do you charge?

We charge a total of $7,950 for residential properties under $400,000. For residential properties $400,000-$900,000 we charge $9,950. For residential properties over $900,000 we charge 1% of the sale price plus $950. Plus Applicable taxes, of course. We also offer the flexibility to offer more commission to the buyer's agent, if you want to. It is as simple as that! For commercial properties, farms, or development properties please contact a One Percent agent directly or fill out the market evaluation form on the bottom right of our website pages and a One Percent agent will get back to you to discuss the particulars.

Q
Are your listings on MLS® and realtor.ca?

Yes, and yes.


Learn more about the One Percent Realty Deal

 

April Isaac Associate

Phone:
403-888-4003
Email:
aprilonepercent@gmail.com
Support Area:
CALGARY, SOUTH EAST CALGARY, SOUTH WEST CALGARY, NORTH CALGARY, NORTH EAST CALGARY, NORTH WEST CALGARY, EAST CALGARY, WEST CALGARY, AIRDRIE, COCHRANE, OKOTOKS, CHESTERMERE, STRATHMORE, GREATER CALGARY AREA, ROCKYVIEW, DIDSBURY, LANGDON

23 YRS EXPER, 1300+ SALES, NEGOTIATION EXPERT AND  BUYERS REPRESENTATIVE EXPERT, marketing savv ...

Full Profile