8 BUTTERWORTH PT NW, Edmonton

2026-04-06
 

Quick Summary

Location
8 BUTTERWORTH PT NW, Edmonton, Alberta T6R2S3
Price
$649,900 CAD
Status:
For Sale
Property Type:
Single Family
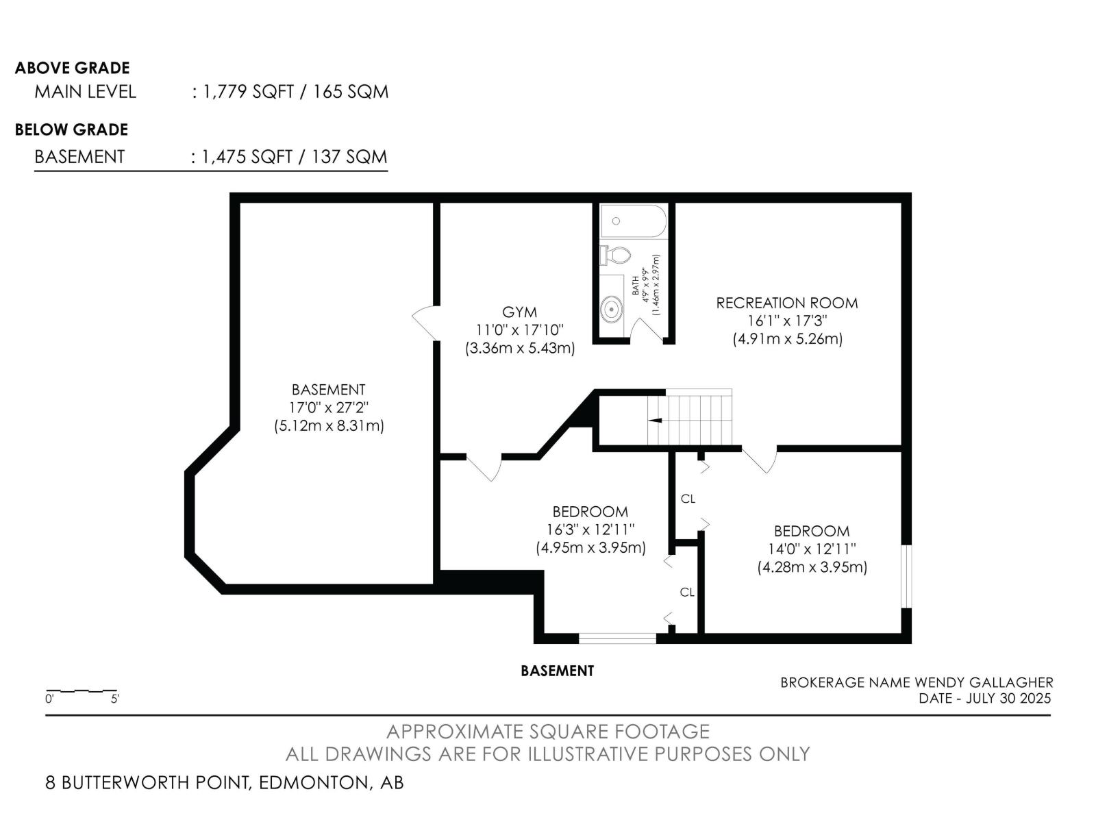
Area:
1776 sqft
Bedrooms:
3
Bathrooms:
3
Year of Construction:
1998
Video Link:

MLS®#E4480682

Property Description

Location, location, location! Nature at Your Doorstep! This well maintained, spacious executive half-duplex bungalow is perfectly situated in a secluded cul-de-sac just steps from the Whitemud Ravine. The bright & airy open-concept layout features, 9ft ceilings, beautiful hardwood floors, expansive windows & a gorgeous solarium offering incredible natural light. The spacious kitchen offers a sleek granite island, ample cabinetry and counter space & flows seamlessly into the large living/dining area creating the perfect space for entertaining or just relaxing after a long day. Retreat to the king-sized primary suite, complete with a walk-in closet and a spa-style ensuite featuring a jacuzzi tub and separate shower. The finished lower level adds significant living space with a family room or gym, two additional bedrooms, 4pc bath & a generous storage area. Enjoy year round comfort with central AC + an oversized double attached garage. This home and its highly sought after location has so much to offer! (id:32467)

Property Features

Ammenities Near By

  • Ammenities Near By: Schools, Shopping, Ski hill

Building

  • Amenities: Ceiling - 9ft
  • Appliances: Alarm System, Dishwasher, Dryer, Garage door opener, Microwave Range Hood Combo, Refrigerator, Stove, Washer, Window Coverings
  • Architectural Style: Bungalow
  • Basement Development: Finished
  • Basement Type: Full (Finished)
  • Construction Style: Semi-detached
  • Cooling Type: Central air conditioning
  • Fireplace: Yes
  • Interior Size: 1776 sqft
  • Building Type: Duplex
  • Stories: 1

Features

  • Feature: Private setting, Corner Site, Flat site, Closet Organizers, No Animal Home, No Smoking Home

Land

  • Land Size: 451.26 m2

Maintenance Fee

  • Maintenance Fee: 429.00

Ownership

  • Type: Condominium/Strata

Information entered by Exp Realty
Listing information last updated on: 2026-04-22 22:02:39


Book your free home evaluation with a 1% REALTOR® now!


How much could you save in commission selling with One Percent Realty?

Slide to select your home's price:

$500,000

Your One Percent Realty Commission savings

$500,000

Savings calculated using One Percent Realty's posted commission rates compared to another agent charging 7% on the first 100k & 3% on the balance + GST. Not all agents charge the same.

Send a Message


One Percent Realty's top FAQs

Q
What is the deal exactly, with One Percent Realty?

We are a fully licensed real estate company that offers full service but at a discount commission. In terms of services and exposure, we are identical to whoever you would like to compare us with. We are on MLS®, all the top internet real estates sites, we place a sign on your property ( if it's allowed ), we show the property, hold open houses, advertise it, handle all the negotiations, plus the conveyancing. There is nothing that you are not getting, except for a high commission!

Q
What do you charge?

We charge a total of $7,950 for residential properties under $400,000. For residential properties $400,000-$900,000 we charge $9,950. For residential properties over $900,000 we charge 1% of the sale price plus $950. Plus Applicable taxes, of course. We also offer the flexibility to offer more commission to the buyer's agent, if you want to. It is as simple as that! For commercial properties, farms, or development properties please contact a One Percent agent directly or fill out the market evaluation form on the bottom right of our website pages and a One Percent agent will get back to you to discuss the particulars.

Q
Are your listings on MLS® and realtor.ca?

Yes, and yes.


Learn more about the One Percent Realty Deal

 

Christine Tetreault Broker / Owner / REALTOR®

Phone:
(780) 268-4888
Email:
christine.onepercent@gmail.com
Support Area:
Windermere, Glenora, Belgravia, Griesbach, Bonnie Doon, Strathcona, Westmount, Summerside, Crestwood, Laurier Heights, Parkview, Magrath Heights, Highlands, Terwillegar Towne, Sherwood Park, West Edmonton, Spruce Grove, St. Albert, Jasper Place, Balwin, Stony Plain, Edmonton

REAL ESTATE NEGOTIATION EXPERT (RENE) SENIORS REAL ESTATE SPECIALIST (SRES) CERTIFIED REAL ESTATE ...

Full Profile

 

Bhavya Soni Associate

Phone:
7807070479
Email:
Opendreamdoorswithbhavya@gmail.com
Support Area:
Edmonton, Beaumont, Fort Saskatchewan, Spruce Grove, Stony Plain, Sherwood Park, St Albert, Millet, Wetaskiwin, Calmar, Devon, Morinville, Westlock County, Red Deer, Rimbey, Athabasca, Leduc, Falun, Ponoka, Lacombe, Camrose, Thorby, Drayton Valley

Bhavya Soni is one of the top performing full-time agents of One Percent Realty. Her name has been p ...

Full Profile

 

Monika Lukavicius Associate

Phone:
7808853882
Email:
monikalukavicius1percent@gmail.com
Support Area:
Edmonton, St. Albert, Morinville

Hi I'm Monika and truly believe in value that 1% has to offer. My background is in construction and ...

Full Profile