2231 2 Avenue NW, CALGARY

2026-04-03
 

Quick Summary

Location
2231 2 Avenue NW, CALGARY, Alberta T2N0H1
Price
$1,545,000 CAD
Status:
For Sale
Property Type:
Single Family
Area:
2950 sqft
Bedrooms:
4 bed +2
Bathrooms:
7
Garages:
2
Year of Construction:
2026

MLS®#A2292398

Property Description

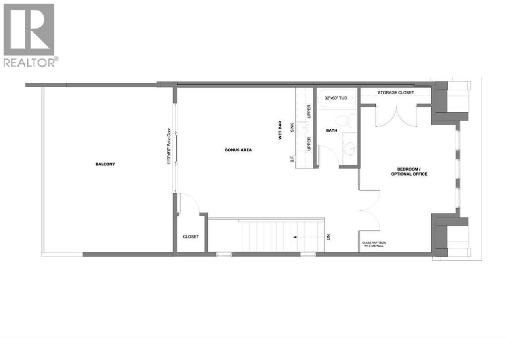
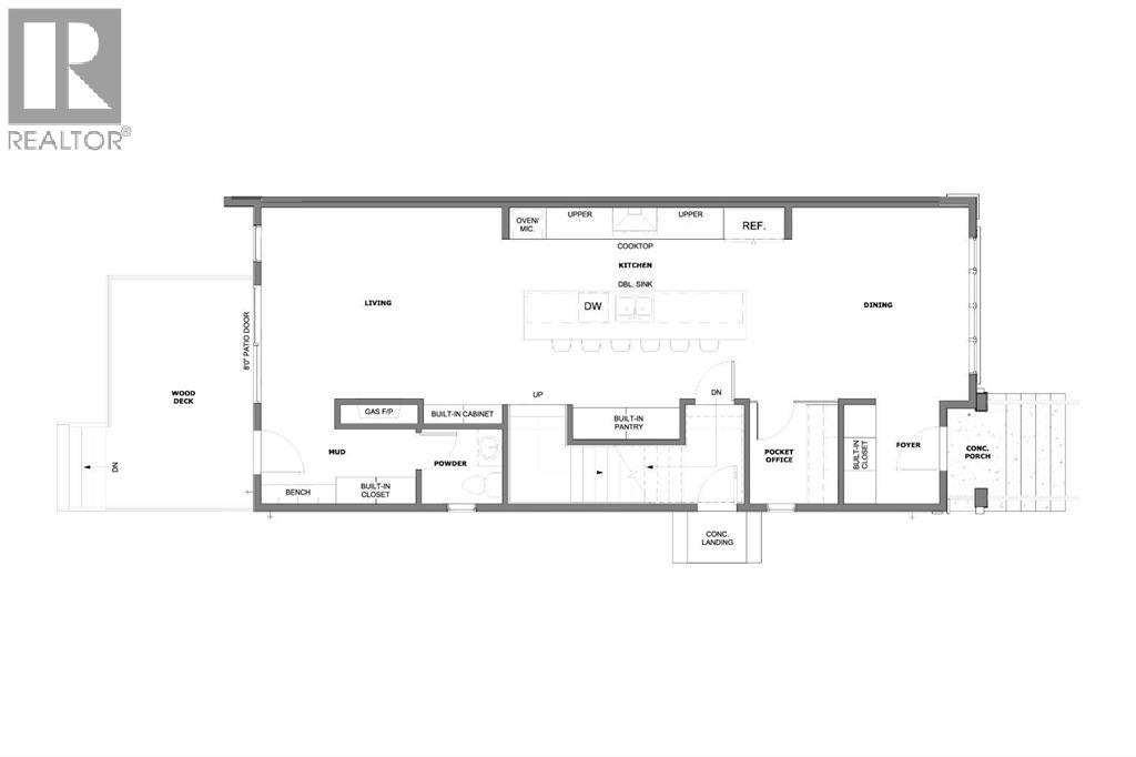
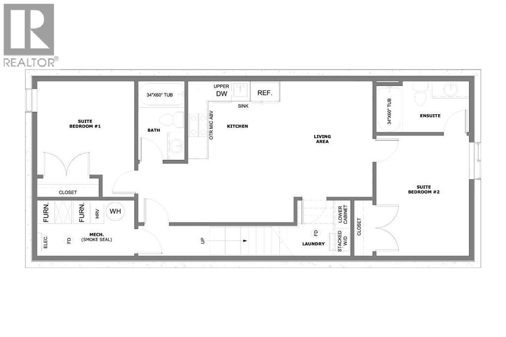
Move in Ready in June!! Modern, calm, & thoughtfully composed. This brand WEST HILLHURST semi-detached home blends clean architecture w/ warm, natural finishes across THREE LEVELS, including a loft level w/ bonus area, bright bed/office, & balcony/ DOWNTOWN VIEWS, SOUTH BACKYARD, plus a fully developed LEGAL 2-BED + 2-BATH LOWER SUITE (approved by the city). Step inside to a welcoming foyer w/ plenty of space to move around & manage shoes & coats, neatly stored in the built-in closet. A pocket office w/ a built-in desk provides a convenient spot for work-from-home tasks. The front dining area offers a quiet place for morning coffee & a lovely backdrop for family meals. The kitchen truly steals the show w/ the oversized island w/ seating for quick breakfasts, charcuterie nights, or laptop catch-ups. Cabinetry is full-height w/ lots of lower drawers and a panelled built-in fridge for a modern vibe. The working wall keeps cookware & small appliances tucked away, while quartz surfaces read clean & durable. At the back, the family room is all about comfort. The gas fireplace w/ simple built-ins gives you space for art & books, while the layout makes TV viewing effortless. Sliding patio doors to the backyard floods the room w/ light & sets up easy indoor-outdoor living. The rear mudroom is exactly where you want it, fitted w/ custom storage & a bench so shoes, bags, & dog leashes have a home. A discreet powder room completes this level.Upstairs, the PRIMARY SUITE feels like a retreat at the end of the day. You get a true walk-in closet & an ensuite that checks every box: DOUBLE VANITY, an oversized shower, & a FREESTANDING TUB that actually invites a soak. The secondary bedrooms features their own 4-pc ensuites & built-in closets giving families the flexibily they desreve. The LAUNDRY ROOM up here saves steps & keeps the main floor tidy.The loft level adds space to spread out across the home, w/ a bright & spacious bedroom or optional office w/ glass partition wal l & French door, w/ built-in storage. The bonus rec area features a modern & upscale wet bar, w/ access to the oversized balcony w/ downtown views! There’s also a full 4-pc bath on this level for convenience! Downstairs, the legal 2-BED + 2 BATH suite keeps the modern & upscale feel going w/ a full kitchen w/ quartz & stainless steel appliance package, good-sized living area, separate laundry, a primary bed w/ private ensuite bath, & a second bed w/ quick access to the main 4-pc bath.Walk to neighbourhood parks for quick dog runs & fresh air. Schools are excellent here – Hillhurst School for K-6, Queen Elizabeth Junior High & Senior High just up the road, & William Aberhart High School for advanced academics & sports programs. Weekend coffee, local bakeries, & casual dining are all within minutes, & downtown is an easy commute by car, bike, or transit. River pathways make a perfect loop for a jog or sunset stroll. It’s the right mix of community feel & city access. (id:32467)

Property Features

Ammenities Near By

  • Ammenities Near By: Park, Playground, Schools, Shopping

Building

  • Appliances: Refrigerator, Cooktop - Gas, Dishwasher, Stove, Oven, Microwave, Microwave Range Hood Combo, Hood Fan, Garage door opener
  • Basement Development: Finished
  • Basement Features: Separate entrance, Suite
  • Basement Type: Full (Finished)
  • Construction Style: Semi-detached
  • Cooling Type: See Remarks
  • Exterior Finish: Concrete
  • Fireplace: Yes
  • Flooring Type: Hardwood, Tile, Vinyl Plank
  • Interior Size: 2950 sqft
  • Building Type: Duplex
  • Stories: 3

Features

  • Feature: Closet Organizers, Gas BBQ Hookup

Land

  • Land Size: 3245.32 sqft|0-4,050 sqft

Ownership

  • Type: Freehold

Zoning

  • Description: R-CG

Information entered by RE/MAX House of Real Estate
Listing information last updated on: 2026-04-16 16:19:13


Book your free home evaluation with a 1% REALTOR® now!


How much could you save in commission selling with One Percent Realty?

Slide to select your home's price:

$500,000

Your One Percent Realty Commission savings

$500,000

Savings calculated using One Percent Realty's posted commission rates compared to another agent charging 7% on the first 100k & 3% on the balance + GST. Not all agents charge the same.

Send a Message


One Percent Realty's top FAQs

Q
What is the deal exactly, with One Percent Realty?

We are a fully licensed real estate company that offers full service but at a discount commission. In terms of services and exposure, we are identical to whoever you would like to compare us with. We are on MLS®, all the top internet real estates sites, we place a sign on your property ( if it's allowed ), we show the property, hold open houses, advertise it, handle all the negotiations, plus the conveyancing. There is nothing that you are not getting, except for a high commission!

Q
What do you charge?

We charge a total of $7,950 for residential properties under $400,000. For residential properties $400,000-$900,000 we charge $9,950. For residential properties over $900,000 we charge 1% of the sale price plus $950. Plus Applicable taxes, of course. We also offer the flexibility to offer more commission to the buyer's agent, if you want to. It is as simple as that! For commercial properties, farms, or development properties please contact a One Percent agent directly or fill out the market evaluation form on the bottom right of our website pages and a One Percent agent will get back to you to discuss the particulars.

Q
Are your listings on MLS® and realtor.ca?

Yes, and yes.


Learn more about the One Percent Realty Deal

 

April Isaac Associate

Phone:
403-888-4003
Email:
aprilonepercent@gmail.com
Support Area:
CALGARY, SOUTH EAST CALGARY, SOUTH WEST CALGARY, NORTH CALGARY, NORTH EAST CALGARY, NORTH WEST CALGARY, EAST CALGARY, WEST CALGARY, AIRDRIE, COCHRANE, OKOTOKS, CHESTERMERE, STRATHMORE, GREATER CALGARY AREA, ROCKYVIEW, DIDSBURY, LANGDON

23 YRS EXPER, 1300+ SALES, NEGOTIATION EXPERT AND  BUYERS REPRESENTATIVE EXPERT, marketing savv ...

Full Profile

 

Anna Madden Associate

Phone:
587-830-2405
Email:
anna.madden05@gmail.com
Support Area:
Calgary, Airdrie, Cochrane, chestermere, Langdon, Okotoks, High river, Olds, Rocky View, Foothills

Experienced Residential Realtor serving Calgary and surrounding communities. I have knowledge in buy ...

Full Profile

 

Dabs Fashola Associate

Phone:
403-619-0621
Email:
homesbydabs@gmail.com
Support Area:
Calgary Southwest, Calgary Southeast, Calgary Northwest, Calgary Northeast, Okotoks, Chestermere:, Airdrie, Olds, Cochrane

REAL ESTATE NEGOTIATION EXPERT (RENE)Your Trusted and Experienced Realtor | Turning Real E ...

Full Profile