65 Pinnacle Close, Blackfalds

2026-04-02
 

Quick Summary

Location
65 Pinnacle Close, Blackfalds, Alberta T4M0M3
Price
$434,900 CAD
Status:
For Sale
Property Type:
Single Family
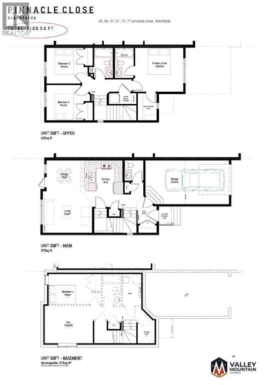
Area:
1205 sqft
Bedrooms:
3
Bathrooms:
3
Garages:
1
Year of Construction:
2026
Video Link:

MLS®#A2298699

Property Description

Quality built by Valley Mountain Homes, these brand new duplexes are located in a close on a big beautiful lot with room to build a second garage. Excellent floor plan with 1205 sq ft on 2 levels and an attached single garage. The main floor has 9' ceilings with an open style floor plan. The kitchen has flat panel melamine cabinets, full tile backsplash, quartz countertops and comes with the fridge, stove, dishwasher and hood fan. The eating area and living room have nice sized windows. There is a garden door out to the pressure treated wood deck that has aluminum railings and there is 6' high vinyl dividing fence between the units. There is a 2 pce bath on the main floor. Upstairs has 3 bedrooms, the primary is quite large and it has a 3 pce ensuite & walk in closet. The other 2 bedrooms share a 4 pce bath and there is upper floor laundry for your convenience. The WALKOUT basement is undeveloped. The furnace and hot water tank are high efficient. (id:32467)

Property Features

Ammenities Near By

  • Ammenities Near By: Park, Playground, Schools, Shopping

Building

  • Appliances: Refrigerator, Dishwasher, Stove, Microwave Range Hood Combo
  • Basement Development: Unfinished
  • Basement Features: Walk out
  • Basement Type: Full (Unfinished)
  • Construction Style: Semi-detached
  • Cooling Type: None
  • Exterior Finish: Vinyl siding
  • Fireplace: No
  • Flooring Type: Carpeted, Vinyl Plank
  • Interior Size: 1205 sqft
  • Building Type: Duplex
  • Stories: 2

Features

  • Feature: PVC window

Land

  • Land Size: 3625 sqft|0-4,050 sqft

Ownership

  • Type: Freehold

Structure

  • Structure: Deck

Zoning

  • Description: R2

Information entered by Century 21 Maximum
Listing information last updated on: 2026-05-07 19:27:21


Book your free home evaluation with a 1% REALTOR® now!


How much could you save in commission selling with One Percent Realty?

Slide to select your home's price:

$500,000

Your One Percent Realty Commission savings

$500,000

Savings calculated using One Percent Realty's posted commission rates compared to another agent charging 7% on the first 100k & 3% on the balance + GST. Not all agents charge the same.

One Percent Realty's top FAQs

Q
What is the deal exactly, with One Percent Realty?

We are a fully licensed real estate company that offers full service but at a discount commission. In terms of services and exposure, we are identical to whoever you would like to compare us with. We are on MLS®, all the top internet real estates sites, we place a sign on your property ( if it's allowed ), we show the property, hold open houses, advertise it, handle all the negotiations, plus the conveyancing. There is nothing that you are not getting, except for a high commission!

Q
What do you charge?

We charge a total of $7,950 for residential properties under $400,000. For residential properties $400,000-$900,000 we charge $9,950. For residential properties over $900,000 we charge 1% of the sale price plus $950. Plus Applicable taxes, of course. We also offer the flexibility to offer more commission to the buyer's agent, if you want to. It is as simple as that! For commercial properties, farms, or development properties please contact a One Percent agent directly or fill out the market evaluation form on the bottom right of our website pages and a One Percent agent will get back to you to discuss the particulars.

Q
Are your listings on MLS® and realtor.ca?

Yes, and yes.


Learn more about the One Percent Realty Deal