21 BELFRY FAIRWAY CR, Stony Plain

2026-04-01
 

Quick Summary

Location
21 BELFRY FAIRWAY CR, Stony Plain, Alberta T7Z2M8
Price
$549,900 CAD
Status:
For Sale
Property Type:
Single Family
Area:
1539 sqft
Bedrooms:
4
Bathrooms:
4
Year of Construction:
2005

MLS®#E4480040

Property Description

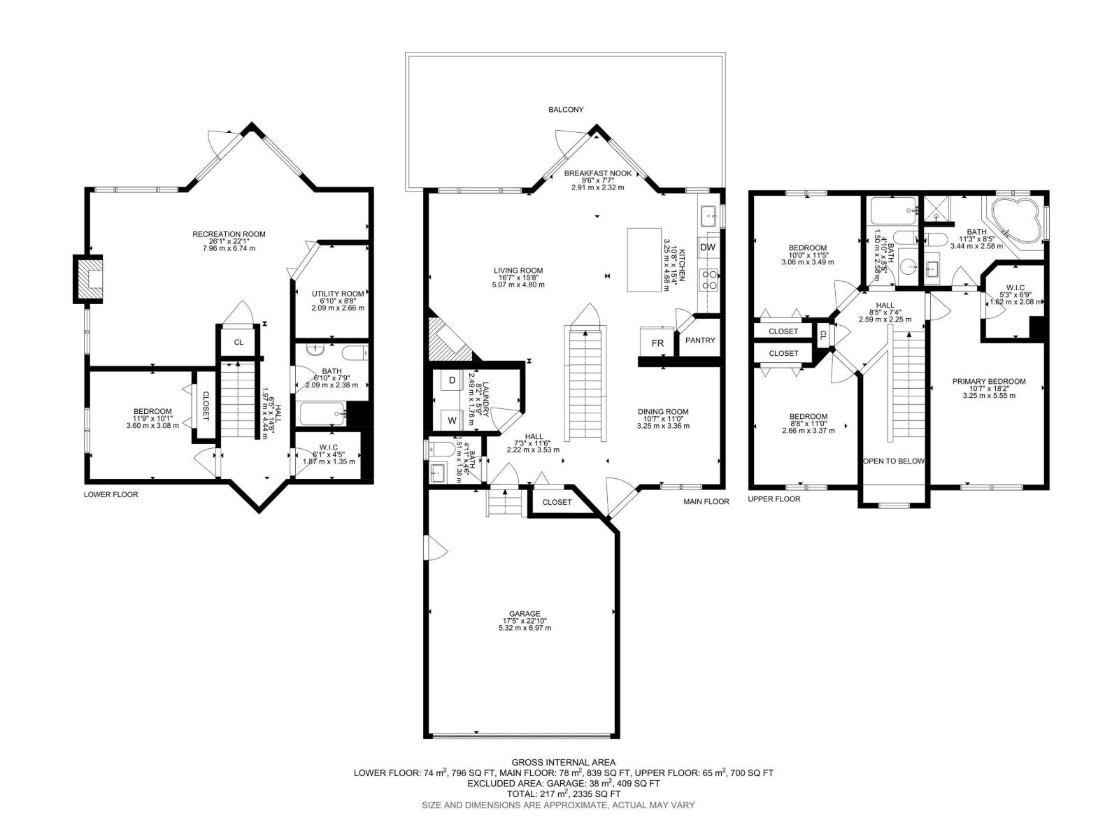
Beautiful WALKOUT 2-storey BACKING the GOLF COURSE in Stony Plain! Over 1500 sq ft PLUS fully finished basement. 18' ceilings greet you as you enter. Front flex room could be a great dining space, home office or formal living room. NEW kitchen is gorgeous with beautiful white cabinets, quartz countertops, corner pantry & updated appliances! Great breakfast nook with room to expand for guests! Large living room for more entertaining with gas fireplace. Tons of natural light through the windows looking onto the mature trees of the golf course. MAIN FLOOR LAUNDRY! Upstairs the master suite is a great size with large walk in closet and newly renovated 4pc ensuite. 2 more bedrooms are great for kids, guests or a home office. Walkout basement has large rec room space. It's even fully plumbed for wet bar or future 2nd kitchen. Another bedroom & 4pc bath. Large deck is great to spend a warm summer evening & yard is fully landscaped including picture, perfect Koi pond. It's your own private oasis!!! (id:32467)

Property Features

Ammenities Near By

  • Ammenities Near By: Park, Golf Course, Playground

Building

  • Amenities: Vinyl Windows
  • Appliances: Dishwasher, Dryer, Microwave Range Hood Combo, Refrigerator, Stove, Washer, Window Coverings
  • Basement Development: Finished
  • Basement Features: Walk out
  • Basement Type: Full (Finished)
  • Construction Style: Detached
  • Fireplace: Yes
  • Interior Size: 1539 sqft
  • Building Type: House
  • Stories: 2

Features

  • Feature: Closet Organizers, Exterior Walls- 2x6", No Smoking Home

Land

  • Land Size: 463.03 m2

Ownership

  • Type: Freehold

Structure

  • Structure: Deck, Porch

Information entered by RE/MAX Real Estate
Listing information last updated on: 2026-04-01 16:42:55


Book your free home evaluation with a 1% REALTOR® now!


How much could you save in commission selling with One Percent Realty?

Slide to select your home's price:

$500,000

Your One Percent Realty Commission savings

$500,000

Savings calculated using One Percent Realty's posted commission rates compared to another agent charging 7% on the first 100k & 3% on the balance + GST. Not all agents charge the same.

Send a Message


One Percent Realty's top FAQs

Q
What is the deal exactly, with One Percent Realty?

We are a fully licensed real estate company that offers full service but at a discount commission. In terms of services and exposure, we are identical to whoever you would like to compare us with. We are on MLS®, all the top internet real estates sites, we place a sign on your property ( if it's allowed ), we show the property, hold open houses, advertise it, handle all the negotiations, plus the conveyancing. There is nothing that you are not getting, except for a high commission!

Q
What do you charge?

We charge a total of $7,950 for residential properties under $400,000. For residential properties $400,000-$900,000 we charge $9,950. For residential properties over $900,000 we charge 1% of the sale price plus $950. Plus Applicable taxes, of course. We also offer the flexibility to offer more commission to the buyer's agent, if you want to. It is as simple as that! For commercial properties, farms, or development properties please contact a One Percent agent directly or fill out the market evaluation form on the bottom right of our website pages and a One Percent agent will get back to you to discuss the particulars.

Q
Are your listings on MLS® and realtor.ca?

Yes, and yes.


Learn more about the One Percent Realty Deal

 

Christine Tetreault Broker / Owner / REALTOR®

Phone:
(780) 268-4888
Email:
christine.onepercent@gmail.com
Support Area:
Windermere, Glenora, Belgravia, Griesbach, Bonnie Doon, Strathcona, Westmount, Summerside, Crestwood, Laurier Heights, Parkview, Magrath Heights, Highlands, Terwillegar Towne, Sherwood Park, West Edmonton, Spruce Grove, St. Albert, Jasper Place, Balwin, Stony Plain, Edmonton

REAL ESTATE NEGOTIATION EXPERT (RENE) SENIORS REAL ESTATE SPECIALIST (SRES) CERTIFIED REAL ESTATE ...

Full Profile

 

Bhavya Soni Associate

Phone:
7807070479
Email:
Opendreamdoorswithbhavya@gmail.com
Support Area:
Edmonton, Beaumont, Fort Saskatchewan, Spruce Grove, Stony Plain, Sherwood Park, St Albert, Millet, Wetaskiwin, Calmar, Devon, Morinville, Westlock County, Red Deer, Rimbey, Athabasca, Leduc, Falun, Ponoka, Lacombe, Camrose, Thorby, Drayton Valley

Bhavya Soni is one of the top performing full-time agents of One Percent Realty. Her name has been p ...

Full Profile

 

Jill Turgeon Associate

Phone:
780-218-7444
Email:
admin@stageandsell.ca
Support Area:
Edmonton, St.Albert, Stony Plain, Spruce Grove, Sherwood Park, Devon, Parkland County, Lac St. Anne County, Sturgeon County, Windermere, Magrath, Secord, Edgemont, Glenora, Riverbend, Terwilligar, Terwiligar Towne, North Glenora, Forest Heights, Gold Bar, Keswick, Chappelle

Do Your Online Photos Matter?Times have changed, and your FIRST showing is now on a computer. If a B ...

Full Profile