90 Heirloom Passage SE, CALGARY

2026-03-26
 

Quick Summary

Location
90 Heirloom Passage SE, CALGARY, Alberta T3S0K1
Price
$449,900 CAD
Status:
For Sale
Property Type:
Single Family
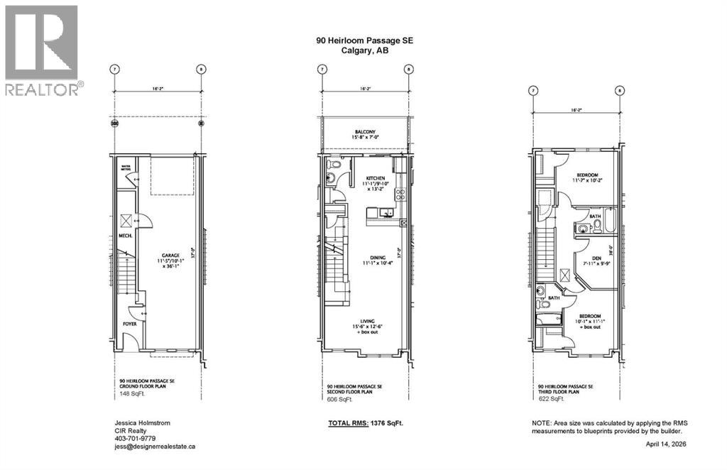
Area:
1376 sqft
Bedrooms:
2
Bathrooms:
3
Garages:
2
Year of Construction:
2026

MLS®#A2295920

Property Description

Rangeview (Section 23) is doing something different in southeast Calgary. COMMUNITY GARDENS, WALKABLE PATHWAYS, and PLANNED GATHERING SPACES are already shaping how the neighbourhood will come together—not someday, but as it grows.This THREE-STOREY TOWNHOME fits right into that setting.The main living level (second floor) is confident and clean, anchored by a modern kitchen with QUARTZ COUNTERS, a PENINSULA BREAKFAST BAR, and UPGRADED BACKSPLASH TILE that finishes the space without overcomplicating it. The FULL-WIDTH PRIVATE BALCONY sits just off the kitchen—easy for morning coffee, quick resets, or stepping outside without breaking stride.Up top, the THIRD FLOOR keeps everything that matters in one place. Bedrooms, laundry, and bathrooms are all right where you need them, including a primary bedroom with its own ensuite. A fully enclosed DEN/FLEX ROOM sits alongside—ideal for a home office, toy room or a space that can shift as life does.At ground level, the DOUBLE TANDEM ATTACHED GARAGE quietly solves the practical side of things. TWO-CAR PARKING PLUS ROOM FOR STORAGE, bikes, and everything else that tends to follow you home—without taking over your living space.The WEST-FACING FRONT brings in evening light and a natural connection to the street—one of those details that’s subtle, but noticeable once you’re living in it.A DECEMBER 2026 POSSESSION gives you time to do this properly. No rushed decisions, no scrambling to line things up—just a clear runway to plan your move and step into something new when it’s ready.Rangeview is still taking shape, which is exactly the point. The groundwork is there, the direction is clear, and you’re getting in early enough to watch it come together around you.If this feels like the right move, visit Rangeview as a community to explore all it has to offer!• PLEASE NOTE: Photos are of a DIFFERENT Spec Home of the same model – fit and finish may differ. Interior selections and floorplans shown in photos. (id:32467)

Property Features

Ammenities Near By

  • Ammenities Near By: Park, Playground

Building

  • Appliances: Refrigerator, Range - Electric, Dishwasher, Microwave Range Hood Combo, Garage door opener
  • Basement Type: None
  • Construction Style: Attached
  • Cooling Type: None
  • Exterior Finish: Composite Siding, Vinyl siding
  • Fireplace: No
  • Flooring Type: Carpeted, Vinyl Plank
  • Interior Size: 1376 sqft
  • Building Type: Row / Townhouse
  • Stories: 3

Features

  • Feature: Gas BBQ Hookup, Parking

Land

  • Land Size: 646.8 sqft|0-4,050 sqft

Maintenance Fee

  • Maintenance Fee: 229.71

Ownership

  • Type: Bare Land Condo/Strata

Zoning

  • Description: M-2

Information entered by CIR Realty
Listing information last updated on: 2026-05-05 15:57:33


Book your free home evaluation with a 1% REALTOR® now!


How much could you save in commission selling with One Percent Realty?

Slide to select your home's price:

$500,000

Your One Percent Realty Commission savings

$500,000

Savings calculated using One Percent Realty's posted commission rates compared to another agent charging 7% on the first 100k & 3% on the balance + GST. Not all agents charge the same.

Send a Message


One Percent Realty's top FAQs

Q
What is the deal exactly, with One Percent Realty?

We are a fully licensed real estate company that offers full service but at a discount commission. In terms of services and exposure, we are identical to whoever you would like to compare us with. We are on MLS®, all the top internet real estates sites, we place a sign on your property ( if it's allowed ), we show the property, hold open houses, advertise it, handle all the negotiations, plus the conveyancing. There is nothing that you are not getting, except for a high commission!

Q
What do you charge?

We charge a total of $7,950 for residential properties under $400,000. For residential properties $400,000-$900,000 we charge $9,950. For residential properties over $900,000 we charge 1% of the sale price plus $950. Plus Applicable taxes, of course. We also offer the flexibility to offer more commission to the buyer's agent, if you want to. It is as simple as that! For commercial properties, farms, or development properties please contact a One Percent agent directly or fill out the market evaluation form on the bottom right of our website pages and a One Percent agent will get back to you to discuss the particulars.

Q
Are your listings on MLS® and realtor.ca?

Yes, and yes.


Learn more about the One Percent Realty Deal

 

April Isaac Associate

Phone:
403-888-4003
Email:
aprilonepercent@gmail.com
Support Area:
CALGARY, SOUTH EAST CALGARY, SOUTH WEST CALGARY, NORTH CALGARY, NORTH EAST CALGARY, NORTH WEST CALGARY, EAST CALGARY, WEST CALGARY, AIRDRIE, COCHRANE, OKOTOKS, CHESTERMERE, STRATHMORE, GREATER CALGARY AREA, ROCKYVIEW, DIDSBURY, LANGDON

23 YRS EXPER, 1300+ SALES, NEGOTIATION EXPERT AND  BUYERS REPRESENTATIVE EXPERT, marketing savv ...

Full Profile

 

Anna Madden Associate

Phone:
587-830-2405
Email:
anna.madden05@gmail.com
Support Area:
Calgary, Airdrie, Cochrane, chestermere, Langdon, Okotoks, High river, Olds, Rocky View, Foothills

Experienced Residential Realtor serving Calgary and surrounding communities. I have knowledge in buy ...

Full Profile

 

Dabs Fashola Associate

Phone:
403-619-0621
Email:
homesbydabs@gmail.com
Support Area:
Calgary Southwest, Calgary Southeast, Calgary Northwest, Calgary Northeast, Okotoks, Chestermere:, Airdrie, Olds, Cochrane

REAL ESTATE NEGOTIATION EXPERT (RENE)Your Trusted and Experienced Realtor | Turning Real E ...

Full Profile