31 Hollinger Drive, Swan Hills

2026-03-17
 

Quick Summary

Location
31 Hollinger Drive, Swan Hills, Alberta T0G2C0
Price
$159,000 CAD
Status:
For Sale
Property Type:
Single Family
Area:
1144 sqft
Bedrooms:
3 bed +2
Bathrooms:
3
Garages:
3
Year of Construction:
1988

MLS®#A2294071

Property Description

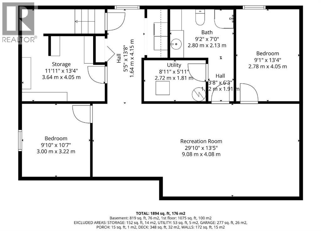
Welcome to this charming 1988-built home that offers both comfort and practicality. This 3-bedroom house, nestled in a tranquil neighborhood, boasts a variety of features that make it an ideal living space.Upon entering, you’ll be greeted by a tiled entryway, leading to the main living area with beautiful hardwood floors. The kitchen, with a very large layout, provides an awesome view and is equipped with a range of appliances, including a fridge, stove, built-in microwave, and dishwasher. The kitchen also features a spacious, movable island with a breakfast bar, making it a perfect gathering spot. Adjacent to the kitchen, you’ll find a dining area that’s ideal for family meals and entertaining.The upstairs area includes three bedrooms and a 4-piece main bathroom, ensuring convenience for the whole family. The master bedroom features a 2-piece ensuite, adding a touch of luxury to your daily routine. Downstairs, the basement offers two additional bedrooms, making it a great space for guests or for use as an office or playroom. There’s also a 3-piece bathroom and a utility room off the basement bathroom for added convenience. The basement features hardwood in the main area and carpet in the bedrooms, providing a cozy atmosphere.Storage won’t be a concern with a huge storage area in the basement, as well as storage space under the stairs. The home is equipped with copper plumbing, adding to its durability and value.Outside, you’ll find a wooden deck for outdoor relaxation and a very nice firepit area, perfect for evening gatherings. The fully fenced back yard ensures privacy and security. For storage needs, there’s a small garden shed on the side of the house.Parking is convenient with street parking and alley access. The single-car garage, drywalled and insulated, provides additional parking and storage options. The chimney in the garage could be used for future heating purposes.The property also offers paved parking in the back with private alley access . The shingles are in good shape, and most windows upstairs are vinyl, enhancing energy efficiency and aesthetics.This house is a perfect blend of comfort, convenience, and potential, offering a cozy and practical living space with a view and outdoor amenities that make it a true home. (id:32467)

Property Features

Ammenities Near By

  • Ammenities Near By: Golf Course, Park, Playground, Schools, Shopping, Water Nearby

Building

  • Appliances: Refrigerator, Dishwasher, Stove, Microwave Range Hood Combo, Window Coverings, Washer & Dryer
  • Architectural Style: Bungalow
  • Basement Development: Finished
  • Basement Type: Full (Finished)
  • Construction Style: Detached
  • Cooling Type: None
  • Exterior Finish: Concrete, Vinyl siding
  • Fireplace: No
  • Flooring Type: Carpeted, Ceramic Tile, Hardwood, Laminate
  • Interior Size: 1144 sqft
  • Building Type: House
  • Stories: 1
  • Utility Water: Municipal water

Features

  • Feature: Back lane, PVC window, No neighbours behind

Land

  • Land Size: 7150 sqft|4,051 - 7,250 sqft
  • Sewer: Municipal sewage system

Ownership

  • Type: Freehold

Zoning

  • Description: R-1

Information entered by EXIT REALTY RESULTS
Listing information last updated on: 2026-04-26 05:10:42


Book your free home evaluation with a 1% REALTOR® now!


How much could you save in commission selling with One Percent Realty?

Slide to select your home's price:

$500,000

Your One Percent Realty Commission savings

$500,000

Savings calculated using One Percent Realty's posted commission rates compared to another agent charging 7% on the first 100k & 3% on the balance + GST. Not all agents charge the same.

One Percent Realty's top FAQs

Q
What is the deal exactly, with One Percent Realty?

We are a fully licensed real estate company that offers full service but at a discount commission. In terms of services and exposure, we are identical to whoever you would like to compare us with. We are on MLS®, all the top internet real estates sites, we place a sign on your property ( if it's allowed ), we show the property, hold open houses, advertise it, handle all the negotiations, plus the conveyancing. There is nothing that you are not getting, except for a high commission!

Q
What do you charge?

We charge a total of $7,950 for residential properties under $400,000. For residential properties $400,000-$900,000 we charge $9,950. For residential properties over $900,000 we charge 1% of the sale price plus $950. Plus Applicable taxes, of course. We also offer the flexibility to offer more commission to the buyer's agent, if you want to. It is as simple as that! For commercial properties, farms, or development properties please contact a One Percent agent directly or fill out the market evaluation form on the bottom right of our website pages and a One Percent agent will get back to you to discuss the particulars.

Q
Are your listings on MLS® and realtor.ca?

Yes, and yes.


Learn more about the One Percent Realty Deal