905 Clennel Crescent SE, Medicine Hat

2026-03-14
 

Quick Summary

Location
905 Clennel Crescent SE, Medicine Hat, Alberta T1B1Y6
Price
$185,500 CAD
Status:
For Sale
Property Type:
Single Family
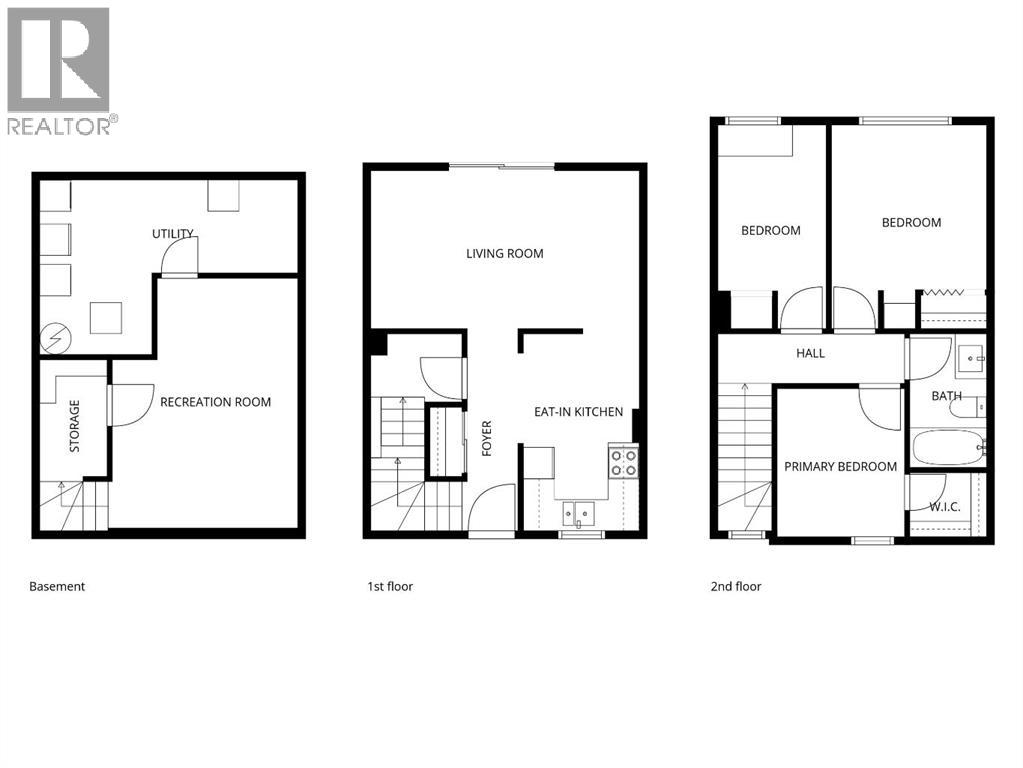
Area:
926 sqft
Bedrooms:
3
Bathrooms:
1
Year of Construction:
1976

MLS®#A2292931

Property Description

Enjoy NO CONDO FEES in this two-story townhouse in Southview with updates. It offers practical living with three bedrooms upstairs, including a primary with a walk-in closet, and a full bathroom. The living room opens to a spacious fenced backyard with no neighbours behind. Notable updates include new shingles (July 2023), a newer rear deck and fence, a newer hot water tank, as well as a replaced front door and kitchen window. Attic insulation was also upgraded to R-540, all completed in 2024. Laundry is conveniently located in the basement, and a concrete driveway completes the setup. Located in a well-established Southview neighbourhood, you’re close to parks, schools, shopping, and local amenities, making everyday life easy and convenient. Contact a real estate agent today to schedule a viewing! (id:32467)

Property Features

Ammenities Near By

  • Ammenities Near By: Park, Playground, Schools, Shopping

Building

  • Appliances: Washer, Refrigerator, Dryer
  • Basement Development: Finished
  • Basement Type: Full (Finished)
  • Construction Style: Attached
  • Cooling Type: Central air conditioning
  • Exterior Finish: Wood siding
  • Fireplace: No
  • Flooring Type: Carpeted, Vinyl Plank
  • Interior Size: 926 sqft
  • Building Type: Row / Townhouse
  • Stories: 2

Features

  • Feature: Closet Organizers

Land

  • Land Size: 1656 sqft|0-4,050 sqft

Ownership

  • Type: Freehold

Structure

  • Structure: Deck, Dog Run - Fenced In

Zoning

  • Description: R-MD

Information entered by 2 PERCENT REALTY
Listing information last updated on: 2026-04-01 19:12:03


Book your free home evaluation with a 1% REALTOR® now!


How much could you save in commission selling with One Percent Realty?

Slide to select your home's price:

$500,000

Your One Percent Realty Commission savings

$500,000

Savings calculated using One Percent Realty's posted commission rates compared to another agent charging 7% on the first 100k & 3% on the balance + GST. Not all agents charge the same.

One Percent Realty's top FAQs

Q
What is the deal exactly, with One Percent Realty?

We are a fully licensed real estate company that offers full service but at a discount commission. In terms of services and exposure, we are identical to whoever you would like to compare us with. We are on MLS®, all the top internet real estates sites, we place a sign on your property ( if it's allowed ), we show the property, hold open houses, advertise it, handle all the negotiations, plus the conveyancing. There is nothing that you are not getting, except for a high commission!

Q
What do you charge?

We charge a total of $7,950 for residential properties under $400,000. For residential properties $400,000-$900,000 we charge $9,950. For residential properties over $900,000 we charge 1% of the sale price plus $950. Plus Applicable taxes, of course. We also offer the flexibility to offer more commission to the buyer's agent, if you want to. It is as simple as that! For commercial properties, farms, or development properties please contact a One Percent agent directly or fill out the market evaluation form on the bottom right of our website pages and a One Percent agent will get back to you to discuss the particulars.

Q
Are your listings on MLS® and realtor.ca?

Yes, and yes.


Learn more about the One Percent Realty Deal