Unit 27, 4402 48 Avenue, Sylvan Lake

2026-02-27
 

Quick Summary

Location
Unit 27, 4402 48 Avenue, Sylvan Lake, Alberta T4S1N7
Price
$139,900 CAD
Status:
For Sale
Property Type:
Single Family
Area:
1008 sqft
Bedrooms:
3
Bathrooms:
1
Year of Construction:
1976
Video Link:

MLS®#A2289391

Property Description

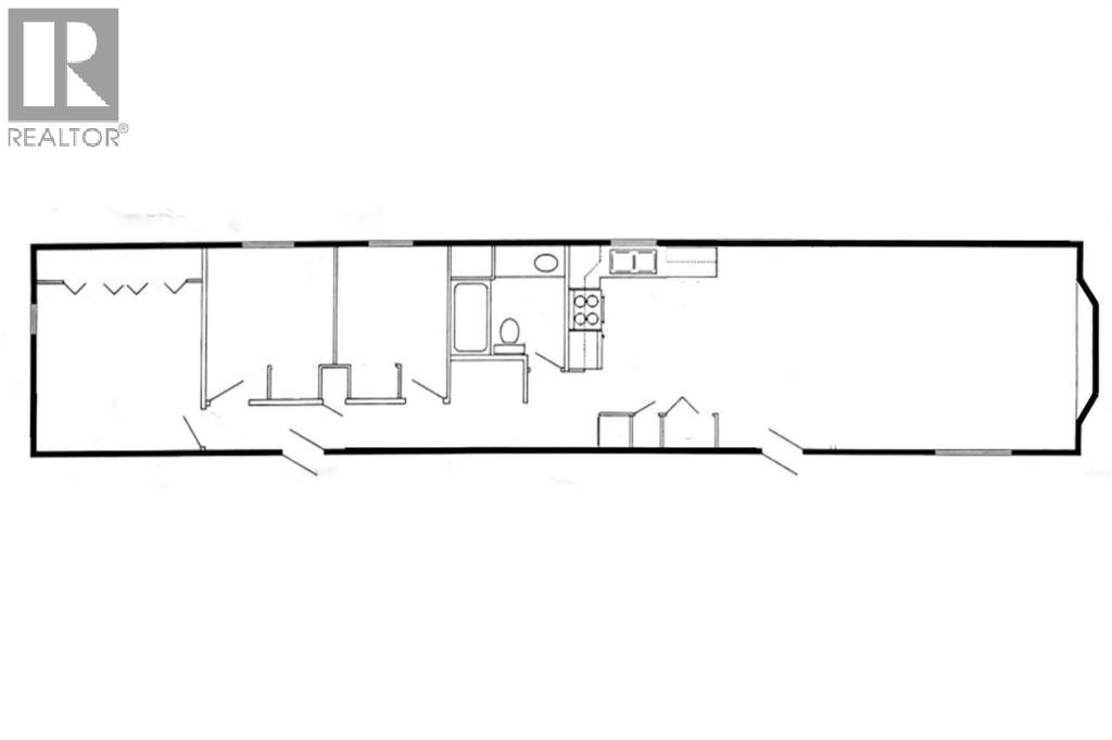
Everything is new in this beautifully renovated single-wide mobile home, located in the welcoming community of Sylvan Lake’s Spruce View Park Mobile Home Park. Completely updated from end to end, the home offers modern comfort, peace of mind, and exceptional value, with a bright, open layout and recent re-blocking and professional leveling. Major upgrades include a brand-new steel roof, brand-new furnace, brand-new hot water tank, all-new plumbing with upgraded PEX lines, new drains with heat trace tape, updated electrical, and installed back-up water valves for added protection. The exterior has been refreshed with new vinyl siding, brand-new windows throughout, and new front and rear entry steps, improving both curb appeal and energy efficiency. Inside, you’ll find brand-new flooring throughout, fresh paint in every room, and a fully renovated bathroom featuring a new vanity, tile work, and new flooring. The kitchen has been completely redone with brand-new cupboards, a kitchen island with stools, and included appliances such as a fridge, stove, new dishwasher, and hood fan. Select furnishings are also included, including a couch and a master bed frame with built-in drawers, making this home truly move-in ready. Situated on a large, fully fenced lot with room to add a shed (with park approval), pets are welcome upon approval as well. Affordable monthly lot rent of $540 includes water, sewer, garbage, and recycling services, all professionally managed by Hearthstone Property Management. The average cost for power and gas over the winter months is $300 per month. This turn-key home is an outstanding opportunity for comfortable, affordable living in a desirable Sylvan Lake location. (id:32467)

Property Features

Ammenities Near By

  • Ammenities Near By: Golf Course, Water Nearby

Building

  • Appliances: Refrigerator, Dishwasher, Stove
  • Architectural Style: Mobile Home
  • Fireplace: No
  • Flooring Type: Laminate
  • Interior Size: 1008 sqft
  • Building Type: Mobile Home
  • Stories: 1

Land

  • Land Size: Mobile Home Pad (MHP)

Structure

  • Structure: None

Information entered by Royal LePage Network Realty Corp.
Listing information last updated on: 2026-02-27 19:12:02


Book your free home evaluation with a 1% REALTOR® now!


How much could you save in commission selling with One Percent Realty?

Slide to select your home's price:

$500,000

Your One Percent Realty Commission savings

$500,000

Savings calculated using One Percent Realty's posted commission rates compared to another agent charging 7% on the first 100k & 3% on the balance + GST. Not all agents charge the same.

One Percent Realty's top FAQs

Q
What is the deal exactly, with One Percent Realty?

We are a fully licensed real estate company that offers full service but at a discount commission. In terms of services and exposure, we are identical to whoever you would like to compare us with. We are on MLS®, all the top internet real estates sites, we place a sign on your property ( if it's allowed ), we show the property, hold open houses, advertise it, handle all the negotiations, plus the conveyancing. There is nothing that you are not getting, except for a high commission!

Q
What do you charge?

We charge a total of $7,950 for residential properties under $400,000. For residential properties $400,000-$900,000 we charge $9,950. For residential properties over $900,000 we charge 1% of the sale price plus $950. Plus Applicable taxes, of course. We also offer the flexibility to offer more commission to the buyer's agent, if you want to. It is as simple as that! For commercial properties, farms, or development properties please contact a One Percent agent directly or fill out the market evaluation form on the bottom right of our website pages and a One Percent agent will get back to you to discuss the particulars.

Q
Are your listings on MLS® and realtor.ca?

Yes, and yes.


Learn more about the One Percent Realty Deal