#7 17603 99 ST NW, Edmonton

2026-02-21
 

Quick Summary

Location
#7 17603 99 ST NW, Edmonton, Alberta T5X6B9
Price
$399,900 CAD
Status:
For Sale
Property Type:
Single Family
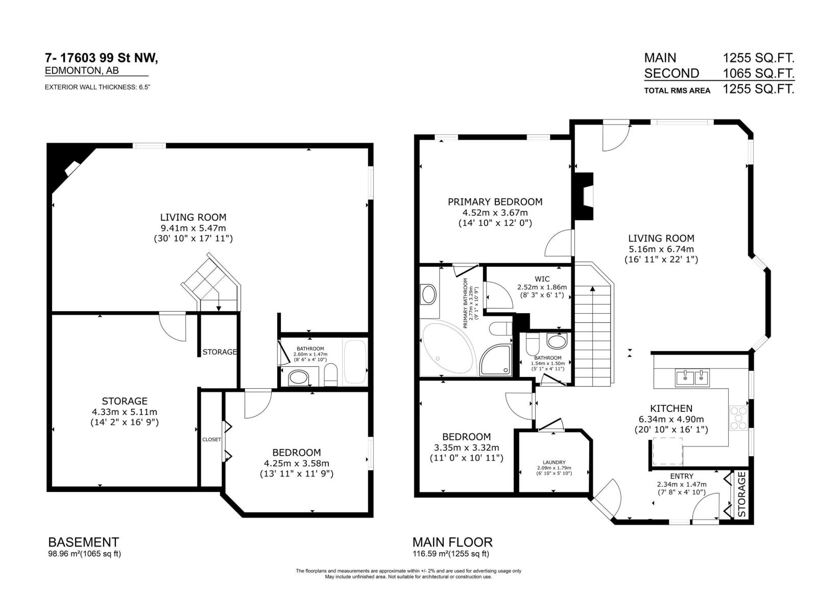
Area:
1255 sqft
Bedrooms:
2
Bathrooms:
3
Year of Construction:
2005
Video Link:

MLS®#E4474457

Property Description

Never shovel again in this well-maintained 55+ community! This spacious 2-bedroom + den, 2.5-bath 1/2 duplex is the perfect blend of comfort and functionality. Open Kitchen & living room with gas fireplace & loads of natural light opens to the south facing composite deck with Electric Awning, perfect for the warm summer days. Spacious primary suite with 4 piece ensuite, walk in closet & wall AC unit. Flexible main-floor den for a home office or hobby space. A Walk in storage room with stackable laundry & a 2 piece bathroom complete the main level. Downstairs find the fully finished basement with a large family room, gas fireplace, 2nd good sized bedroom, full bathroom and security bars on all basement windows for added piece of mind. Tons of storage in the large utility room. NEW Furnace & H20 tank (2024) NEW Sump pump (2025) New Custom Cellular Shades (2025) OVERSIZED Double ATTACHED garage with shelving. Comes with Custom Stair Lift ready to be installed. Low Maintenance living at its best! (id:32467)

Property Features

Ammenities Near By

  • Ammenities Near By: Public Transit, Shopping

Building

  • Appliances: Dishwasher, Garage door opener, Microwave Range Hood Combo, Refrigerator, Washer/Dryer Stack-Up, Stove, Window Coverings
  • Architectural Style: Bungalow
  • Basement Development: Finished
  • Basement Type: Full (Finished)
  • Construction Style: Semi-detached
  • Fireplace: Yes
  • Interior Size: 1255 sqft
  • Building Type: Duplex
  • Stories: 1

Features

  • Feature: No Animal Home, No Smoking Home, Skylight

Land

  • Land Size: 448.84 m2

Maintenance Fee

  • Maintenance Fee: 464.62

Ownership

  • Type: Condominium/Strata

Structure

  • Structure: Deck

Information entered by Initia Real Estate
Listing information last updated on: 2026-02-21 19:02:04


Book your free home evaluation with a 1% REALTOR® now!


How much could you save in commission selling with One Percent Realty?

Slide to select your home's price:

$500,000

Your One Percent Realty Commission savings

$500,000

Savings calculated using One Percent Realty's posted commission rates compared to another agent charging 7% on the first 100k & 3% on the balance + GST. Not all agents charge the same.

Send a Message


One Percent Realty's top FAQs

Q
What is the deal exactly, with One Percent Realty?

We are a fully licensed real estate company that offers full service but at a discount commission. In terms of services and exposure, we are identical to whoever you would like to compare us with. We are on MLS®, all the top internet real estates sites, we place a sign on your property ( if it's allowed ), we show the property, hold open houses, advertise it, handle all the negotiations, plus the conveyancing. There is nothing that you are not getting, except for a high commission!

Q
What do you charge?

We charge a total of $7,950 for residential properties under $400,000. For residential properties $400,000-$900,000 we charge $9,950. For residential properties over $900,000 we charge 1% of the sale price plus $950. Plus Applicable taxes, of course. We also offer the flexibility to offer more commission to the buyer's agent, if you want to. It is as simple as that! For commercial properties, farms, or development properties please contact a One Percent agent directly or fill out the market evaluation form on the bottom right of our website pages and a One Percent agent will get back to you to discuss the particulars.

Q
Are your listings on MLS® and realtor.ca?

Yes, and yes.


Learn more about the One Percent Realty Deal

 

Christine Tetreault Broker / Owner / REALTOR®

Phone:
(780) 268-4888
Email:
christine.onepercent@gmail.com
Support Area:
Windermere, Glenora, Belgravia, Griesbach, Bonnie Doon, Strathcona, Westmount, Summerside, Crestwood, Laurier Heights, Parkview, Magrath Heights, Highlands, Terwillegar Towne, Sherwood Park, West Edmonton, Spruce Grove, St. Albert, Jasper Place, Balwin, Stony Plain, Edmonton

REAL ESTATE NEGOTIATION EXPERT (RENE) SENIORS REAL ESTATE SPECIALIST (SRES) CERTIFIED REAL ESTATE ...

Full Profile

 

Bhavya Soni Associate

Phone:
7807070479
Email:
Opendreamdoorswithbhavya@gmail.com
Support Area:
Edmonton, Beaumont, Fort Saskatchewan, Spruce Grove, Stony Plain, Sherwood Park, St Albert, Millet, Wetaskiwin, Calmar, Devon, Morinville, Westlock County, Red Deer, Rimbey, Athabasca, Leduc, Falun, Ponoka, Lacombe, Camrose, Thorby, Drayton Valley

Bhavya Soni is one of the top performing full-time agents of One Percent Realty. Her name has been p ...

Full Profile

 

Monika Lukavicius Associate

Phone:
7808853882
Email:
monikalukavicius1percent@gmail.com
Support Area:
Edmonton, St. Albert, Morinville

Hi I'm Monika and truly believe in value that 1% has to offer. My background is in construction and ...

Full Profile