10504 148 AVE, Rural Grande Prairie No. 1, County of

2026-02-21
 

Quick Summary

Location
10504 148 AVE, Rural Grande Prairie No. 1, County of, Alberta T8X0X2
Price
$729,900 CAD
Status:
For Sale
Property Type:
Single Family
Area:
1874 sqft
Bedrooms:
3
Bathrooms:
2
Garages:
6
Year of Construction:
2025

MLS®#A2287928

Property Description

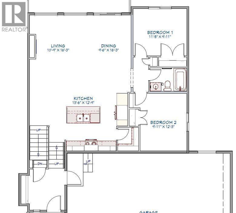
*There is a finished home to view in Lakeview Estates 10 min West of GP*. The Drew plan by Little Rock Builders is a highly sought after overly efficient floor plan! At foundation stage. Home could be complete in 3-6 months. The large entry leads you into a large open area including a dining, kitchen and living area designed to host, live and enjoy life. The main level also has 2 good sized rooms and a full bathroom. The upper level includes a laundry room, bonus room and a master bedroom worthy of a magazine complimented by a gorgeous en-suite and walk-in closet. The basement is unfinished but has potential for 2 bedrooms, full bathroom and living area. The home features a large garage measuring 36' wide 25' deep. A large driveway and much more. This home is not built yet. (id:32467)

Property Features

Building

  • Appliances: See remarks
  • Architectural Style: Bi-level
  • Basement Development: Unfinished
  • Basement Type: Full (Unfinished)
  • Construction Style: Detached
  • Cooling Type: None
  • Exterior Finish: See Remarks
  • Fireplace: Yes
  • Flooring Type: Other
  • Interior Size: 1874 sqft
  • Building Type: House
  • Utility Water: See Remarks

Features

  • Feature: See remarks, Other

Land

  • Land Size: 7500 sqft|7,251 - 10,889 sqft
  • Sewer: Municipal sewage system

Ownership

  • Type: Freehold

Structure

  • Structure: See Remarks

Zoning

  • Description: RR2

Information entered by Grassroots Realty Group Ltd.
Listing information last updated on: 2026-05-14 19:18:03


Book your free home evaluation with a 1% REALTOR® now!


How much could you save in commission selling with One Percent Realty?

Slide to select your home's price:

$500,000

Your One Percent Realty Commission savings

$500,000

Savings calculated using One Percent Realty's posted commission rates compared to another agent charging 7% on the first 100k & 3% on the balance + GST. Not all agents charge the same.

One Percent Realty's top FAQs

Q
What is the deal exactly, with One Percent Realty?

We are a fully licensed real estate company that offers full service but at a discount commission. In terms of services and exposure, we are identical to whoever you would like to compare us with. We are on MLS®, all the top internet real estates sites, we place a sign on your property ( if it's allowed ), we show the property, hold open houses, advertise it, handle all the negotiations, plus the conveyancing. There is nothing that you are not getting, except for a high commission!

Q
What do you charge?

We charge a total of $7,950 for residential properties under $400,000. For residential properties $400,000-$900,000 we charge $9,950. For residential properties over $900,000 we charge 1% of the sale price plus $950. Plus Applicable taxes, of course. We also offer the flexibility to offer more commission to the buyer's agent, if you want to. It is as simple as that! For commercial properties, farms, or development properties please contact a One Percent agent directly or fill out the market evaluation form on the bottom right of our website pages and a One Percent agent will get back to you to discuss the particulars.

Q
Are your listings on MLS® and realtor.ca?

Yes, and yes.


Learn more about the One Percent Realty Deal