308 John Avenue SW, Diamond Valley

2026-02-19
 

Quick Summary

Location
308 John Avenue SW, Diamond Valley, Alberta T0L2A0
Price
$724,499 CAD
Status:
For Sale
Property Type:
Single Family
Area:
1384 sqft
Bedrooms:
2
Bathrooms:
2
Year of Construction:
2026

MLS®#A2287416

Property Description

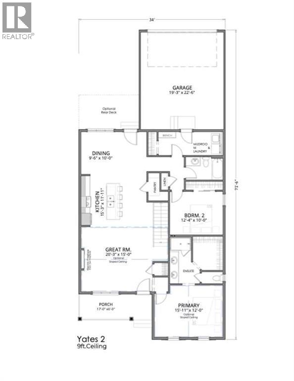
For more information, please click the "More Information" button. Quietly elegant and thoughtfully designed, the Yates 2 bungalow custom home offers a refined approach to single-level living in the heart of Diamond Ridge in Diamond Valley. Located on Lot 40 at 308 John Avenue SW, this new construction home provides 1,384 sq. ft. of thoughtfully planned space, balancing openness with intentional privacy. Wide front-facing windows flood the main living area with natural light, enhancing the home’s warm and welcoming atmosphere. The open-concept design flows seamlessly from the kitchen into the dining and living areas—ideal for both everyday living and hosting. With 9’ ceilings throughout the main floor, the space feels bright and expansive. The kitchen is anchored by a large central island with breakfast bar, stone countertops, soft-close cabinetry, and a premium LG appliance package—delivering both elevated design and everyday functionality. This well-balanced layout offers 2 bedrooms and 2 full bathrooms, including a spacious primary retreat complete with a walk-in closet and four-piece ensuite. Buyers have the opportunity to select a configuration that further enhances privacy by positioning the primary bedroom in a more secluded rear setting—creating a true separation between the sleeping quarters and main living areas. This thoughtful design option adds flexibility and a more estate-inspired feel to bungalow living. A functional mudroom with main-floor laundry adds convenience and practical organization, supporting easy, low-maintenance living. Exterior finishes showcase a cohesive modern aesthetic, including black asphalt shingles, white horizontal fiber cement siding, black window trim, black metal soffits, fascia and eavestroughs, and black vinyl-clad windows—offering strong curb appeal with lasting durability. Buyers can further personalize the home with optional features such as a gas fireplace, vaulted ceilings in the great room and/or primary bedroom, and the flexibility to choose a detached rear garage, attached rear garage, or no garage configuration, allowing the property to be tailored to individual lifestyle preferences. Situated within the thoughtfully planned community of Diamond Ridge, residents enjoy close access to local shops, cafés, schools, parks, pathway systems, and nearby access to the Sheep River and regional trails. With convenient connections to Okotoks and south Calgary, Diamond Ridge offers the ideal balance of small-town charm and modern accessibility. Estimated completion is scheduled for Summer 2026. Photos contain are rendered examples. (id:32467)

Property Features

Ammenities Near By

  • Ammenities Near By: Schools, Shopping

Building

  • Appliances: Washer, Refrigerator, Dishwasher, Stove, Oven, Dryer, Microwave, Water Heater - Tankless
  • Architectural Style: Bungalow
  • Basement Development: Unfinished
  • Basement Type: Full (Unfinished)
  • Construction Style: Detached
  • Cooling Type: None
  • Exterior Finish: Composite Siding, Metal
  • Fireplace: Yes
  • Flooring Type: Vinyl
  • Interior Size: 1384 sqft
  • Building Type: House
  • Stories: 1

Features

  • Feature: Back lane

Land

  • Land Size: 4646 sqft|4,051 - 7,250 sqft

Ownership

  • Type: Freehold

Structure

  • Structure: Deck, Porch

Zoning

  • Description: R1

Information entered by Easy List Realty
Listing information last updated on: 2026-02-20 21:19:46


Book your free home evaluation with a 1% REALTOR® now!


How much could you save in commission selling with One Percent Realty?

Slide to select your home's price:

$500,000

Your One Percent Realty Commission savings

$500,000

Savings calculated using One Percent Realty's posted commission rates compared to another agent charging 7% on the first 100k & 3% on the balance + GST. Not all agents charge the same.

One Percent Realty's top FAQs

Q
What is the deal exactly, with One Percent Realty?

We are a fully licensed real estate company that offers full service but at a discount commission. In terms of services and exposure, we are identical to whoever you would like to compare us with. We are on MLS®, all the top internet real estates sites, we place a sign on your property ( if it's allowed ), we show the property, hold open houses, advertise it, handle all the negotiations, plus the conveyancing. There is nothing that you are not getting, except for a high commission!

Q
What do you charge?

We charge a total of $7,950 for residential properties under $400,000. For residential properties $400,000-$900,000 we charge $9,950. For residential properties over $900,000 we charge 1% of the sale price plus $950. Plus Applicable taxes, of course. We also offer the flexibility to offer more commission to the buyer's agent, if you want to. It is as simple as that! For commercial properties, farms, or development properties please contact a One Percent agent directly or fill out the market evaluation form on the bottom right of our website pages and a One Percent agent will get back to you to discuss the particulars.

Q
Are your listings on MLS® and realtor.ca?

Yes, and yes.


Learn more about the One Percent Realty Deal