5901 50 Avenue, Rural Red Deer County

2026-02-10
 

Quick Summary

Location
5901 50 Avenue, Rural Red Deer County, Alberta T4G1R7
Price
$6,990,000 CAD
Status:
For Sale
Property Type:
Vacant Land

MLS®#A2281488

Property Description

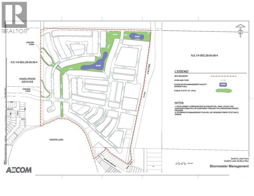
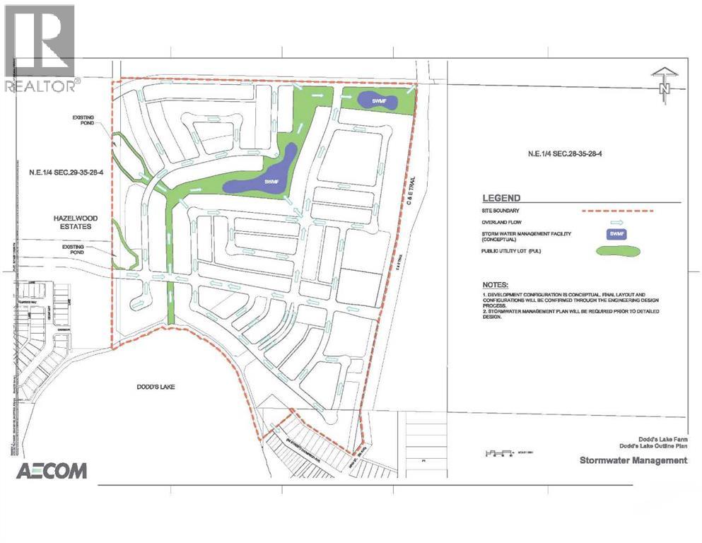
HOME SWEET HOME DEVELOPMENT OPPORTUNITY! DODD’S LAKE DEVELOPMENT OPPORTUNITY! This is your RARE OPPORTUNITY to purchase a PRIME 124.62 ACRE PLOT OF LAND offering LUXURY LAKESIDE LIVING in the charming and growing town of Innisfail! Phase one is approved for 101 homes and being sold by current owner. Potential for over 900 residential units can be developed. Perfectly located along beautiful Dodd’s Lake, suitable for high quality residences with resort style amenities will fuse high end living with the magnificence of natural surroundings. The picturesque Town of Innisfail is located in central Alberta, between Calgary and Edmonton with quick and convenient access to Highway 2. The town also boasts an array of local galleries, museums, community events, numerous local eateries and some of Alberta’s top golf courses. For those seeking adventure, the rugged mountains of Banff, Jasper’s sparkling glaciers, and Lake Louise’s turquoise waters are all easily accessible, providing endless opportunities to enjoy the great outdoors. With unmatched water views and natural landmarks, Dodds Lake proposed development will include two-storey homes, Bungalow/Villa townhomes and condominiums. A year-round community with all the advantages of resort living on the shores of Dodds Lake. This master planned community envisions the project to have resort-style amenities such as continuous pathways, a boardwalk along Dodd’s Lake’s shoreline, restaurants, shops, a clubhouse with a pool, sauna, fitness areas and even a golf simulator. INCREDIBLE OPPORTUNITY for experienced developers, REITs, and institutional investors to acquire and develop this high-potential site with low supply in the area and high demand to escape the big cities. Land zoning is RD - Reserved for Future Development District & R3 –Residential Multi-Family District. PHASE 1 (not included in this sale) is 101 Freehold Townhomes, with sales already underway. Additional Information is available on both the the MLS supplemen ts link and in the Client Data Portal. Contact us today for more information! (id:32467)

Property Features

Ammenities Near By

  • Ammenities Near By: Golf Course, Park, Playground, Recreation Nearby, Schools, Shopping, Water Nearby

Building

  • Fireplace: No
  • Utility Water: See Remarks

Features

  • Feature: Treed, See remarks, Environmental reserve

Land

  • Land Size: 504319.24 m2|80 - 160 acres
  • Sewer: No sewage system

Ownership

  • Type: Freehold

Zoning

  • Description: RD

Information entered by Century 21 Bamber Realty LTD.
Listing information last updated on: 2026-02-20 23:28:06


Book your free home evaluation with a 1% REALTOR® now!


How much could you save in commission selling with One Percent Realty?

Slide to select your home's price:

$500,000

Your One Percent Realty Commission savings

$500,000

Savings calculated using One Percent Realty's posted commission rates compared to another agent charging 7% on the first 100k & 3% on the balance + GST. Not all agents charge the same.

One Percent Realty's top FAQs

Q
What is the deal exactly, with One Percent Realty?

We are a fully licensed real estate company that offers full service but at a discount commission. In terms of services and exposure, we are identical to whoever you would like to compare us with. We are on MLS®, all the top internet real estates sites, we place a sign on your property ( if it's allowed ), we show the property, hold open houses, advertise it, handle all the negotiations, plus the conveyancing. There is nothing that you are not getting, except for a high commission!

Q
What do you charge?

We charge a total of $7,950 for residential properties under $400,000. For residential properties $400,000-$900,000 we charge $9,950. For residential properties over $900,000 we charge 1% of the sale price plus $950. Plus Applicable taxes, of course. We also offer the flexibility to offer more commission to the buyer's agent, if you want to. It is as simple as that! For commercial properties, farms, or development properties please contact a One Percent agent directly or fill out the market evaluation form on the bottom right of our website pages and a One Percent agent will get back to you to discuss the particulars.

Q
Are your listings on MLS® and realtor.ca?

Yes, and yes.


Learn more about the One Percent Realty Deal