12914 87 Street, Grande Prairie

2026-02-09
 

Quick Summary

Location
12914 87 Street, Grande Prairie, Alberta T8X0X8
Price
$674,800 CAD
Status:
For Sale
Property Type:
Single Family
Area:
1527 sqft
Bedrooms:
3 bed +2
Bathrooms:
3
Garages:
2
Year of Construction:
2026

MLS®#A2285023

Property Description

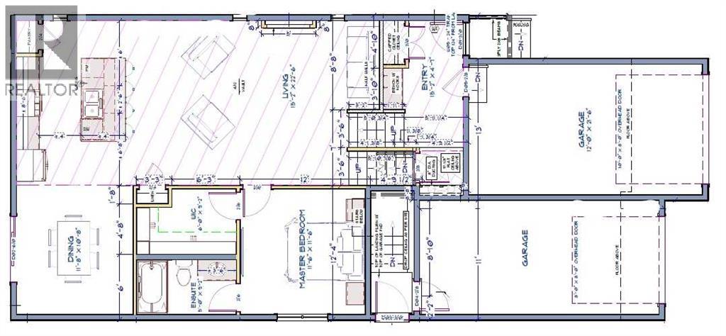
Brand new modified bi-level with legal basement suite – Job 706, “The Kinley” by Unique Home Concepts, one of Grande Prairie’s premier builders and the proud builder of the 2021, 2023, 2024, 2025 & 2026 Dream Homes. Located in Grande Prairie’s newest subdivision, East Haven. This impressive property is larger than most in its class, with each unit featuring its own attached garage, private entrance, separate laundry, and independent heating. The upper unit offers an open-concept main level with a linear electric fireplace in the living room, plus a spacious kitchen with quartz counters and dining area with island. The main-floor master bedroom includes a walk-in closet and full ensuite. Upstairs, you’ll find two additional generously sized bedrooms and a full 4-piece bathroom. The lower unit boasts a bright, open floor plan with a well-appointed kitchen with quartz counters and dining area, living room with fireplace, two bedrooms, and a full 4-piece bathroom. Durable vinyl plank and tile flooring throughout the common areas provide a modern look and long-lasting performance ideal for tenants. The garage adds valuable storage and workspace—plus the convenience of no snow scraping in winter. An excellent revenue-generating opportunity: rent both units or live in one and have the other help pay the mortgage. Buy early and choose your own colours and finishings. ALL PHOTOS ARE SAMPLE PHOTOS AS HOUSE IS STILL UNDER CONSTRUCTION. (id:32467)

Property Features

Building

  • Appliances: None
  • Architectural Style: Bi-level
  • Basement Development: Finished
  • Basement Features: Walk-up, Suite
  • Basement Type: Full (Finished)
  • Construction Style: Detached
  • Cooling Type: None
  • Exterior Finish: Vinyl siding
  • Fireplace: Yes
  • Flooring Type: Carpeted, Vinyl
  • Interior Size: 1527 sqft
  • Building Type: House

Features

  • Feature: Other, No Animal Home, No Smoking Home

Land

  • Land Size: 385.1 m2|4,051 - 7,250 sqft

Ownership

  • Type: Freehold

Structure

  • Structure: None

Zoning

  • Description: RS

Information entered by RE/MAX Grande Prairie
Listing information last updated on: 2026-05-07 16:17:40


Book your free home evaluation with a 1% REALTOR® now!


How much could you save in commission selling with One Percent Realty?

Slide to select your home's price:

$500,000

Your One Percent Realty Commission savings

$500,000

Savings calculated using One Percent Realty's posted commission rates compared to another agent charging 7% on the first 100k & 3% on the balance + GST. Not all agents charge the same.

One Percent Realty's top FAQs

Q
What is the deal exactly, with One Percent Realty?

We are a fully licensed real estate company that offers full service but at a discount commission. In terms of services and exposure, we are identical to whoever you would like to compare us with. We are on MLS®, all the top internet real estates sites, we place a sign on your property ( if it's allowed ), we show the property, hold open houses, advertise it, handle all the negotiations, plus the conveyancing. There is nothing that you are not getting, except for a high commission!

Q
What do you charge?

We charge a total of $7,950 for residential properties under $400,000. For residential properties $400,000-$900,000 we charge $9,950. For residential properties over $900,000 we charge 1% of the sale price plus $950. Plus Applicable taxes, of course. We also offer the flexibility to offer more commission to the buyer's agent, if you want to. It is as simple as that! For commercial properties, farms, or development properties please contact a One Percent agent directly or fill out the market evaluation form on the bottom right of our website pages and a One Percent agent will get back to you to discuss the particulars.

Q
Are your listings on MLS® and realtor.ca?

Yes, and yes.


Learn more about the One Percent Realty Deal