14005 158A AV NW, Edmonton

2026-02-06
 

Quick Summary

Location
14005 158A AV NW, Edmonton, Alberta T6V1V7
Price
$425,000 CAD
Status:
For Sale
Property Type:
Single Family
Area:
1421 sqft
Bedrooms:
3
Bathrooms:
3
Year of Construction:
2005
Brochure Link:
Video Link:
Open House:
04/04/2026 01:00:00 PM to
04/04/2026 04:00:00 PM

MLS®#E4472486

Property Description

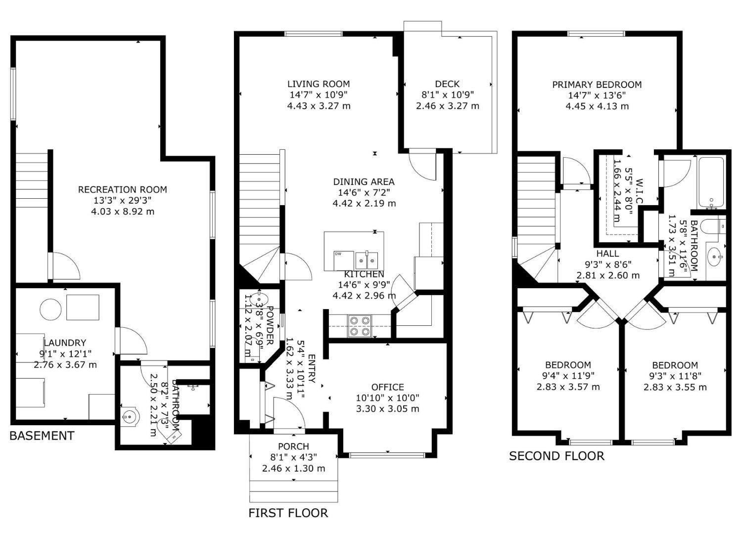
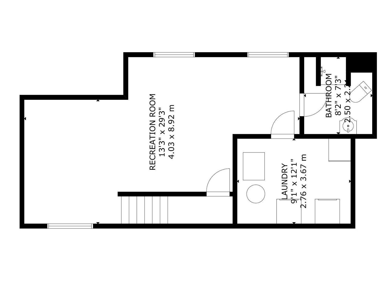
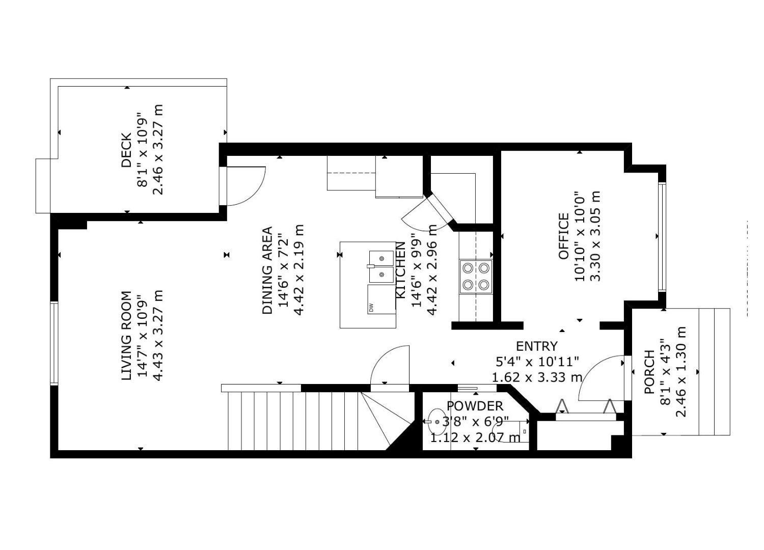
Charming 2-storey on a large pie-shaped lot in Carlton, steps to parks and Elizabeth Finch School. This 1,420 square foot (plus full, finished basement) home features central air conditioning and a great open floor plan. On the main level: front office with large window, 2-piece powder room, living room, dining area with deck access and gourmet kitchen with eat-up island, corner pantry and new appliances. Upstairs: 3 generous sized bedrooms including the owner’s suite with walk-in closet and cheater door to the main 4-piece bathroom. In the basement: a spacious family room, 3-piece bathroom and laundry room. Outside: huge fully-fenced yard with two-tiered deck & storage shed. Parking includes two stalls with back-alley access; plenty of space for a future detached garage. Located at the end of a dead-end street, minutes from shopping and the Anthony Henday. Must see! (id:32467)

Property Features

Ammenities Near By

  • Ammenities Near By: Playground, Schools, Shopping

Building

  • Appliances: Alarm System, Dishwasher, Dryer, Microwave, Stove, Washer, Window Coverings, Two Refrigerators
  • Basement Development: Finished
  • Basement Type: Full (Finished)
  • Construction Style: Detached
  • Cooling Type: Central air conditioning
  • Fireplace: No
  • Interior Size: 1421 sqft
  • Building Type: House
  • Stories: 2

Features

  • Feature: Cul-de-sac, Lane, No Animal Home, No Smoking Home

Land

  • Land Size: 445.93 m2

Ownership

  • Type: Freehold

Structure

  • Structure: Deck, Dog Run - Fenced In

Information entered by Royal LePage Noralta Real Estate
Listing information last updated on: 2026-04-02 20:02:26


Book your free home evaluation with a 1% REALTOR® now!


How much could you save in commission selling with One Percent Realty?

Slide to select your home's price:

$500,000

Your One Percent Realty Commission savings

$500,000

Savings calculated using One Percent Realty's posted commission rates compared to another agent charging 7% on the first 100k & 3% on the balance + GST. Not all agents charge the same.

Send a Message


One Percent Realty's top FAQs

Q
What is the deal exactly, with One Percent Realty?

We are a fully licensed real estate company that offers full service but at a discount commission. In terms of services and exposure, we are identical to whoever you would like to compare us with. We are on MLS®, all the top internet real estates sites, we place a sign on your property ( if it's allowed ), we show the property, hold open houses, advertise it, handle all the negotiations, plus the conveyancing. There is nothing that you are not getting, except for a high commission!

Q
What do you charge?

We charge a total of $7,950 for residential properties under $400,000. For residential properties $400,000-$900,000 we charge $9,950. For residential properties over $900,000 we charge 1% of the sale price plus $950. Plus Applicable taxes, of course. We also offer the flexibility to offer more commission to the buyer's agent, if you want to. It is as simple as that! For commercial properties, farms, or development properties please contact a One Percent agent directly or fill out the market evaluation form on the bottom right of our website pages and a One Percent agent will get back to you to discuss the particulars.

Q
Are your listings on MLS® and realtor.ca?

Yes, and yes.


Learn more about the One Percent Realty Deal

 

Christine Tetreault Broker / Owner / REALTOR®

Phone:
(780) 268-4888
Email:
christine.onepercent@gmail.com
Support Area:
Windermere, Glenora, Belgravia, Griesbach, Bonnie Doon, Strathcona, Westmount, Summerside, Crestwood, Laurier Heights, Parkview, Magrath Heights, Highlands, Terwillegar Towne, Sherwood Park, West Edmonton, Spruce Grove, St. Albert, Jasper Place, Balwin, Stony Plain, Edmonton

REAL ESTATE NEGOTIATION EXPERT (RENE) SENIORS REAL ESTATE SPECIALIST (SRES) CERTIFIED REAL ESTATE ...

Full Profile

 

Bhavya Soni Associate

Phone:
7807070479
Email:
Opendreamdoorswithbhavya@gmail.com
Support Area:
Edmonton, Beaumont, Fort Saskatchewan, Spruce Grove, Stony Plain, Sherwood Park, St Albert, Millet, Wetaskiwin, Calmar, Devon, Morinville, Westlock County, Red Deer, Rimbey, Athabasca, Leduc, Falun, Ponoka, Lacombe, Camrose, Thorby, Drayton Valley

Bhavya Soni is one of the top performing full-time agents of One Percent Realty. Her name has been p ...

Full Profile

 

Monika Lukavicius Associate

Phone:
7808853882
Email:
monikalukavicius1percent@gmail.com
Support Area:
Edmonton, St. Albert, Morinville

Hi I'm Monika and truly believe in value that 1% has to offer. My background is in construction and ...

Full Profile