#14204 14206 14208 14210 103 AV NW, Edmonton

2026-02-03
 

Quick Summary

Location
#14204 14206 14208 14210 103 AV NW, Edmonton, Alberta T5N0S8
Price
$1,150,000 CAD
Status:
For Sale
Property Type:
Single Family
Area:
4591 sqft
Bedrooms:
3
Bathrooms:
2
Year of Construction:
1968
Brochure Link:
Photo Link:
Video Link:

MLS®#E4471998

Property Description

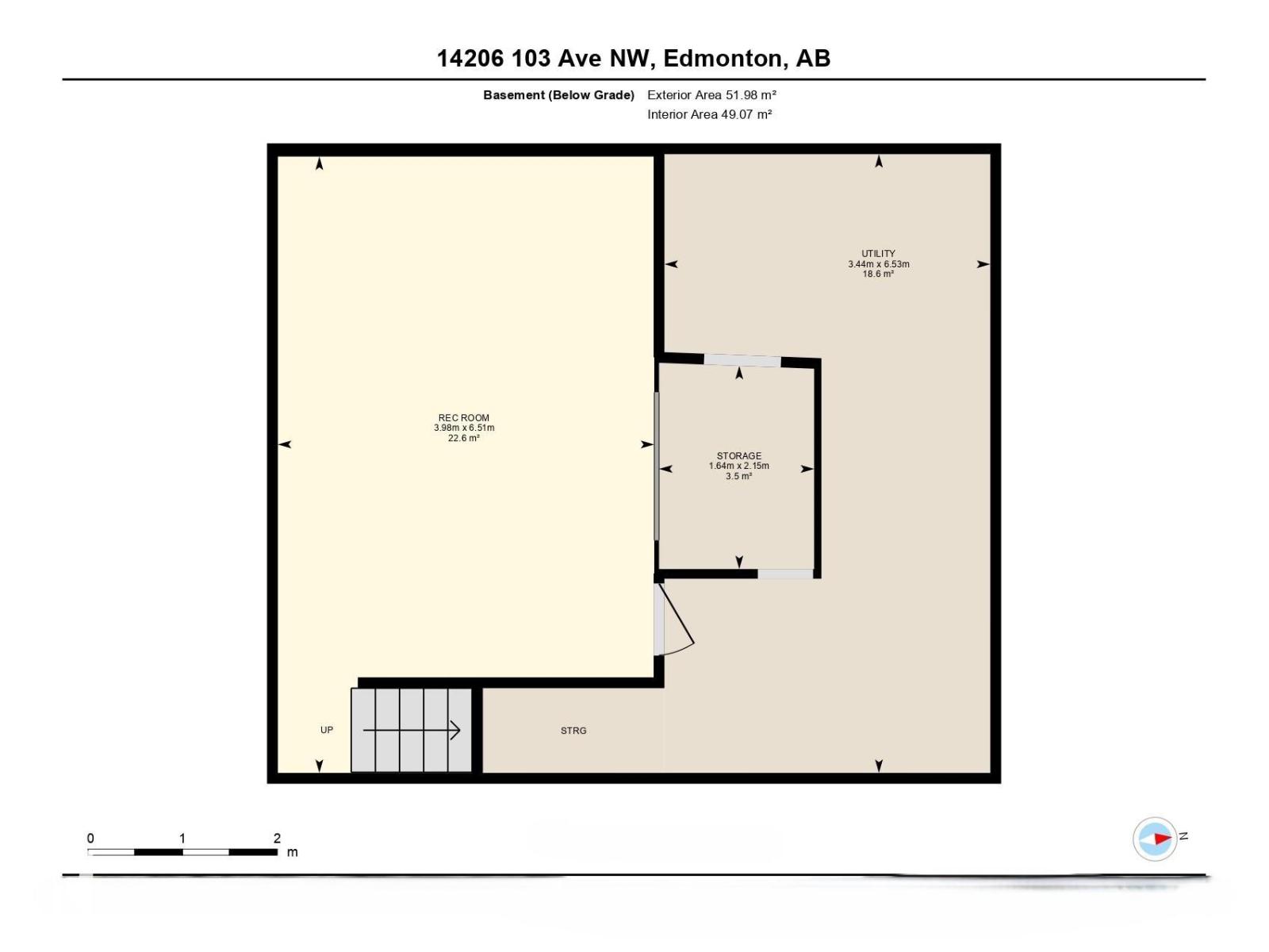
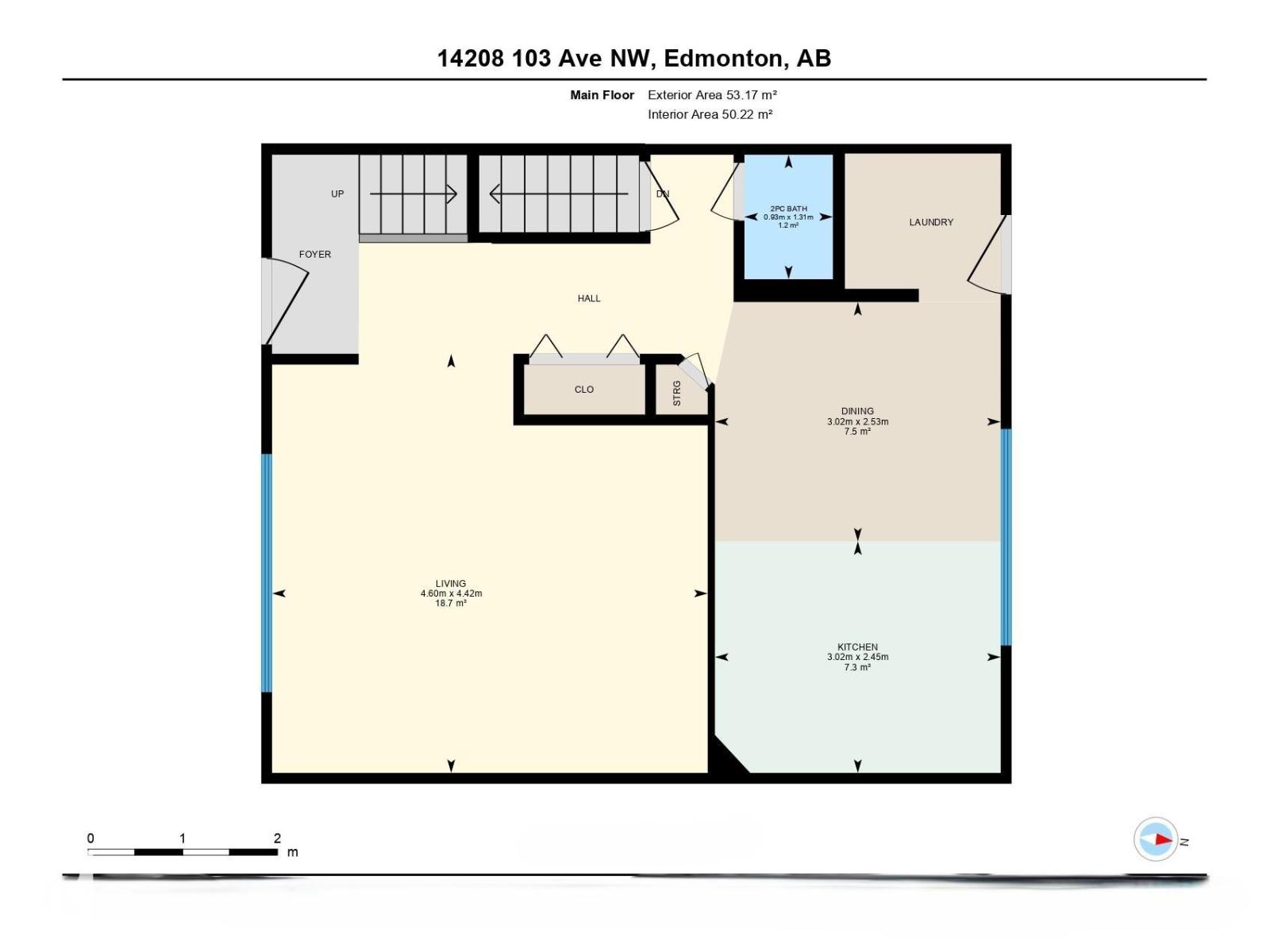
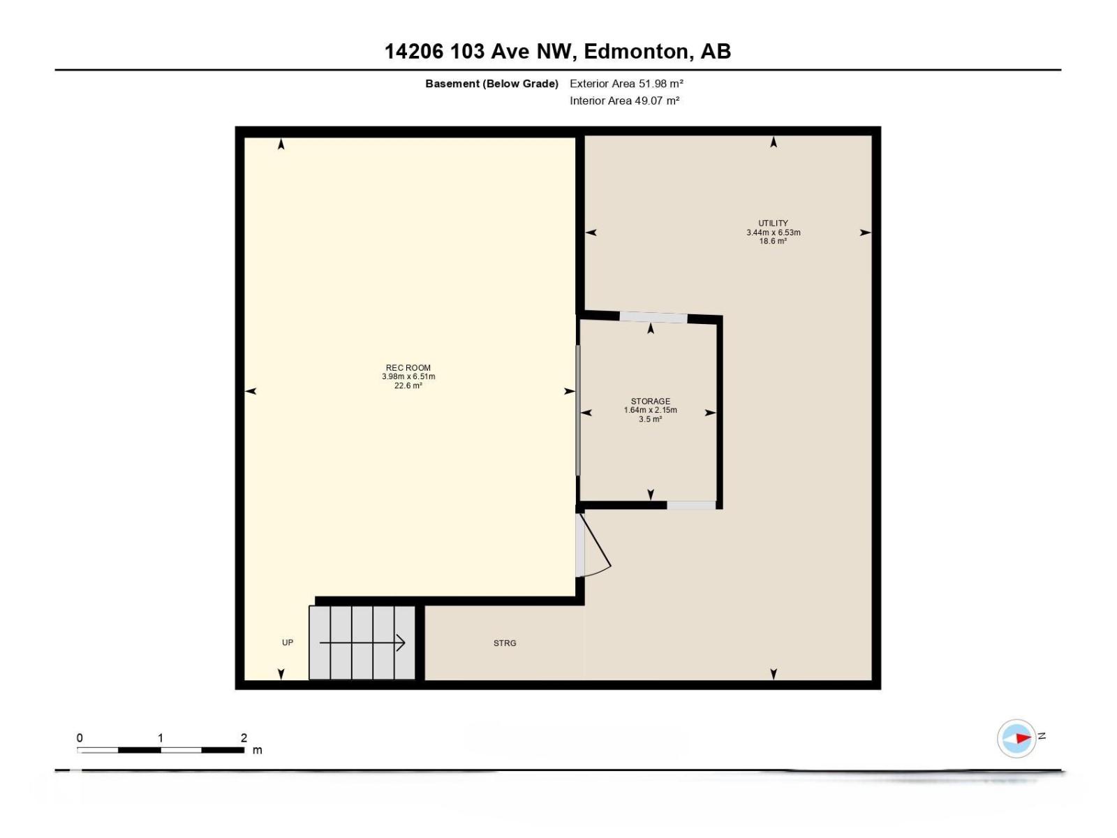
LOCATION - GROVENOR - Four-Plex Investment Opportunity - Near Future LRT & West Block - offering strong holding income and excellent redevelopment potential. Each of the 4 townhouse-style units offers just over 1,100 sq ft of living space with 3 bedrooms, 1.5 baths, and full basements, on-site parking stalls for each unit - all located on a 8471sqft lot. The property has seen important upgrades over the years including high-efficiency furnaces, newer hot water tanks, newer appliances, recent exterior upgrades including paint & eves troughs and a newer roof. Long-term tenants are in place, providing stable cash flow from day one. An outstanding opportunity for investors seeking a well-located asset with upside in one of the area’s most promising transit-oriented corridors. Walking distance to the river valley, restaurants, medical centers, schools & more! (id:32467)

Property Features

Ammenities Near By

  • Ammenities Near By: Playground, Public Transit, Schools, Shopping

Building

  • Appliances: Dryer, Hood Fan, Refrigerator, Stove, Washer, See remarks
  • Basement Development: Finished
  • Basement Type: Full (Finished)
  • Construction Style: Attached
  • Fireplace: No
  • Interior Size: 4591 sqft
  • Building Type: Fourplex
  • Stories: 2

Features

  • Feature: Corner Site, See remarks, Flat site, Lane

Land

  • Land Size: 787.19 m2

Ownership

  • Type: Freehold

Information entered by REMAX River City
Listing information last updated on: 2026-04-02 18:13:28


Book your free home evaluation with a 1% REALTOR® now!


How much could you save in commission selling with One Percent Realty?

Slide to select your home's price:

$500,000

Your One Percent Realty Commission savings

$500,000

Savings calculated using One Percent Realty's posted commission rates compared to another agent charging 7% on the first 100k & 3% on the balance + GST. Not all agents charge the same.

Send a Message


One Percent Realty's top FAQs

Q
What is the deal exactly, with One Percent Realty?

We are a fully licensed real estate company that offers full service but at a discount commission. In terms of services and exposure, we are identical to whoever you would like to compare us with. We are on MLS®, all the top internet real estates sites, we place a sign on your property ( if it's allowed ), we show the property, hold open houses, advertise it, handle all the negotiations, plus the conveyancing. There is nothing that you are not getting, except for a high commission!

Q
What do you charge?

We charge a total of $7,950 for residential properties under $400,000. For residential properties $400,000-$900,000 we charge $9,950. For residential properties over $900,000 we charge 1% of the sale price plus $950. Plus Applicable taxes, of course. We also offer the flexibility to offer more commission to the buyer's agent, if you want to. It is as simple as that! For commercial properties, farms, or development properties please contact a One Percent agent directly or fill out the market evaluation form on the bottom right of our website pages and a One Percent agent will get back to you to discuss the particulars.

Q
Are your listings on MLS® and realtor.ca?

Yes, and yes.


Learn more about the One Percent Realty Deal

 

Christine Tetreault Broker / Owner / REALTOR®

Phone:
(780) 268-4888
Email:
christine.onepercent@gmail.com
Support Area:
Windermere, Glenora, Belgravia, Griesbach, Bonnie Doon, Strathcona, Westmount, Summerside, Crestwood, Laurier Heights, Parkview, Magrath Heights, Highlands, Terwillegar Towne, Sherwood Park, West Edmonton, Spruce Grove, St. Albert, Jasper Place, Balwin, Stony Plain, Edmonton

REAL ESTATE NEGOTIATION EXPERT (RENE) SENIORS REAL ESTATE SPECIALIST (SRES) CERTIFIED REAL ESTATE ...

Full Profile

 

Bhavya Soni Associate

Phone:
7807070479
Email:
Opendreamdoorswithbhavya@gmail.com
Support Area:
Edmonton, Beaumont, Fort Saskatchewan, Spruce Grove, Stony Plain, Sherwood Park, St Albert, Millet, Wetaskiwin, Calmar, Devon, Morinville, Westlock County, Red Deer, Rimbey, Athabasca, Leduc, Falun, Ponoka, Lacombe, Camrose, Thorby, Drayton Valley

Bhavya Soni is one of the top performing full-time agents of One Percent Realty. Her name has been p ...

Full Profile

 

Monika Lukavicius Associate

Phone:
7808853882
Email:
monikalukavicius1percent@gmail.com
Support Area:
Edmonton, St. Albert, Morinville

Hi I'm Monika and truly believe in value that 1% has to offer. My background is in construction and ...

Full Profile