16816 49 ST NW, Edmonton

2026-01-30
 

Quick Summary

Location
16816 49 ST NW, Edmonton, Alberta T5Y4G9
Price
$799,900 CAD
Status:
For Sale
Property Type:
Single Family
Area:
2292 sqft
Bedrooms:
7
Bathrooms:
4
Year of Construction:
2023
Brochure Link:
Video Link:
Open House:
25/04/2026 12:00:00 PM to
25/04/2026 02:00:00 PM
26/04/2026 12:00:00 PM to
26/04/2026 02:00:00 PM

MLS®#E4471633

Property Description

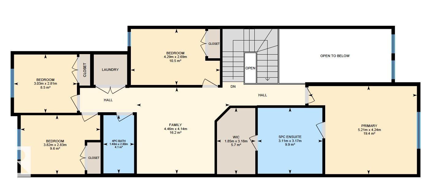
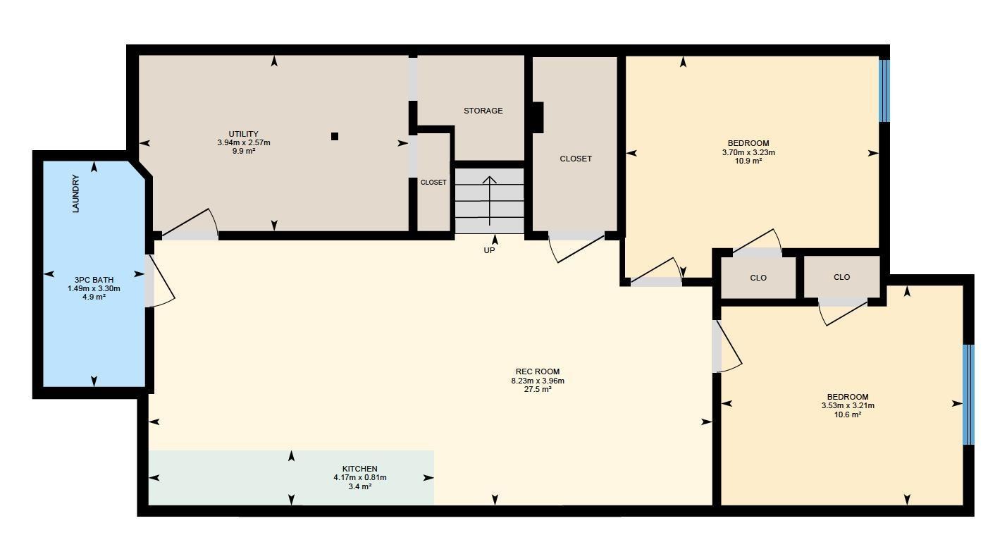
A showstopping blend of bold architecture and modern luxury, 7 bedrooms & 4 baths, this exceptional home offers 2,291 sq. ft. of elevated living, with dramatic open-to-above ceilings and a striking porcelain slab feature wall with a sleek linear Fireplace. Built for big family living and unforgettable gatherings, the main floor features a stunning chef’s kitchen with custom cabinetry, premium finishes, SS appliances, a waterfall quartz island, and a walk-through spice kitchen w/gas range perfect for hosting and everyday life. A versatile main-floor bedroom/office adds flexibility, plus central AC. Upstairs, a spacious bonus room is ideal for family time, alongside 4 generous bedrooms, including a luxurious 5-pc primary ensuite w/ dual sinks, soaker tub, glass shower, heated floors and walk-in closet, and upper-floor laundry. The fully developed legal basement suite w/ separate side entrance offers 2 additional bedrooms ideal for extended family or added income in the sought-after community of Cy Becker. (id:32467)

Property Features

Ammenities Near By

  • Ammenities Near By: Shopping

Building

  • Amenities: Ceiling - 9ft
  • Appliances: Dishwasher, Garage door opener remote(s), Garage door opener, Oven - Built-In, Microwave, Stove, Gas stove(s), Window Coverings, Dryer, Two Refrigerators, Two stoves, Two Washers
  • Basement Development: Finished
  • Basement Features: Suite
  • Basement Type: Full (Finished)
  • Construction Style: Detached
  • Cooling Type: Central air conditioning
  • Fireplace: Yes
  • Interior Size: 2292 sqft
  • Building Type: House
  • Stories: 2

Features

  • Feature: Flat site, Closet Organizers, No Animal Home, No Smoking Home

Land

  • Land Size: 324.04 m2

Ownership

  • Type: Freehold

Structure

  • Structure: Deck

Information entered by REMAX River City
Listing information last updated on: 2026-04-22 19:11:49


Book your free home evaluation with a 1% REALTOR® now!


How much could you save in commission selling with One Percent Realty?

Slide to select your home's price:

$500,000

Your One Percent Realty Commission savings

$500,000

Savings calculated using One Percent Realty's posted commission rates compared to another agent charging 7% on the first 100k & 3% on the balance + GST. Not all agents charge the same.

Send a Message


One Percent Realty's top FAQs

Q
What is the deal exactly, with One Percent Realty?

We are a fully licensed real estate company that offers full service but at a discount commission. In terms of services and exposure, we are identical to whoever you would like to compare us with. We are on MLS®, all the top internet real estates sites, we place a sign on your property ( if it's allowed ), we show the property, hold open houses, advertise it, handle all the negotiations, plus the conveyancing. There is nothing that you are not getting, except for a high commission!

Q
What do you charge?

We charge a total of $7,950 for residential properties under $400,000. For residential properties $400,000-$900,000 we charge $9,950. For residential properties over $900,000 we charge 1% of the sale price plus $950. Plus Applicable taxes, of course. We also offer the flexibility to offer more commission to the buyer's agent, if you want to. It is as simple as that! For commercial properties, farms, or development properties please contact a One Percent agent directly or fill out the market evaluation form on the bottom right of our website pages and a One Percent agent will get back to you to discuss the particulars.

Q
Are your listings on MLS® and realtor.ca?

Yes, and yes.


Learn more about the One Percent Realty Deal

 

Christine Tetreault Broker / Owner / REALTOR®

Phone:
(780) 268-4888
Email:
christine.onepercent@gmail.com
Support Area:
Windermere, Glenora, Belgravia, Griesbach, Bonnie Doon, Strathcona, Westmount, Summerside, Crestwood, Laurier Heights, Parkview, Magrath Heights, Highlands, Terwillegar Towne, Sherwood Park, West Edmonton, Spruce Grove, St. Albert, Jasper Place, Balwin, Stony Plain, Edmonton

REAL ESTATE NEGOTIATION EXPERT (RENE) SENIORS REAL ESTATE SPECIALIST (SRES) CERTIFIED REAL ESTATE ...

Full Profile

 

Bhavya Soni Associate

Phone:
7807070479
Email:
Opendreamdoorswithbhavya@gmail.com
Support Area:
Edmonton, Beaumont, Fort Saskatchewan, Spruce Grove, Stony Plain, Sherwood Park, St Albert, Millet, Wetaskiwin, Calmar, Devon, Morinville, Westlock County, Red Deer, Rimbey, Athabasca, Leduc, Falun, Ponoka, Lacombe, Camrose, Thorby, Drayton Valley

Bhavya Soni is one of the top performing full-time agents of One Percent Realty. Her name has been p ...

Full Profile

 

Monika Lukavicius Associate

Phone:
7808853882
Email:
monikalukavicius1percent@gmail.com
Support Area:
Edmonton, St. Albert, Morinville

Hi I'm Monika and truly believe in value that 1% has to offer. My background is in construction and ...

Full Profile