3683 8 ST NW, Edmonton

2026-01-29
 

Quick Summary

Location
3683 8 ST NW, Edmonton, Alberta T6T0S3
Price
$629,500 CAD
Status:
For Sale
Property Type:
Single Family
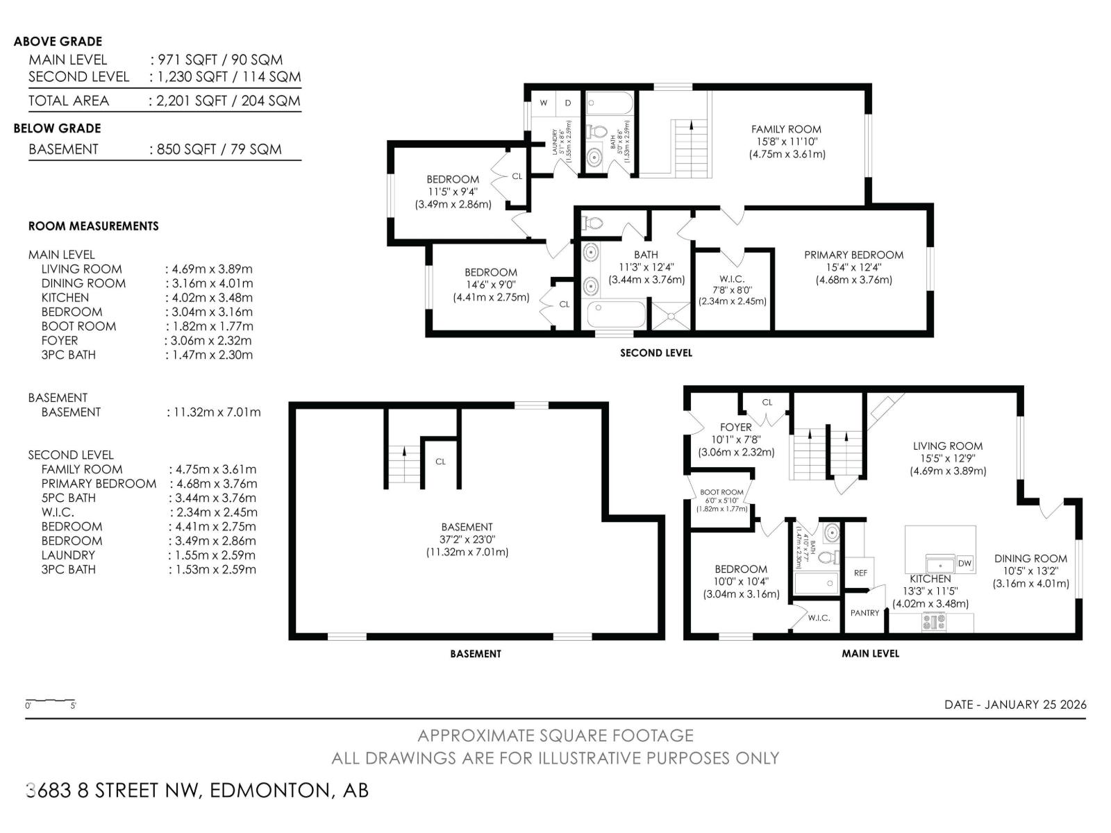
Area:
2196 sqft
Bedrooms:
4
Bathrooms:
3
Year of Construction:
2013

MLS®#E4471481

Property Description

Welcome to this remarkable move-in ready, well-maintained two-storey home built by Landmark Homes. The home offers 4 spacious bedrooms, a large family room, 3.5 baths, & a stunning ensuite bathroom. The main floor has beautiful hardwood flooring, 1 main floor bedroom, a 4-piece bathroom, a gas fireplace, & open living with large windows. The kitchen features an oversized granite island countertop, plenty of cabinet space, pantry, stainless steel appliances, & a generously sized dining room. Upstairs has 3 bedrooms, featuring a 5-piece ensuite bathroom and walk-in closet in the primary room. The open family room has picturesque windows looking out to green space.The basement is ready for you to finish. There is plenty of parking on the large driveway pad & in the double garage. Entertain in the oasis of a fenced-in backyard featuring a large deck for relaxing. This property is special as it is on a corner lot & backs onto nature trails & green space—great for fitness and nature enthusiasts. Welcome home. (id:32467)

Property Features

Ammenities Near By

  • Ammenities Near By: Park, Playground, Public Transit, Schools, Shopping

Building

  • Appliances: Dishwasher, Dryer, Garage door opener, Hood Fan, Refrigerator, Stove, Washer
  • Basement Development: Unfinished
  • Basement Type: Full (Unfinished)
  • Construction Style: Detached
  • Cooling Type: Central air conditioning
  • Fireplace: Yes
  • Interior Size: 2196 sqft
  • Building Type: House
  • Stories: 2

Ownership

  • Type: Freehold

Structure

  • Structure: Deck

Information entered by Century 21 Masters
Listing information last updated on: 2026-02-02 07:11:44


Book your free home evaluation with a 1% REALTOR® now!


How much could you save in commission selling with One Percent Realty?

Slide to select your home's price:

$500,000

Your One Percent Realty Commission savings

$500,000

Savings calculated using One Percent Realty's posted commission rates compared to another agent charging 7% on the first 100k & 3% on the balance + GST. Not all agents charge the same.

Send a Message


One Percent Realty's top FAQs

Q
What is the deal exactly, with One Percent Realty?

We are a fully licensed real estate company that offers full service but at a discount commission. In terms of services and exposure, we are identical to whoever you would like to compare us with. We are on MLS®, all the top internet real estates sites, we place a sign on your property ( if it's allowed ), we show the property, hold open houses, advertise it, handle all the negotiations, plus the conveyancing. There is nothing that you are not getting, except for a high commission!

Q
What do you charge?

We charge a total of $7,950 for residential properties under $400,000. For residential properties $400,000-$900,000 we charge $9,950. For residential properties over $900,000 we charge 1% of the sale price plus $950. Plus Applicable taxes, of course. We also offer the flexibility to offer more commission to the buyer's agent, if you want to. It is as simple as that! For commercial properties, farms, or development properties please contact a One Percent agent directly or fill out the market evaluation form on the bottom right of our website pages and a One Percent agent will get back to you to discuss the particulars.

Q
Are your listings on MLS® and realtor.ca?

Yes, and yes.


Learn more about the One Percent Realty Deal

 

Christine Tetreault Broker / Owner / Real Estate Consultant

Phone:
(780) 268-4888
Email:
christine.onepercent@gmail.com
Support Area:
Windermere, Glenora, Belgravia, Griesbach, Bonnie Doon, Strathcona, Westmount, Summerside, Crestwood, Laurier Heights, Parkview, Magrath Heights, Highlands, Terwillegar Towne, Sherwood Park, West Edmonton, Spruce Grove, St. Albert, Jasper Place, Balwin, Stony Plain, Edmonton

REAL ESTATE NEGOTIATION EXPERT (RENE) SENIORS REAL ESTATE SPECIALIST (SRES) CERTIFIED REAL ESTATE ...

Full Profile

 

Bhavya Soni Associate

Phone:
7807070479
Email:
Opendreamdoorswithbhavya@gmail.com
Support Area:
Edmonton, Beaumont, Fort Saskatchewan, Spruce Grove, Stony Plain, Sherwood Park, St Albert, Millet, Wetaskiwin, Calmar, Devon, Morinville, Westlock County, Red Deer, Rimbey, Athabasca, Leduc, Falun, Ponoka, Lacombe, Camrose, Thorby, Drayton Valley

Bhavya Soni is one of the top performing full-time agents of One Percent Realty. Her name has been p ...

Full Profile

 

Monika Lukavicius Associate

Phone:
7808853882
Email:
monikalukavicius1percent@gmail.com
Support Area:
Edmonton, St. Albert, Morinville

Hi I'm Monika and truly believe in value that 1% has to offer. My background is in construction and ...

Full Profile