1214 MCLEOD AV, Spruce Grove

2026-01-03
 

Quick Summary

Location
1214 MCLEOD AV, Spruce Grove, Alberta T7X4B7
Price
$484,250 CAD
Status:
For Sale
Property Type:
Single Family
Area:
1608 sqft
Bedrooms:
4
Bathrooms:
3
Year of Construction:
2025
Brochure Link:
Video Link:

MLS®#E4468971

Property Description

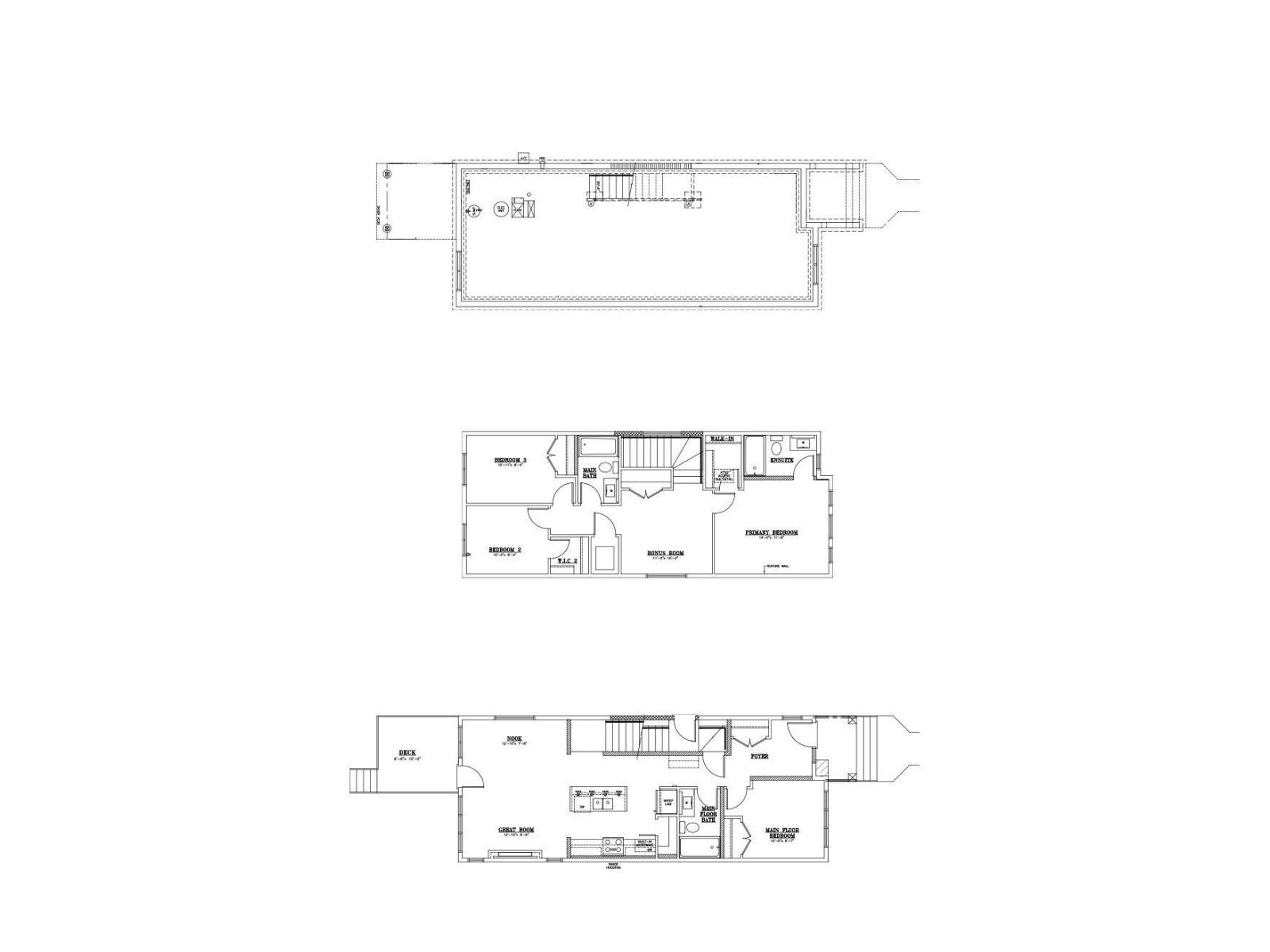
Introducing The Sapphire, a beautifully staged 1,619 sq. ft. home on a premium corner lot in desirable Easton. Enjoy 9’ ceilings, luxury vinyl plank flooring, and an open, light-filled layout. The upscale kitchen showcases granite countertops, a large island, soft-close cabinetry, custom hood fan, full-height tile backsplash, and built-in microwave. A striking floor-to-ceiling brick fireplace anchors the living space, while a main-floor bedroom and chic 3-piece bath offer flexibility. Upstairs features a serene primary retreat with walk-in closet and tiled glass shower ensuite, plus two additional bedrooms, a bonus room, full bath, and laundry. Complete with A/C, black fixtures, landscaped yard with deck, blinds, appliances, and a 9’ basement with side entrance and rough-ins. (id:32467)

Property Features

Ammenities Near By

  • Ammenities Near By: Public Transit, Schools, Shopping

Building

  • Amenities: Ceiling - 9ft
  • Appliances: Dishwasher, Hood Fan, Microwave, Refrigerator, Stove, Window Coverings
  • Basement Development: Unfinished
  • Basement Type: Full (Unfinished)
  • Construction Style: Detached
  • Cooling Type: Central air conditioning
  • Fireplace: Yes
  • Interior Size: 1608 sqft
  • Building Type: House
  • Stories: 2

Features

  • Feature: No Animal Home, No Smoking Home

Land

  • Land Size: 321.6 m2

Ownership

  • Type: Freehold

Information entered by Exp Realty
Listing information last updated on: 2026-02-08 07:11:10


Book your free home evaluation with a 1% REALTOR® now!


How much could you save in commission selling with One Percent Realty?

Slide to select your home's price:

$500,000

Your One Percent Realty Commission savings

$500,000

Savings calculated using One Percent Realty's posted commission rates compared to another agent charging 7% on the first 100k & 3% on the balance + GST. Not all agents charge the same.

Send a Message


One Percent Realty's top FAQs

Q
What is the deal exactly, with One Percent Realty?

We are a fully licensed real estate company that offers full service but at a discount commission. In terms of services and exposure, we are identical to whoever you would like to compare us with. We are on MLS®, all the top internet real estates sites, we place a sign on your property ( if it's allowed ), we show the property, hold open houses, advertise it, handle all the negotiations, plus the conveyancing. There is nothing that you are not getting, except for a high commission!

Q
What do you charge?

We charge a total of $7,950 for residential properties under $400,000. For residential properties $400,000-$900,000 we charge $9,950. For residential properties over $900,000 we charge 1% of the sale price plus $950. Plus Applicable taxes, of course. We also offer the flexibility to offer more commission to the buyer's agent, if you want to. It is as simple as that! For commercial properties, farms, or development properties please contact a One Percent agent directly or fill out the market evaluation form on the bottom right of our website pages and a One Percent agent will get back to you to discuss the particulars.

Q
Are your listings on MLS® and realtor.ca?

Yes, and yes.


Learn more about the One Percent Realty Deal

 

Christine Tetreault Broker / Owner / REALTOR®

Phone:
(780) 268-4888
Email:
christine.onepercent@gmail.com
Support Area:
Windermere, Glenora, Belgravia, Griesbach, Bonnie Doon, Strathcona, Westmount, Summerside, Crestwood, Laurier Heights, Parkview, Magrath Heights, Highlands, Terwillegar Towne, Sherwood Park, West Edmonton, Spruce Grove, St. Albert, Jasper Place, Balwin, Stony Plain, Edmonton

REAL ESTATE NEGOTIATION EXPERT (RENE) SENIORS REAL ESTATE SPECIALIST (SRES) CERTIFIED REAL ESTATE ...

Full Profile

 

Bhavya Soni Associate

Phone:
7807070479
Email:
Opendreamdoorswithbhavya@gmail.com
Support Area:
Edmonton, Beaumont, Fort Saskatchewan, Spruce Grove, Stony Plain, Sherwood Park, St Albert, Millet, Wetaskiwin, Calmar, Devon, Morinville, Westlock County, Red Deer, Rimbey, Athabasca, Leduc, Falun, Ponoka, Lacombe, Camrose, Thorby, Drayton Valley

Bhavya Soni is one of the top performing full-time agents of One Percent Realty. Her name has been p ...

Full Profile

 

Jill Turgeon Associate

Phone:
780-218-7444
Email:
admin@stageandsell.ca
Support Area:
Edmonton, St.Albert, Stony Plain, Spruce Grove, Sherwood Park, Devon, Parkland County, Lac St. Anne County, Sturgeon County, Windermere, Magrath, Secord, Edgemont, Glenora, Riverbend, Terwilligar, Terwiligar Towne, North Glenora, Forest Heights, Gold Bar, Keswick, Chappelle

Do Your Online Photos Matter?Times have changed, and your FIRST showing is now on a computer. If a B ...

Full Profile