199 Corner Glen Crescent NE, CALGARY

2025-12-23
 

Quick Summary

Location
199 Corner Glen Crescent NE, CALGARY, Alberta T3N2L8
Price
$749,900 CAD
Status:
For Sale
Property Type:
Single Family
Area:
2273 sqft
Bedrooms:
3
Bathrooms:
3
Year of Construction:
2025

MLS®#A2275986

Property Description

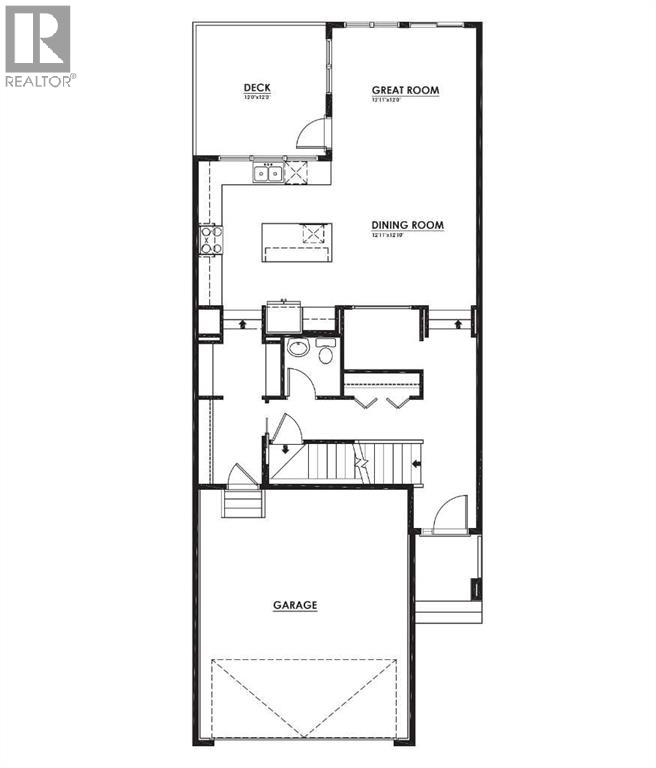
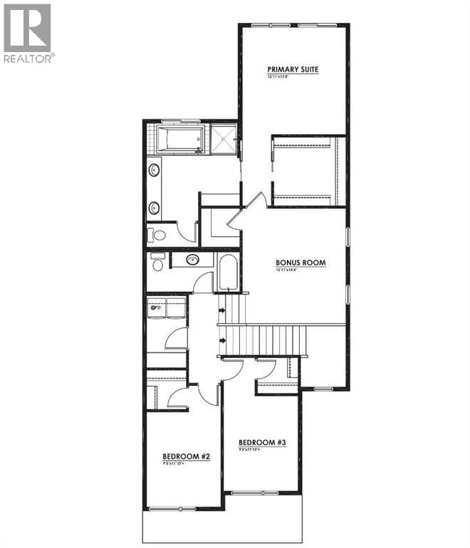
*WALK OUT BASEMENT*BRAND NEW HOME*JAKE 26*QUICK POSSESSION*10 SOLAR PANELS*FLEX ROOM* Amazing Design! Unique in Features! Over 2273+ SF of Stylish design welcomes you into this stunning three-bedroom and 2.5-BATH home located in the beautiful community of Cornerstone. You're welcome to a thoughtfully designed living space that maximizes every inch while providing ample space for your whole family to enjoy! The Gorgeous OPEN FLOOR PLAN invites you in to discover a lovely kitchen that boasts beautiful QUARTZ countertops, a sleek stainless steel Whirlpool appliance package with an upgraded electric stove, a French Door fridge w/ Internal Water/Ice, a microwave, and a Broan power pack built-in cabinet hood fan. A large walk-through pantry and beautiful extended oversized flush centre Island along with a generous great room and dining room- Ideal for all entertaining. A sizeable FLEX SPACE on the main floor, perfect for a den or working from home, as you have a half bath adjacent to the functional space. Upstairs, you will discover THREE SIZEABLE BEDROOMS with a Primary Bedroom boasting a 5-piece dual vanity, a stand-alone shower, an oversized bath and a large walk-in closet. A beautiful OPEN TO BELOW BONUS ROOM offers an additional living space and a full 4-piece bath, plus 2nd-floor laundry, completing the level. ADDITIONAL FEATURES: Jayman Complete home - Washer + Dryer + Window Blinds Included! Fit and Finish SELECT, 12' x 12' upper deck, professionally designed White Colour Palette, rear patio door, raised basement ceiling height, and 3-piece rough-in plumbing. Situated close to the International Airport with quick access to both Deer Foot Trail and Stoney Trail, along with new amenities being added to the community continuously, you will enjoy all Cornerstone has to offer. A brand new build with all of the difficult decisions made along with a functional and intelligent floor plan for a large family. Perfect!! (id:32467)

Property Features

Ammenities Near By

  • Ammenities Near By: Playground, Schools

Building

  • Appliances: Refrigerator, Dishwasher, Stove, Microwave, Hood Fan, Window Coverings, Garage door opener, Washer & Dryer, Water Heater - Tankless
  • Basement Development: Unfinished
  • Basement Features: Walk out
  • Basement Type: Full (Unfinished)
  • Construction Style: Detached
  • Cooling Type: None
  • Exterior Finish: Brick, Vinyl siding
  • Fireplace: No
  • Flooring Type: Carpeted, Vinyl Plank
  • Interior Size: 2273 sqft
  • Building Type: House
  • Stories: 2
  • Utility Water: Municipal water

Features

  • Feature: PVC window, No Animal Home, No Smoking Home

Land

  • Land Size: 421 m2|4,051 - 7,250 sqft

Ownership

  • Type: Freehold

Structure

  • Structure: Deck

Zoning

  • Description: R-G

Information entered by Jayman Realty Inc.
Listing information last updated on: 2026-03-25 22:11:07


Book your free home evaluation with a 1% REALTOR® now!


How much could you save in commission selling with One Percent Realty?

Slide to select your home's price:

$500,000

Your One Percent Realty Commission savings

$500,000

Savings calculated using One Percent Realty's posted commission rates compared to another agent charging 7% on the first 100k & 3% on the balance + GST. Not all agents charge the same.

Send a Message


One Percent Realty's top FAQs

Q
What is the deal exactly, with One Percent Realty?

We are a fully licensed real estate company that offers full service but at a discount commission. In terms of services and exposure, we are identical to whoever you would like to compare us with. We are on MLS®, all the top internet real estates sites, we place a sign on your property ( if it's allowed ), we show the property, hold open houses, advertise it, handle all the negotiations, plus the conveyancing. There is nothing that you are not getting, except for a high commission!

Q
What do you charge?

We charge a total of $7,950 for residential properties under $400,000. For residential properties $400,000-$900,000 we charge $9,950. For residential properties over $900,000 we charge 1% of the sale price plus $950. Plus Applicable taxes, of course. We also offer the flexibility to offer more commission to the buyer's agent, if you want to. It is as simple as that! For commercial properties, farms, or development properties please contact a One Percent agent directly or fill out the market evaluation form on the bottom right of our website pages and a One Percent agent will get back to you to discuss the particulars.

Q
Are your listings on MLS® and realtor.ca?

Yes, and yes.


Learn more about the One Percent Realty Deal

 

April Isaac Associate

Phone:
403-888-4003
Email:
aprilonepercent@gmail.com
Support Area:
CALGARY, SOUTH EAST CALGARY, SOUTH WEST CALGARY, NORTH CALGARY, NORTH EAST CALGARY, NORTH WEST CALGARY, EAST CALGARY, WEST CALGARY, AIRDRIE, COCHRANE, OKOTOKS, CHESTERMERE, STRATHMORE, GREATER CALGARY AREA, ROCKYVIEW, DIDSBURY, LANGDON

23 YRS EXPER, 1300+ SALES, marketing savvy, people savvy. 100'S OF HAPPY CUSTOMERS, DOZENS UPON DOZ ...

Full Profile

 

Anna Madden Associate

Phone:
587-830-2405
Email:
anna.madden05@gmail.com
Support Area:
Calgary, Airdrie, Cochrane, chestermere, Langdon, Okotoks, High river, Olds, Rocky View, Foothills

Experienced Residential Realtor serving Calgary and surrounding communities. I have knowledge in buy ...

Full Profile

 

Dabs Fashola Associate

Phone:
403-619-0621
Email:
homesbydabs@gmail.com
Support Area:
Calgary Southwest, Calgary Southeast, Calgary Northwest, Calgary Northeast, Okotoks, Chestermere:, Airdrie, Olds, Cochrane

REAL ESTATE NEGOTIATION EXPERT (RENE)Your Trusted and Experienced Realtor | Turning Real E ...

Full Profile