5230 44 Avenue, Spirit River

2025-12-02
 

Quick Summary

Location
5230 44 Avenue, Spirit River, Alberta T0H3G0
Price
$999,900 CAD
Status:
For Sale
Property Type:
Multi-family
Area:
22177 sqft
Year of Construction:
1960
Video Link:

MLS®#A2273553

Property Description

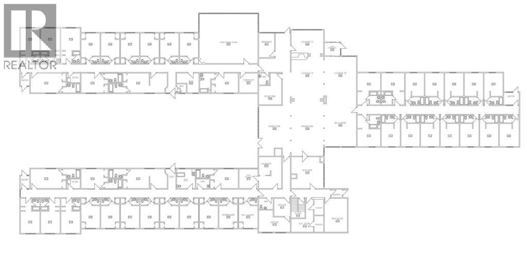
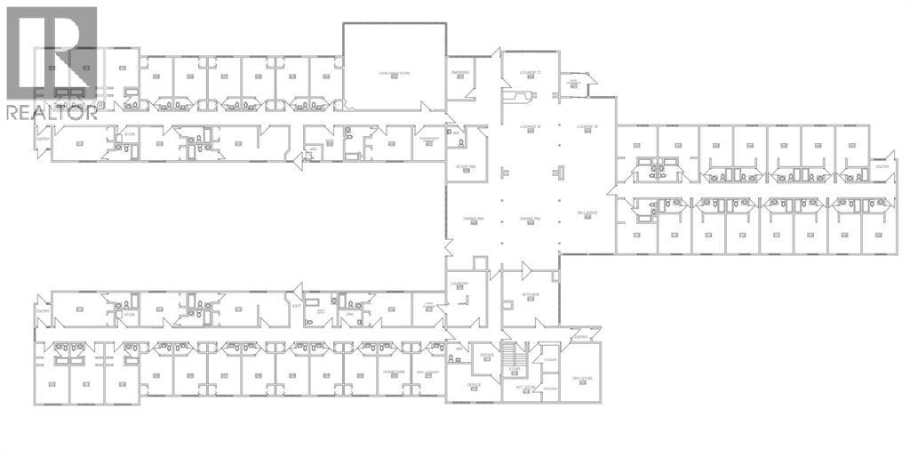
Pleasant View Lodge in Spirit River, Alberta, presents an exceptional opportunity for investors and assisted-living operators to acquire a well-maintained, institutional-quality 42-suite care facility situated on 2.32 acres of R4 High Density Residential land. This 22,177 sq. ft. building has been consistently upgraded, including newer boilers (2015), hot water tanks (2022/2023), modern double-glazed vinyl windows, and a torch-on roof completed in 2018. Now vacant and ready for redevelopment or immediate occupancy, the property features private bathrooms in every suite—26 with full showers or tubs—plus two staff washrooms, two assisted bathing rooms, a commercial kitchen with industrial equipment, extensive common areas, commercial laundry, office space, a dedicated hair salon, and a 26’x40’ maintenance shop. With ample parking, mature trees, and a peaceful setting near parks and services, and located just 50 minutes from Grande Prairie with direct access to essential amenities, this property offers exceptional potential for seniors housing, specialized care, workforce accommodation, or multi-suite residential conversion. (id:32467)

Property Features

Building

  • Exterior Finish: Concrete
  • Fireplace: No
  • Interior Size: 22177 sqft
  • Building Type: Multi-Family

Land

  • Land Size: 2.32 ac|2 - 4.99 acres

Zoning

  • Description: R4

Information entered by Sutton Group Grande Prairie Professionals
Listing information last updated on: 2026-01-06 15:21:33


Book your free home evaluation with a 1% REALTOR® now!


How much could you save in commission selling with One Percent Realty?

Slide to select your home's price:

$500,000

Your One Percent Realty Commission savings

$500,000

Savings calculated using One Percent Realty's posted commission rates compared to another agent charging 7% on the first 100k & 3% on the balance + GST. Not all agents charge the same.

One Percent Realty's top FAQs

Q
What is the deal exactly, with One Percent Realty?

We are a fully licensed real estate company that offers full service but at a discount commission. In terms of services and exposure, we are identical to whoever you would like to compare us with. We are on MLS®, all the top internet real estates sites, we place a sign on your property ( if it's allowed ), we show the property, hold open houses, advertise it, handle all the negotiations, plus the conveyancing. There is nothing that you are not getting, except for a high commission!

Q
What do you charge?

We charge a total of $7,950 for residential properties under $400,000. For residential properties $400,000-$900,000 we charge $9,950. For residential properties over $900,000 we charge 1% of the sale price plus $950. Plus Applicable taxes, of course. We also offer the flexibility to offer more commission to the buyer's agent, if you want to. It is as simple as that! For commercial properties, farms, or development properties please contact a One Percent agent directly or fill out the market evaluation form on the bottom right of our website pages and a One Percent agent will get back to you to discuss the particulars.

Q
Are your listings on MLS® and realtor.ca?

Yes, and yes.


Learn more about the One Percent Realty Deal