2, 310 George Street Street SW, Diamond Valley

2025-11-25
 

Quick Summary

Location
2, 310 George Street Street SW, Diamond Valley, Alberta T0L2A0
Price
$459,900 CAD
Status:
For Sale
Property Type:
Single Family
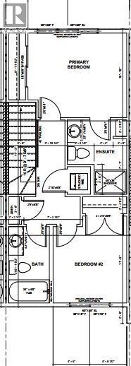
Area:
1265 sqft
Bedrooms:
2
Bathrooms:
3
Year of Construction:
2026

MLS®#A2271911

Property Description

Welcome to 310 George Street! This beautifully designed two-storey townhouse offers modern comfort, thoughtful layout, and low-maintenance living—all in a fantastic location. The main floor features an inviting entryway that leads to a versatile den, ideal for a home office or study, along with convenient access to your single-car garage.Continue on the second level to the bright open-concept kitchen and living area, complemented by a main-floor powder room. The living space flows seamlessly onto your own private deck, perfect for relaxing or entertaining.Upstairs, you’ll find two spacious bedrooms, including a lovely primary suite complete with its own 3-piece ensuite for added privacy. A second 4-piece bathroom on this level provides comfort and convenience for family or guests.Act fast—buyers who secure their home within the next 60 days will have the opportunity to choose their own interior colour palette and personalize the finishes to match their style.With its smart floor plan, contemporary finishes, and thoughtful design, this townhouse delivers the perfect blend of style and functionality. Move in and enjoy easy living in a home tailored to your taste. (id:32467)

Property Features

Ammenities Near By

  • Ammenities Near By: Golf Course, Park, Playground, Schools, Shopping

Building

  • Amenities: Other
  • Appliances: See remarks
  • Architectural Style: Bungalow
  • Basement Development: Unfinished
  • Basement Features: Separate entrance
  • Basement Type: Full (Unfinished)
  • Construction Style: Attached
  • Cooling Type: See Remarks
  • Exterior Finish: Composite Siding
  • Fireplace: No
  • Flooring Type: Carpeted, Tile, Vinyl Plank
  • Interior Size: 1265 sqft
  • Building Type: Row / Townhouse
  • Stories: 1

Features

  • Feature: See remarks, Other, PVC window, Closet Organizers, No Animal Home, No Smoking Home, Gas BBQ Hookup

Land

  • Land Size: Unknown

Maintenance Fee

  • Maintenance Fee: 100.00

Ownership

  • Type: Condominium/Strata

Structure

  • Structure: Deck, Porch

Zoning

  • Description: R-1

Information entered by Century 21 Foothills Real Estate
Listing information last updated on: 2025-11-26 05:40:22


Book your free home evaluation with a 1% REALTOR® now!


How much could you save in commission selling with One Percent Realty?

Slide to select your home's price:

$500,000

Your One Percent Realty Commission savings

$500,000

Savings calculated using One Percent Realty's posted commission rates compared to another agent charging 7% on the first 100k & 3% on the balance + GST. Not all agents charge the same.

One Percent Realty's top FAQs

Q
What is the deal exactly, with One Percent Realty?

We are a fully licensed real estate company that offers full service but at a discount commission. In terms of services and exposure, we are identical to whoever you would like to compare us with. We are on MLS®, all the top internet real estates sites, we place a sign on your property ( if it's allowed ), we show the property, hold open houses, advertise it, handle all the negotiations, plus the conveyancing. There is nothing that you are not getting, except for a high commission!

Q
What do you charge?

We charge a total of $7,950 for residential properties under $400,000. For residential properties $400,000-$900,000 we charge $9,950. For residential properties over $900,000 we charge 1% of the sale price plus $950. Plus Applicable taxes, of course. We also offer the flexibility to offer more commission to the buyer's agent, if you want to. It is as simple as that! For commercial properties, farms, or development properties please contact a One Percent agent directly or fill out the market evaluation form on the bottom right of our website pages and a One Percent agent will get back to you to discuss the particulars.

Q
Are your listings on MLS® and realtor.ca?

Yes, and yes.


Learn more about the One Percent Realty Deal