191 Perch Bend, Rural Rocky View County

2025-11-21
 

Quick Summary

Location
191 Perch Bend, Rural Rocky View County, Alberta T3Z0J9
Price
$849,900 CAD
Status:
For Sale
Property Type:
Single Family
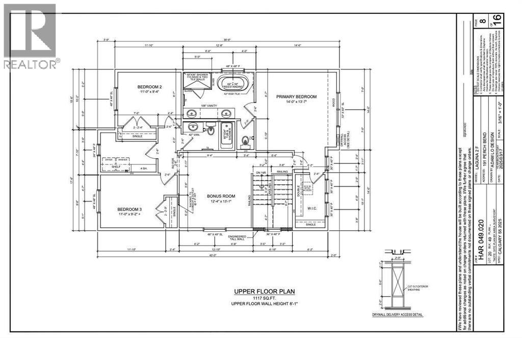
Area:
2213 sqft
Bedrooms:
3
Bathrooms:
3
Year of Construction:
2025

MLS®#A2272008

Property Description

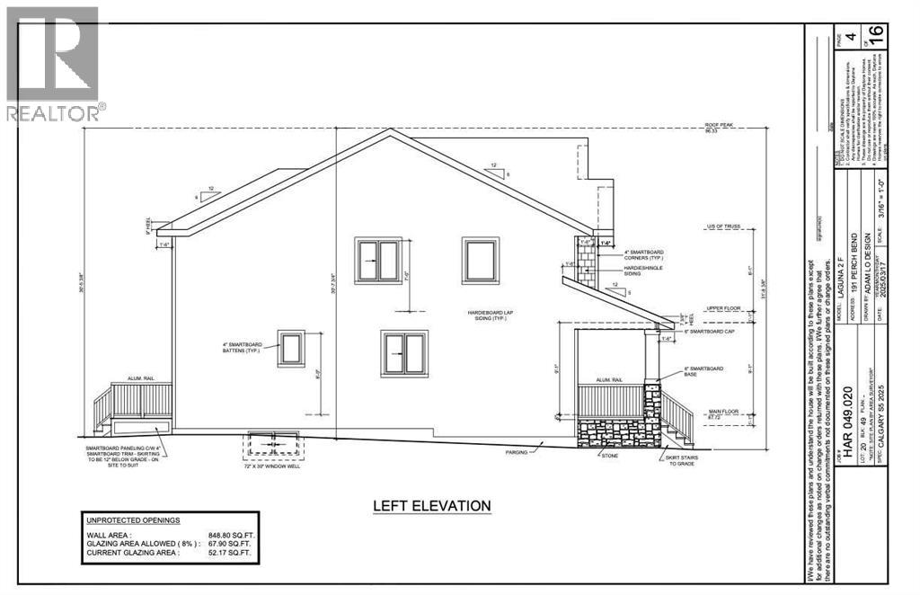
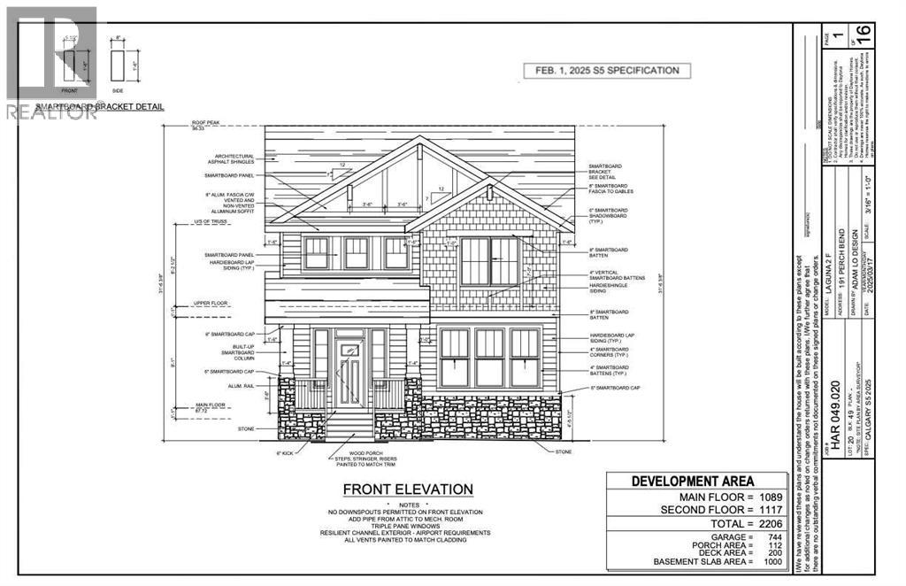
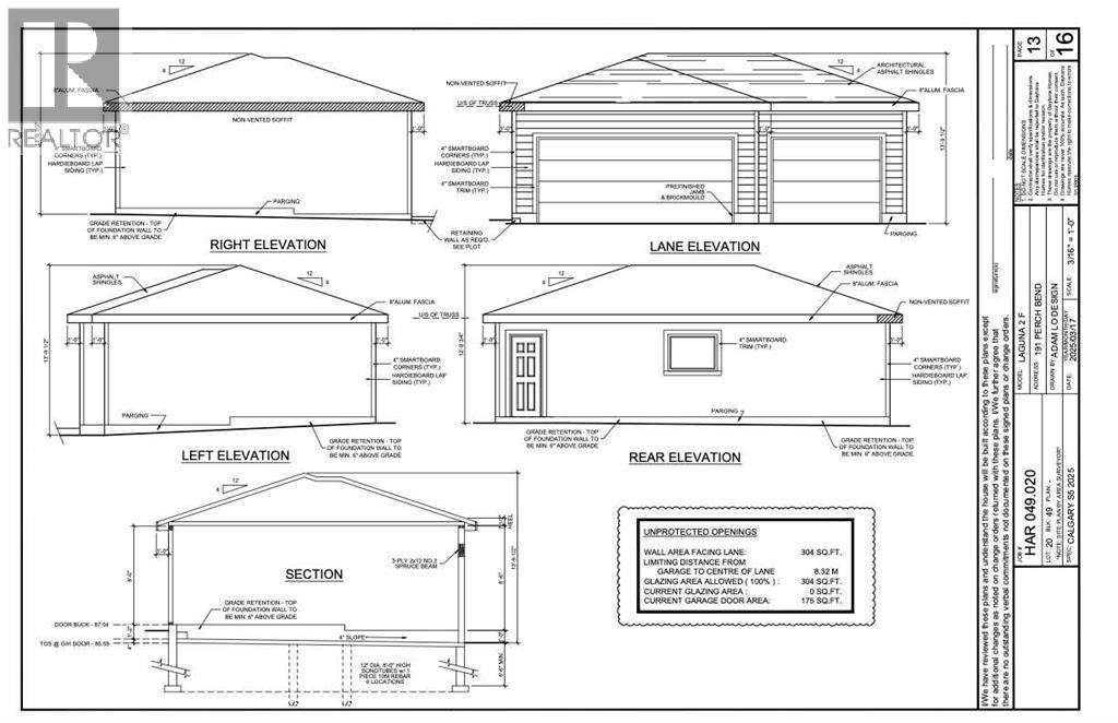
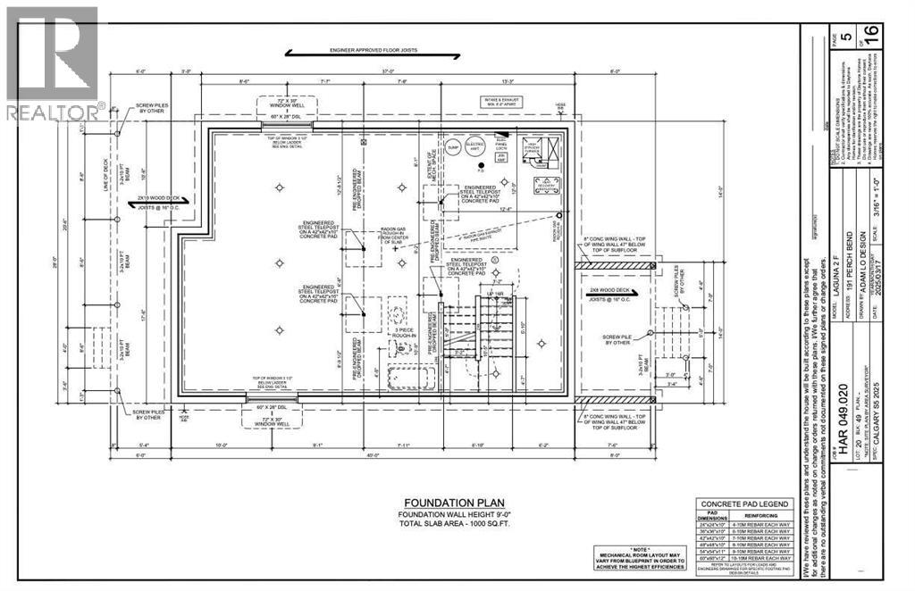
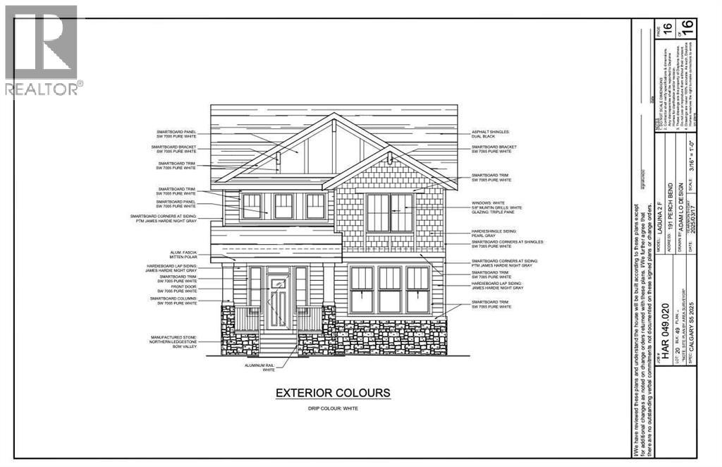
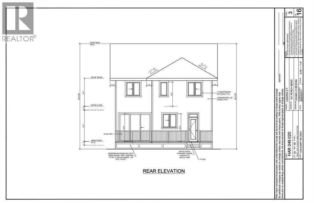
A triple garage included on what is to become one of the most sought after streets in Harmony. Across from very high end luxury homes backing onto the lake in Harmony.. Experience the pinnacle of Rocky View County living in this exceptional new-build, two-storey home nestled in the highly coveted, master-planned community of Harmony, designed for families seeking both luxury and connection. This residence boasts an expansive and functional floor plan featuring three spacious bedrooms and two and a half meticulously finished bathrooms, providing ample space and privacy for the whole family. The main floor is an entertainer's dream, anchored by a cozy gas fireplace in the bright Great Room, complemented by a sophisticated, dedicated Dining Room for formal occasions, and a versatile den perfect for a home office or study area. Ascend the stairs to find the dedicated family retreat: a large Bonus Room offering flexible space for media or play, ensuring the main living area remains serene. The exceptional outdoor amenities include a charming front porch for enjoying your morning coffee and a private rear deck ideal for summer barbecues, leading to the highly functional, oversized triple car garage for secure parking and storage. Beyond your property line, the Harmony community elevates your lifestyle with unparalleled access to nature and recreation, featuring a pristine lake for year-round activities, extensive parks and playgrounds, and a state-of-the-art recreational facility, making this not just a new house, but the foundation for an extraordinary life lived in balance. (id:32467)

Property Features

Ammenities Near By

  • Ammenities Near By: Golf Course, Park, Playground, Water Nearby

Building

  • Amenities: Recreation Centre
  • Appliances: Refrigerator, Dishwasher, Stove, Microwave, Hood Fan
  • Basement Development: Unfinished
  • Basement Type: Full (Unfinished)
  • Construction Style: Detached
  • Cooling Type: None
  • Exterior Finish: Stone, Vinyl siding
  • Fireplace: Yes
  • Flooring Type: Carpeted, Ceramic Tile, Laminate
  • Interior Size: 2213 sqft
  • Building Type: House
  • Stories: 2
  • Utility Water: Municipal water

Features

  • Feature: Other

Land

  • Land Size: 458.61 m2|4,051 - 7,250 sqft
  • Sewer: Municipal sewage system

Ownership

  • Type: Freehold

Structure

  • Structure: Deck

Zoning

  • Description: VR2

Information entered by Royal LePage Benchmark
Listing information last updated on: 2025-12-24 18:28:10


Book your free home evaluation with a 1% REALTOR® now!


How much could you save in commission selling with One Percent Realty?

Slide to select your home's price:

$500,000

Your One Percent Realty Commission savings

$500,000

Savings calculated using One Percent Realty's posted commission rates compared to another agent charging 7% on the first 100k & 3% on the balance + GST. Not all agents charge the same.

One Percent Realty's top FAQs

Q
What is the deal exactly, with One Percent Realty?

We are a fully licensed real estate company that offers full service but at a discount commission. In terms of services and exposure, we are identical to whoever you would like to compare us with. We are on MLS®, all the top internet real estates sites, we place a sign on your property ( if it's allowed ), we show the property, hold open houses, advertise it, handle all the negotiations, plus the conveyancing. There is nothing that you are not getting, except for a high commission!

Q
What do you charge?

We charge a total of $7,950 for residential properties under $400,000. For residential properties $400,000-$900,000 we charge $9,950. For residential properties over $900,000 we charge 1% of the sale price plus $950. Plus Applicable taxes, of course. We also offer the flexibility to offer more commission to the buyer's agent, if you want to. It is as simple as that! For commercial properties, farms, or development properties please contact a One Percent agent directly or fill out the market evaluation form on the bottom right of our website pages and a One Percent agent will get back to you to discuss the particulars.

Q
Are your listings on MLS® and realtor.ca?

Yes, and yes.


Learn more about the One Percent Realty Deal