Unit 27, 4402 48 Avenue, Sylvan Lake

2025-11-14
 

Quick Summary

Location
Unit 27, 4402 48 Avenue, Sylvan Lake, Alberta T4S1N7
Price
$169,900 CAD
Status:
For Sale
Property Type:
Single Family
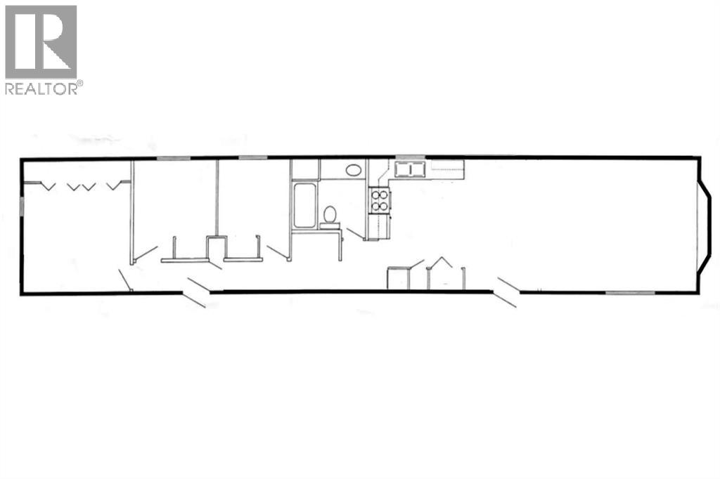
Area:
1008 sqft
Bedrooms:
3
Bathrooms:
1

MLS®#A2267597

Property Description

Located in the welcoming community of Sylvan Lake’s Spruce View Park mobile home park, this beautifully updated single-wide mobile home offers modern comfort and exceptional value. Completely redone from end to end, the home features an open, airy design and a long list of upgrades. Enjoy peace of mind with a new steel roof, new hot water tank, updated electrical, and upgraded PEX plumbing. Fresh vinyl siding, new windows, and new front and rear entry steps enhance curb appeal and functionality. Inside, the home shines with brand-new flooring throughout, all-new paint, and included furnishings such as a couch, master bed frame with built-in drawers, kitchen island with stools, and newer appliances—including a new dishwasher, hood fan, fridge, and stove. The large lot offers room to add a shed with park approval, fully fenced yard and pets are welcome upon approval as well. Monthly lot rent is an affordable $540 and includes water, sewer, garbage, and recycling services, all professionally managed by Hearthstone Property Management. This move-in-ready home is a fantastic opportunity to enjoy comfortable, affordable living in a great Sylvan Lake location. (id:32467)

Property Features

Ammenities Near By

  • Ammenities Near By: Golf Course, Water Nearby

Building

  • Appliances: Refrigerator, Dishwasher, Stove
  • Architectural Style: Mobile Home
  • Fireplace: No
  • Flooring Type: Laminate
  • Interior Size: 1008 sqft
  • Building Type: Mobile Home
  • Stories: 1

Land

  • Land Size: Mobile Home Pad (MHP)

Structure

  • Structure: None

Information entered by Royal LePage Network Realty Corp.
Listing information last updated on: 2025-11-14 23:30:39


Book your free home evaluation with a 1% REALTOR® now!


How much could you save in commission selling with One Percent Realty?

Slide to select your home's price:

$500,000

Your One Percent Realty Commission savings

$500,000

Savings calculated using One Percent Realty's posted commission rates compared to another agent charging 7% on the first 100k & 3% on the balance + GST. Not all agents charge the same.

One Percent Realty's top FAQs

Q
What is the deal exactly, with One Percent Realty?

We are a fully licensed real estate company that offers full service but at a discount commission. In terms of services and exposure, we are identical to whoever you would like to compare us with. We are on MLS®, all the top internet real estates sites, we place a sign on your property ( if it's allowed ), we show the property, hold open houses, advertise it, handle all the negotiations, plus the conveyancing. There is nothing that you are not getting, except for a high commission!

Q
What do you charge?

We charge a total of $7,950 for residential properties under $400,000. For residential properties $400,000-$900,000 we charge $9,950. For residential properties over $900,000 we charge 1% of the sale price plus $950. Plus Applicable taxes, of course. We also offer the flexibility to offer more commission to the buyer's agent, if you want to. It is as simple as that! For commercial properties, farms, or development properties please contact a One Percent agent directly or fill out the market evaluation form on the bottom right of our website pages and a One Percent agent will get back to you to discuss the particulars.

Q
Are your listings on MLS® and realtor.ca?

Yes, and yes.


Learn more about the One Percent Realty Deal