9090 80 Avenue, Grande Prairie

2025-11-09
 

Quick Summary

Location
9090 80 Avenue, Grande Prairie, Alberta T8X0W3
Price
$537,900 CAD
Status:
For Sale
Property Type:
Single Family
Area:
1735 sqft
Bedrooms:
3
Bathrooms:
3
Garages:
4
Year of Construction:
2025

MLS®#A2269945

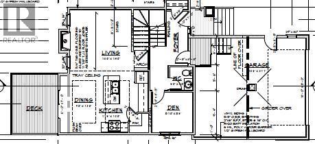
Property Description

Welcome to this stunning new home in Riverstone, offering modern living at its finest! Featuring 1,735 sq.ft. of beautifully designed space, a double attached garage, $5,000 appliance allowance, and a 12x10 ft deck, this home blends comfort and style perfectly. The open-concept main floor includes a cozy electric fireplace, a bright kitchen with quartz countertops, and a main-floor den and powder room for added convenience. Upstairs, you’ll find a spacious primary suite with a walk-in closet and 5-piece ensuite, plus two additional bedrooms, a bonus room, full bath, and laundry. The basement offers a separate entry and awaits your personal touch. Situated on a generous lot in a family-friendly community close to schools, parks, shopping, and amenities, this home delivers modern elegance and everyday functionality. GST included in price with rebate to builder. (id:32467)

Property Features

Ammenities Near By

  • Ammenities Near By: Schools, Shopping

Building

  • Appliances: None
  • Basement Development: Unfinished
  • Basement Type: Full (Unfinished)
  • Construction Style: Detached
  • Cooling Type: None
  • Exterior Finish: Vinyl siding
  • Fireplace: Yes
  • Flooring Type: Carpeted, Vinyl Plank
  • Interior Size: 1735 sqft
  • Building Type: House
  • Stories: 2

Land

  • Land Size: 4143 sqft|4,051 - 7,250 sqft

Ownership

  • Type: Freehold

Structure

  • Structure: Deck

Zoning

  • Description: RS

Information entered by RE/MAX Grande Prairie
Listing information last updated on: 2025-11-10 17:55:54


Book your free home evaluation with a 1% REALTOR® now!


How much could you save in commission selling with One Percent Realty?

Slide to select your home's price:

$500,000

Your One Percent Realty Commission savings

$500,000

Savings calculated using One Percent Realty's posted commission rates compared to another agent charging 7% on the first 100k & 3% on the balance + GST. Not all agents charge the same.

One Percent Realty's top FAQs

Q
What is the deal exactly, with One Percent Realty?

We are a fully licensed real estate company that offers full service but at a discount commission. In terms of services and exposure, we are identical to whoever you would like to compare us with. We are on MLS®, all the top internet real estates sites, we place a sign on your property ( if it's allowed ), we show the property, hold open houses, advertise it, handle all the negotiations, plus the conveyancing. There is nothing that you are not getting, except for a high commission!

Q
What do you charge?

We charge a total of $7,950 for residential properties under $400,000. For residential properties $400,000-$900,000 we charge $9,950. For residential properties over $900,000 we charge 1% of the sale price plus $950. Plus Applicable taxes, of course. We also offer the flexibility to offer more commission to the buyer's agent, if you want to. It is as simple as that! For commercial properties, farms, or development properties please contact a One Percent agent directly or fill out the market evaluation form on the bottom right of our website pages and a One Percent agent will get back to you to discuss the particulars.

Q
Are your listings on MLS® and realtor.ca?

Yes, and yes.


Learn more about the One Percent Realty Deal