101 STARLING WY, Fort Saskatchewan

2025-11-04
 

Quick Summary

Location
101 STARLING WY, Fort Saskatchewan, Alberta T8L1R5
Price
$774,900 CAD
Status:
For Sale
Property Type:
Single Family
Area:
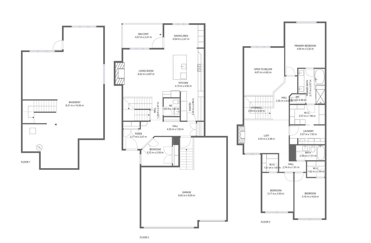
2508 sqft
Bedrooms:
4
Bathrooms:
3
Year of Construction:
2025

MLS®#E4464601

Property Description

This SHOWSTOPPING TRIPLE CAR GARAGE WALKOUT home has every detail thoughtfully curated. Greeted by a bright, open layout w/9’ ceilings, 8’ doors, & premium finishes throughout. A dreamy chef's kitchen impresses w/ALL APPLIANCES INCLUDED, extended UPGRADED cabinetry w/ambient under lighting & sleek QUARTZ counters. An OPEN-TO-ABOVE great rm showcases a dramatic floor-to-ceiling CUSTOM millwork fireplace feat. wall. A flexible main den/4th bedrm pairs perfectly w/a 1/2 bath steps away. Upstairs, find a full bath, & unwind in a LARGE bonus rm w/a 2nd fireplace,+ 3 SPACIOUS bedrms incl. a LUXURY 5pc primary retreat w/dual sinks, HEATED TILE FLOORS, & a massive WIC conveniently connected to the upper laundry rm w/sink. An unfinished walkout basement offers endless possibilities & no rear neighbours means a serene backdrop from both the upper deck & lower patio. Complete w/exterior GEM lighting, WINDOW COVERINGS, & smart Ecobee thermostat, this home delivers turn key comfort, luxury & style from top to bottom. (id:32467)

Property Features

Ammenities Near By

  • Ammenities Near By: Golf Course, Playground, Schools, Shopping

Building

  • Amenities: Ceiling - 9ft, Vinyl Windows
  • Appliances: Dishwasher, Dryer, Garage door opener remote(s), Garage door opener, Hood Fan, Oven - Built-In, Microwave, Refrigerator, Stove, Washer, Window Coverings
  • Basement Development: Unfinished
  • Basement Features: Walk out
  • Basement Type: Full (Unfinished)
  • Construction Style: Detached
  • Fireplace: Yes
  • Interior Size: 2508 sqft
  • Building Type: House
  • Stories: 2

Features

  • Feature: Closet Organizers, No Animal Home, No Smoking Home

Land

  • Land Size: 469.72 m2

Ownership

  • Type: Freehold

Information entered by MaxWell Polaris
Listing information last updated on: 2025-11-04 00:42:17


Book your free home evaluation with a 1% REALTOR® now!


How much could you save in commission selling with One Percent Realty?

Slide to select your home's price:

$500,000

Your One Percent Realty Commission savings

$500,000

Savings calculated using One Percent Realty's posted commission rates compared to another agent charging 7% on the first 100k & 3% on the balance + GST. Not all agents charge the same.

Send a Message


One Percent Realty's top FAQs

Q
What is the deal exactly, with One Percent Realty?

We are a fully licensed real estate company that offers full service but at a discount commission. In terms of services and exposure, we are identical to whoever you would like to compare us with. We are on MLS®, all the top internet real estates sites, we place a sign on your property ( if it's allowed ), we show the property, hold open houses, advertise it, handle all the negotiations, plus the conveyancing. There is nothing that you are not getting, except for a high commission!

Q
What do you charge?

We charge a total of $7,950 for residential properties under $400,000. For residential properties $400,000-$900,000 we charge $9,950. For residential properties over $900,000 we charge 1% of the sale price plus $950. Plus Applicable taxes, of course. We also offer the flexibility to offer more commission to the buyer's agent, if you want to. It is as simple as that! For commercial properties, farms, or development properties please contact a One Percent agent directly or fill out the market evaluation form on the bottom right of our website pages and a One Percent agent will get back to you to discuss the particulars.

Q
Are your listings on MLS® and realtor.ca?

Yes, and yes.


Learn more about the One Percent Realty Deal

 

Bhavya Soni Associate

Phone:
7807070479
Email:
Opendreamdoorswithbhavya@gmail.com
Support Area:
Edmonton, Beaumont, Fort Saskatchewan, Spruce Grove, Stony Plain, Sherwood Park, St Albert, Millet, Wetaskiwin, Calmar, Devon, Morinville, Westlock County, Red Deer, Rimbey, Athabasca, Leduc, Falun, Ponoka, Lacombe, Camrose, Thorby, Drayton Valley

Bhavya Soni is one of the top performing full-time agent of One Percent Realty. Her name has been pu ...

Full Profile

 

Janelle Duan Associate

Phone:
7809038498
Email:
lovethishouse88@gmail.com
Support Area:
Edmonton, Beaumont, Fort Saskatchewan, Sherwood Park, St.Albert, Tofield, Leduc, Ardrossan, Strathcona county, Tofield AB

I pursued a career in real estate because I have a genuine passion for connecting with people and po ...

Full Profile