42 Sunset Way, Priddis Greens

2025-10-23
 

Quick Summary

Location
42 Sunset Way, Priddis Greens, Alberta T0L1W3
Price
$1,150,000 CAD
Status:
For Sale
Property Type:
Single Family
Area:
1802 sqft
Bedrooms:
1 bed +2
Bathrooms:
3
Year of Construction:
1989

MLS®#A2265917

Property Description

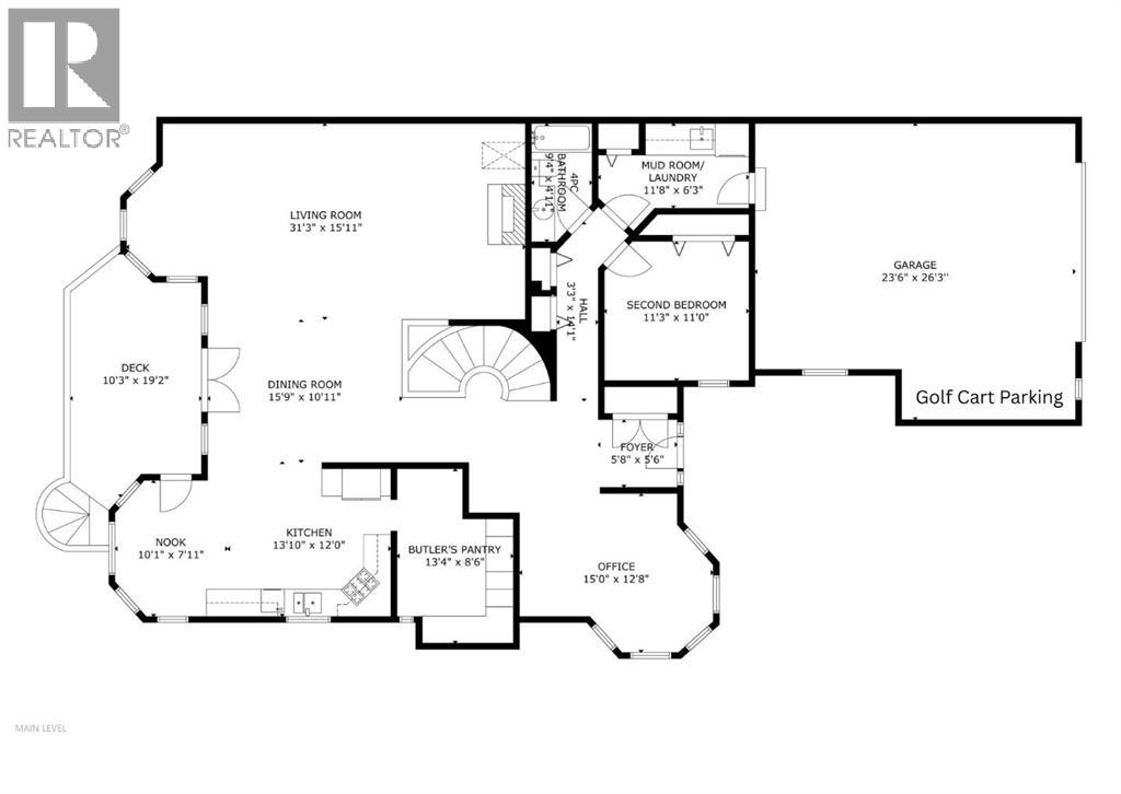
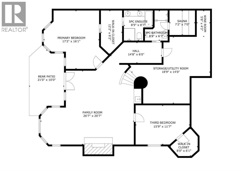
We’re very excited to be presenting our newest listing, surrounded by the beauty of the foothills, and set against the backdrop of the Rockies with an amazing panoramic mountain view that will leave you in awe. Just down the street from the world-renowned Priddis Greens Golf & Country Club, this villa bungalow has been extensively renovated, making it a one-of-a kind model. Originally an “Augusta” the main floor was completely re-designed. Making room for a huge kitchen, with a very appealing butler pantry. It’s a dream for hosting those special occasions, thanks to the open-concept floorplan, which is highlighted by vaulted ceilings, a fireplace and enough room for a proper dining room. There’s also a fabulous main floor office at the front of the home, to help keep you on task. The deck has a covered awning and stairs to the lower-level patio, which is nice, as you won’t have to go through the house to get outside.You’ll love the view from the lower level as well, and thanks to the walkout and west backing lot, it won’t feel like a basement at all. The primary bedroom was moved down here, and has a big walk-in closet and gorgeous 5-pc ensuite, featuring a travertine tile shower and other updates. Another full bathroom, bedroom and amazing sauna are also here for added convenience. The brick fireplace adds a rustic mountain feel, the wet bar and exterior vented wine room really complete the space. The furnace and humidifier are new in 2025, and the basement is heated with in-slab, radiant heat. The boiler is regularly serviced and is in great shape. The home is also outfitted with central A/C, so the mechanical aspects of the home are all ready to go for years to come. The oversized, heated, double garage has a lot of space for 2 vehicles. There’s a Reznor furnace, epoxy coated floor and there’s even a golf cart bump out so you can get back and forth to golf course and driving range. Inside and out, this home has been immaculately cared for and is move in ready wi th nothing needed for many years to come, we’d invite you take the short drive west of Calgary to come see this fantastic opportunity to have that little piece of paradise you’ve always wanted! (id:32467)

Property Features

Building

  • Amenities: Other
  • Appliances: Washer, Refrigerator, Oven - Electric, Range - Gas, Dishwasher, Dryer, Microwave Range Hood Combo, Window Coverings
  • Architectural Style: Bungalow
  • Basement Development: Finished
  • Basement Features: Walk out
  • Basement Type: Full (Finished)
  • Construction Style: Detached
  • Cooling Type: Central air conditioning
  • Exterior Finish: Brick, Stucco
  • Fireplace: Yes
  • Flooring Type: Carpeted, Hardwood, Tile
  • Interior Size: 1802 sqft
  • Building Type: House
  • Stories: 1
  • Utility Water: Private Utility

Features

  • Feature: Other, Wet bar, Closet Organizers, Sauna

Land

  • Land Size: 370 m2|0-4,050 sqft
  • Sewer: Private sewer

Maintenance Fee

  • Maintenance Fee: 525.00

Ownership

  • Type: Condominium/Strata

Structure

  • Structure: Deck

Zoning

  • Description: RC

Information entered by RE/MAX Landan Real Estate
Listing information last updated on: 2025-11-04 18:20:33


Book your free home evaluation with a 1% REALTOR® now!


How much could you save in commission selling with One Percent Realty?

Slide to select your home's price:

$500,000

Your One Percent Realty Commission savings

$500,000

Savings calculated using One Percent Realty's posted commission rates compared to another agent charging 7% on the first 100k & 3% on the balance + GST. Not all agents charge the same.

One Percent Realty's top FAQs

Q
What is the deal exactly, with One Percent Realty?

We are a fully licensed real estate company that offers full service but at a discount commission. In terms of services and exposure, we are identical to whoever you would like to compare us with. We are on MLS®, all the top internet real estates sites, we place a sign on your property ( if it's allowed ), we show the property, hold open houses, advertise it, handle all the negotiations, plus the conveyancing. There is nothing that you are not getting, except for a high commission!

Q
What do you charge?

We charge a total of $7,950 for residential properties under $400,000. For residential properties $400,000-$900,000 we charge $9,950. For residential properties over $900,000 we charge 1% of the sale price plus $950. Plus Applicable taxes, of course. We also offer the flexibility to offer more commission to the buyer's agent, if you want to. It is as simple as that! For commercial properties, farms, or development properties please contact a One Percent agent directly or fill out the market evaluation form on the bottom right of our website pages and a One Percent agent will get back to you to discuss the particulars.

Q
Are your listings on MLS® and realtor.ca?

Yes, and yes.


Learn more about the One Percent Realty Deal