7316 Township Road 144, Rural Cypress County

2025-10-23
 

Quick Summary

Location
7316 Township Road 144, Rural Cypress County, Alberta T0J2P2
Price
$873,800 CAD
Status:
For Sale
Property Type:
Single Family
Area:
1745 sqft
Bedrooms:
2 bed +3
Bathrooms:
3
Year of Construction:
2015

MLS®#A2265756

Property Description

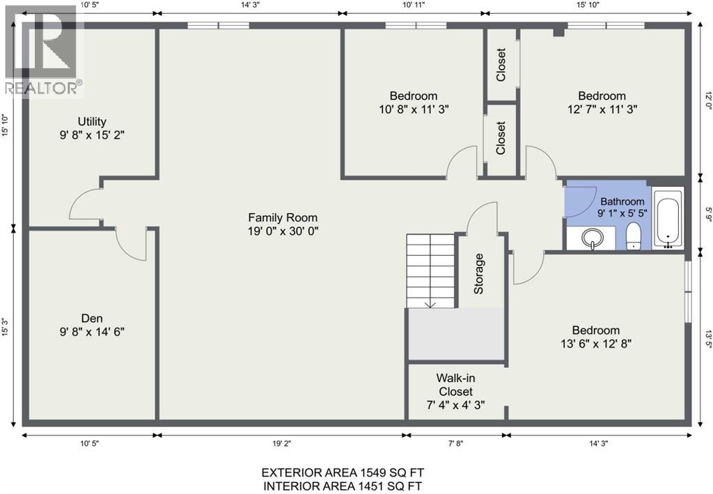
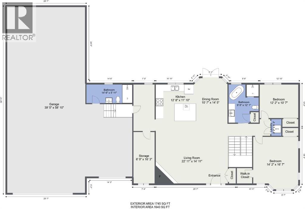
A rare opportunity for private country living close to town! This dream home was built with every detail of comfort and function in mind, from the large decks designed to capture the prairie views to the incredible 1,850 sq ft heated shop. Step inside the main floor, where vaulted ceilings, skylights, and large windows fill the space with light. The living room is warm and inviting, centered around a stunning wood-burning stone fireplace, perfect for cozy evenings. The open kitchen is a chef’s dream with granite counters, custom cabinetry, a butcher-block island, a 36” gas range, and a walk-in pantry the size of an extra room. The adjoining dining area is perfect for gatherings and opens to the back deck for easy indoor-outdoor living. The primary bedroom offers a peaceful retreat with double closets and beautiful natural light from multiple windows.  A full bathroom featuring a clawfoot tub—perfect for unwinding under the starry skies—a second bedroom, main floor laundry, and a huge mudroom with outdoor access complete this level. Additional features include central vac and in-floor heating throughout the lower level. Downstairs boasts 9-foot ceilings, a large family room, three additional good-sized bedrooms, a full bathroom, a utility/storage room, and a storm shelter/cold room for storage or safety. Outside, you’ll find a fenced-in dog run off the front porch, a garden area, storage buildings, ample parking, and a cozy fire pit space with swing seating. The attached 26x60 (yes, 60’!) + 14x24 heated shop is a dream on its own, complete with in-floor heat, 220 power, an 18-ft door, and a 3-piece bathroom. From the covered front deck, enjoy quiet mornings with sunrise views, then spend your evenings watching the sun set across the open fields from the spacious back deck. This acreage offers complete privacy, surrounded by open views with amazing neighbours about half a mile away and no chance of development nearby. School bus pickup is right in the driveway, and be st of all, it’s quiet with no city or highway noise. Beautifully built, thoughtfully designed, and located less than 15 minutes northwest of Redcliff, this property truly delivers the best of country comfort and practical luxury. (id:32467)

Property Features

Building

  • Architectural Style: Bungalow
  • Basement Development: Finished
  • Basement Type: Full (Finished)
  • Construction Style: Detached
  • Cooling Type: Central air conditioning
  • Exterior Finish: Vinyl siding
  • Fireplace: Yes
  • Flooring Type: Carpeted, Linoleum, Vinyl
  • Interior Size: 1745 sqft
  • Building Type: House
  • Stories: 1
  • Utility Water: Well, Cistern

Land

  • Land Size: 2.06 ac|2 - 4.99 acres
  • Sewer: Septic Field, Holding Tank, Septic tank

Ownership

  • Type: Freehold

Structure

  • Structure: Deck

Zoning

  • Description: A2, Agriculture

Information entered by RIVER STREET REAL ESTATE
Listing information last updated on: 2025-10-23 22:11:03


Book your free home evaluation with a 1% REALTOR® now!


How much could you save in commission selling with One Percent Realty?

Slide to select your home's price:

$500,000

Your One Percent Realty Commission savings

$500,000

Savings calculated using One Percent Realty's posted commission rates compared to another agent charging 7% on the first 100k & 3% on the balance + GST. Not all agents charge the same.

One Percent Realty's top FAQs

Q
What is the deal exactly, with One Percent Realty?

We are a fully licensed real estate company that offers full service but at a discount commission. In terms of services and exposure, we are identical to whoever you would like to compare us with. We are on MLS®, all the top internet real estates sites, we place a sign on your property ( if it's allowed ), we show the property, hold open houses, advertise it, handle all the negotiations, plus the conveyancing. There is nothing that you are not getting, except for a high commission!

Q
What do you charge?

We charge a total of $7,950 for residential properties under $400,000. For residential properties $400,000-$900,000 we charge $9,950. For residential properties over $900,000 we charge 1% of the sale price plus $950. Plus Applicable taxes, of course. We also offer the flexibility to offer more commission to the buyer's agent, if you want to. It is as simple as that! For commercial properties, farms, or development properties please contact a One Percent agent directly or fill out the market evaluation form on the bottom right of our website pages and a One Percent agent will get back to you to discuss the particulars.

Q
Are your listings on MLS® and realtor.ca?

Yes, and yes.


Learn more about the One Percent Realty Deal